Büros
ID B1534Provisionsfrei
Büroimmobilie - Berlin, Kreuzberg - B1534
Kreuzberg, 10961, Berlin, Berlin
24 € / m²
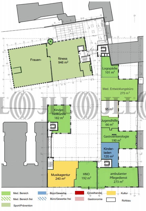
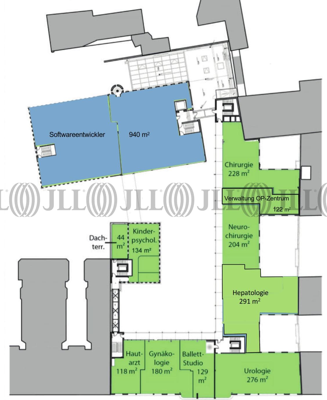
- Fläche372 - 1.312 m²
- VerfügbarkeitAuf Anfrage
- Ausstattung
- Lage und Verkehrsanbindung
- Grundriss
- Exposé herunterladen
- Ihr Kontakt
- Anfrage senden
Verfügbare Fläche
Lage und Verkehrsanbindung
Das Objekt befindet sich im Berliner Stadtteil Kreuzberg in der beliebten Bergmannstraße und unmittelbarer Nähe des Marheinekeplatzes und des Mehringdamms. Im Umfeld ist eine bunte Mischung von Gastronomie, Shopping, Design, Arbeiten und Wohnen vorhanden. Über den ÖPNV ist eine direkte Anbindung zum Stadtbezirk Mitte, dem Regierungsviertel, der City-Ost und City-West gewährleistet. Die Anbindung an den öffentlichen Nahverkehr erfolgt durch die U-Bahnhöfe Gneisenaustraße sowie Mehringsdamm.
- Hauptbahnhof, Berlin, Fahrzeit: 15 min
- U-Bahn, Mehringdamm, Linie U6, U7, Gehzeit: 8 min
- Bundesautobahn, A 100, Fahrzeit: 5 min
- Flughafen, Berlin Brandenburg, Fahrzeit: 30 min
Ihr Kontakt

Alexandra Teich
Ihr Kontakt
Marktinformationen
Mietmarkt
Kreuzberg, Berlin
Gew. Ø-Miete
24 € / m²
siehe 101 passende MietobjekteErfahren Sie mehr* Durchschnittspreis auf Grundlage historischer Transaktionen.





