Büros
ID B1417Provisionsfrei
Büroimmobilie - Berlin, Kreuzberg - B1417
Kreuzberg, 10969, Berlin, Berlin
29,92 € / m²
- Fläche409 - 1.231 m²
- VerfügbarkeitSofort
- Objekt
- Ausstattung
- Lage und Verkehrsanbindung
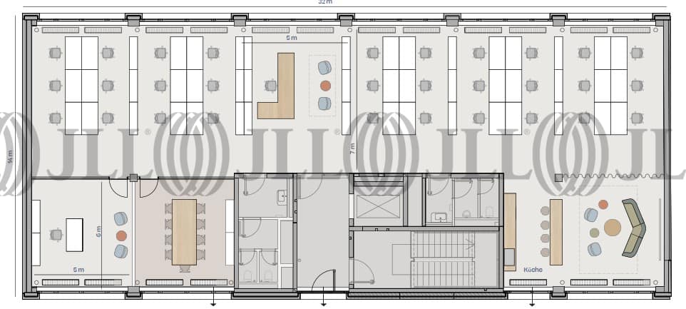
- Grundrisse
- Exposé herunterladen
- Ihr Kontakt
- Anfrage senden
Objekt
Das Projekt besteht aus drei separaten, durch attraktive Innenhöfe getrennten Gebäuden. Im EG von Haus I befindet sich eine zentrale Lobby, Die großzüge Terrasse ist vom 1.OG beider Gebäude (Haus I+II) sowie über den angrenzenden Hof für alle Mieter zugänglich.
Zertifizierungen
Energieausweis
Für diese Liegenschaft liegt ein Bedarfsausweis vom 23.06.2021 vom Eigentümer/Vermieter vor. Der wesentliche Energieträger der Liegenschaft ist Erdgas schwer. Der Endenergiebedarf Strom beträgt 12 kWh/(m²*a). Der Endenergiebedarf Wärme beträgt 56 kWh/(m²*a).Verfügbare Fläche
Lage und Verkehrsanbindung
- Hauptbahnhof, Berlin, Fahrzeit: 10 min
- U-Bahn, Moritzplatz, Linie U8, Gehzeit: 2 min
- Bus, U-Bahnhof Moritzplatz, Linie M29, Gehzeit: 2 min
- Bundesautobahn, A 100, Fahrzeit: 20 min
- Bundesautobahn, A 113, Fahrzeit: 30 min
- Flughafen, Berlin Brandenburg, Fahrzeit: 30 min
Ihr Kontakt

Tobias Rodewald
Ihr Kontakt
Marktinformationen
Mietmarkt
Kreuzberg, Berlin
Gew. Ø-Miete
29,92 € / m²
siehe 101 passende MietobjekteErfahren Sie mehr* Durchschnittspreis auf Grundlage historischer Transaktionen.






