Büros
ID B1281Provisionsfrei
Aktualisiert
Büroimmobilie - Berlin, Kreuzberg - B1281
Kreuzberg, 10963, Berlin, Berlin
34 € - 40 € / m²
- Fläche1.030 - 8.399 m²
- VerfügbarkeitSofort
- Objekt
- Ausstattung
- Lage und Verkehrsanbindung
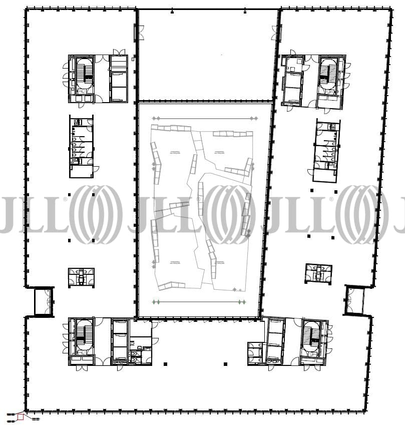
- Grundrisse
- Exposé herunterladen
- Ihr Kontakt
- Anfrage senden
Objekt
Die Macherei Berlin-Kreuzberg steht für Stadtgesundheit und -genuss auf allen Ebenen. Für eine abwechslungsreiche Lebens- und Arbeitsumgebung. Für Flexibilität, Vernetzung und Wohlbefinden. Für grüne Momente im Alltag und beste Aussichten von allen Dächern im Quartier.
Das achtgeschossige Büro- und Geschäftshaus, ein Holz-Hybrid-Bau mit raumhohen und die Fassade umlaufenden Fenstern, ist ein durch und durch ressourcenbewusster Entwurf des renommierten Berliner Büros ROBERTNEUN. Die auf Mieterwunsch ausstattbaren Mieteinheiten sind als flexibel adaptierbare und kollaborative Arbeitslandschaften nutzbar.
Zahlreiche Außenterrassen, die bepflanzte Dachfläche sowie der offene Innenhof, das grüne Herz des Gebäudes, sorgen für noch mehr Natürlichkeit. Hier lässt es sich eintauchen und durchatmen!
Das achtgeschossige Büro- und Geschäftshaus, ein Holz-Hybrid-Bau mit raumhohen und die Fassade umlaufenden Fenstern, ist ein durch und durch ressourcenbewusster Entwurf des renommierten Berliner Büros ROBERTNEUN. Die auf Mieterwunsch ausstattbaren Mieteinheiten sind als flexibel adaptierbare und kollaborative Arbeitslandschaften nutzbar.
Zahlreiche Außenterrassen, die bepflanzte Dachfläche sowie der offene Innenhof, das grüne Herz des Gebäudes, sorgen für noch mehr Natürlichkeit. Hier lässt es sich eintauchen und durchatmen!
Zertifizierungen
Energieausweis
LEED: Platinum WELL: Platinum WIREDSCORE: PlatinumVerfügbare Fläche
Lage und Verkehrsanbindung
Das Objekt befindet sich in einer einzigartigen Lage, genau an der Nahtstelle der beiden pulsierenden Berliner Bezirke Kreuzberg und Mitte. Hier vereint sich das Beste aus beiden Welten zu einem faszinierenden neuen Quartier: der unverwechselbare Kreuzberger Flair trifft auf die dynamische Energie von Mitte. Zusammen entsteht so ein innovativer und spannender Teil von Berlin: KREUZMITTE. Diese Verschmelzung bietet eine lebendige Mischung aus Kreativität, Kultur und urbanem Lebensstil und macht das Quartier zu einem begehrten Ort für Geschäftsleute, Kreative und alle, die das Besondere suchen.
- Flughafen, Berlin Brandenburg, Fahrzeit: 25 min
- Bundesautobahn, A 100, Fahrzeit: 10 min
- Bus, Willy-Brandt-Haus, Buslinien M41, Gehzeit: 5 min
- Hauptbahnhof, Berlin, Fahrzeit: 12 min
- U-Bahn, Möckernbrücke, Linie U2, Gehzeit: 1 min
Ihr Kontakt

Steve Ritt
Ihr Kontakt
Marktinformationen
Mietmarkt
Kreuzberg, Berlin
Gew. Ø-Miete
34 € - 40 € / m²
siehe 98 passende MietobjekteErfahren Sie mehr* Durchschnittspreis auf Grundlage historischer Transaktionen.






