Büros
ID B0999Büroimmobilie - Berlin, Kreuzberg - B0999
Kreuzberg, 12049, Berlin, Berlin
Provisionspflichtig: bei Anmietung 3 Netto-Monatsmieten zzgl. gesetzlicher Umsatzsteuer.** der Wert kann je nach Vertragslaufzeit variieren.
20 € - 25 € / m²
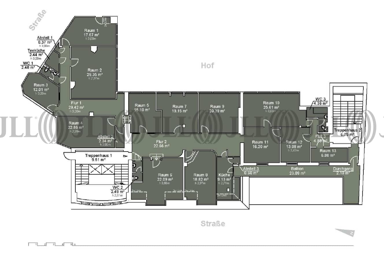
- Fläche285 - 630 m²
- VerfügbarkeitSofort
- Objekt
- Ausstattung
- Lage und Verkehrsanbindung
- Grundrisse
- Exposé herunterladen
- Ihr Kontakt
- Anfrage senden
Zertifizierungen
Energieausweis
Für diese Liegenschaft liegt ein Bedarfsausweis vom 2014-04-30 vom Eigentümer/Vermieter vor. Die wesentlichen Energieträger der Liegenschaft sind Nahwärme,Strom,Fernwärme. Endenergiebedarf: 633.40000 kWh/(m²*a).Verfügbare Fläche
Lage und Verkehrsanbindung
Der attraktive Altbau befindet sich in zentraler Lage in Neukölln, direkt am Hermannplatz, gegenüber dem Kaufhaus Karstadt. Diverse Einkaufsmöglichkeiten und gastronomische Einrichtungen sind in der unmittelbaren Umgebung angesiedelt.
- Hauptbahnhof, Berlin, Fahrzeit: 15 min
- U-Bahn, Hermannplatz; Linie U8, Gehzeit: 3 min
- Bus, U-Bahnhof Hermannplatz; Linien M29, M41, 194, Gehzeit: 3 min
- Bundesautobahn, A 100, Fahrzeit: 20 min
- Flughafen, Berlin Brandenburg, Fahrzeit: 30 min
Ihr Kontakt

Alexandra Teich
Ihr Kontakt
Marktinformationen
Mietmarkt
Kreuzberg, Berlin
Gew. Ø-Miete
20 € - 25 € / m²
siehe 101 passende MietobjekteErfahren Sie mehr* Durchschnittspreis auf Grundlage historischer Transaktionen.


