Büros
ID B0908Provisionsfrei
Büroimmobilie - Berlin, Kreuzberg - B0908
Kreuzberg, 10999, Berlin, Berlin
19,90 € / m²
- Fläche364 - 1.315 m²
- VerfügbarkeitSofort
- Objekt
- Ausstattung
- Lage und Verkehrsanbindung
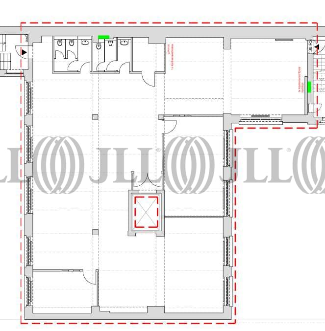
- Grundrisse
- Exposé herunterladen
- Ihr Kontakt
- Anfrage senden
Objekt
Dieses repräsentative Geschäftshaus verbindet historischen Charme mit den Anforderungen moderner Arbeitswelten. Hinter der sorgfältig erhaltenen Fassade eines Altbaus erstrecken sich helle und großzügig geschnittene Büroflächen, die durch hohe Decken und große Fenster eine lichtdurchflutete und inspirierende Atmosphäre schaffen. Die flexiblen Grundrisse erlauben die Gestaltung von sowohl offenen als auch kleinteiligen Bürolandschaften und passen sich somit ideal den individuellen Bedürfnissen seiner Nutzer an. Die Immobilie bietet ein kreatives Umfeld, das Produktivität und Wohlbefinden fördert.
Verfügbare Fläche
Lage und Verkehrsanbindung
Der Standort befindet sich im Herzen eines der dynamischsten und kulturell vielfältigsten Quartiere Berlins. Das direkte Umfeld ist geprägt von einer lebendigen Mischung aus Kunstgalerien, internationalen Restaurants, kreativen Agenturen und individuellen Geschäften, die eine einzigartige und inspirierende Arbeitsatmosphäre schaffen. Die hervorragende Anbindung an den öffentlichen Nahverkehr ist durch einen fußläufig erreichbaren U-Bahnhof gewährleistet, der mehrere wichtige Linien kreuzt und eine schnelle Verbindung in alle Teile der Stadt ermöglicht. Nahegelegene Grünanlagen und das Ufer des Landwehrkanals bieten zudem ideale Orte für eine entspannte Pause.
- Hauptbahnhof, Berlin, Fahrzeit: 15 min
- U-Bahn, Kottbusser Tor; Linien U1, U8, Gehzeit: 5 min
- Bus, Heinrichplatz; Linie M29, Gehzeit: 1 min
- Bundesautobahn, A 100, Fahrzeit: 15 min
- Flughafen, Berlin Brandenburg, Fahrzeit: 30 min
Ihr Kontakt

Alexandra Teich
Ihr Kontakt
Marktinformationen
Mietmarkt
Kreuzberg, Berlin
Gew. Ø-Miete
19,90 € / m²
siehe 101 passende MietobjekteErfahren Sie mehr* Durchschnittspreis auf Grundlage historischer Transaktionen.







