Büros
ID B0896Provisionsfrei
Aktualisiert
Büroimmobilie - Berlin, Kreuzberg - B0896
Kreuzberg, 10961, Berlin, Berlin
19 € / m²
- Fläche322 - 1.854 m²
- VerfügbarkeitSofort
- Objekt
- Ausstattung
- Lage und Verkehrsanbindung
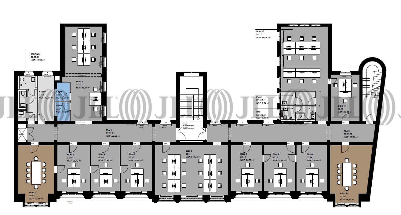
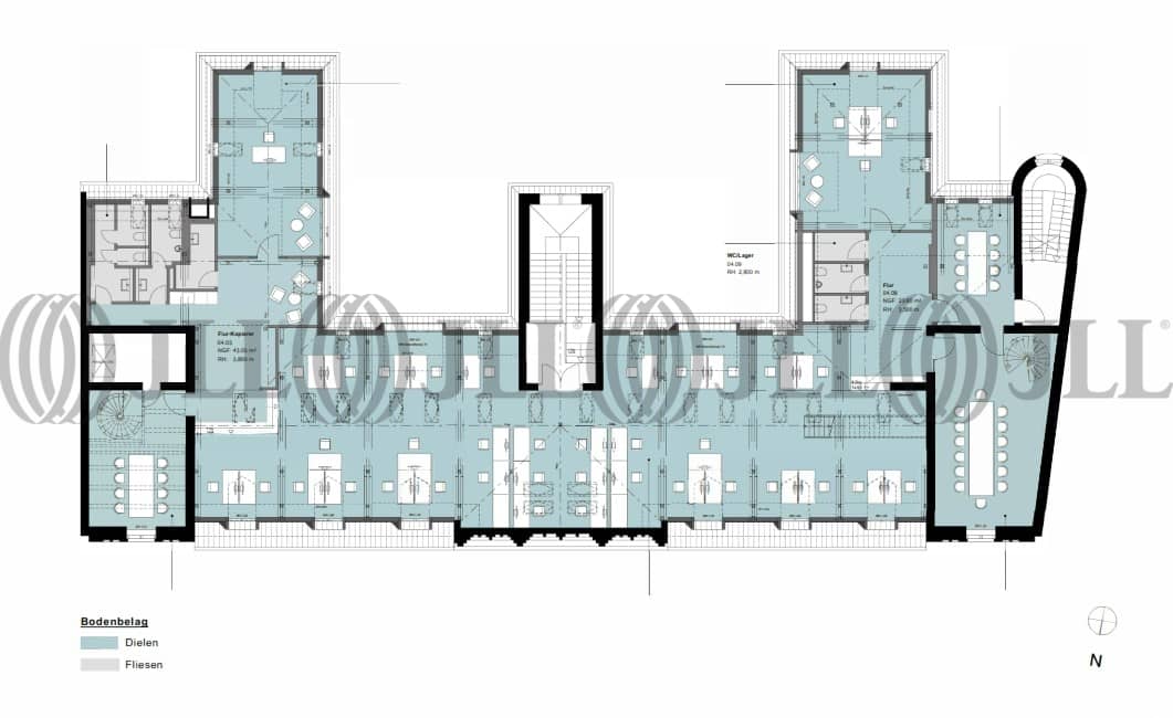
- Grundrisse
- Exposé herunterladen
- Ihr Kontakt
- Anfrage senden
Objekt
Neubauprojekt:
BREAM Zertifizierung angestrebt, Hohlraumboden, Glasfaser, Staffelgeschoss in Holzbauweise, Wahrscheinlich Fernwärme, Photovoltaik auf dem Dach, Kühlsegel + Nachtkühlung
BREAM Zertifizierung angestrebt, Hohlraumboden, Glasfaser, Staffelgeschoss in Holzbauweise, Wahrscheinlich Fernwärme, Photovoltaik auf dem Dach, Kühlsegel + Nachtkühlung
Verfügbare Fläche
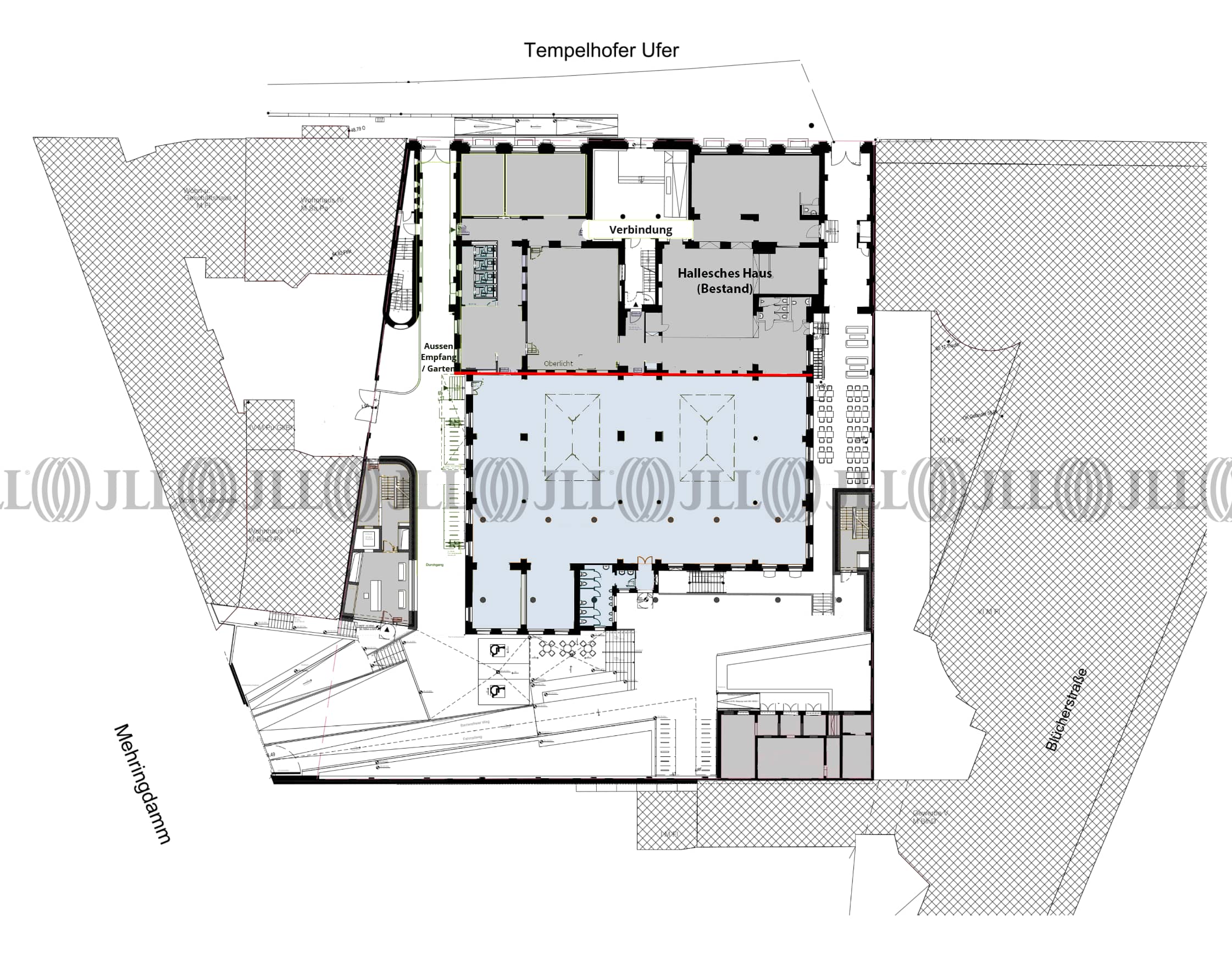
Lage und Verkehrsanbindung
Das Objekt befindet sich in zentraler Lage im Bezirk Kreuzberg unweit vom Mehringdamm mit Blick auf den Landwehrkanal.
- Flughafen, Berlin Brandenburg, Fahrzeit: 30 min
- Bundesautobahn, A 100, Fahrzeit: 10 min
- Bus, Hallesches Tor; Linien 248, M41, Gehzeit: 3 min
- U-Bahn, Hallesches Tor; Linie U1, Gehzeit: 3 min
- Hauptbahnhof, Berlin, Fahrzeit: 12 min
Ihr Kontakt

Chiara Costa Jacinto
Ihr Kontakt
Marktinformationen
Mietmarkt
Kreuzberg, Berlin
Gew. Ø-Miete
19 € / m²
siehe 98 passende MietobjekteErfahren Sie mehr* Durchschnittspreis auf Grundlage historischer Transaktionen.






























