Büros
ID B0875Provisionsfrei
Büroimmobilie - Berlin, Kreuzberg - B0875
Kreuzberg, 10997, Berlin, Berlin
15 € / m²
- Fläche514 - 1.871 m²
- VerfügbarkeitSofort
- Objekt
- Ausstattung
- Lage und Verkehrsanbindung
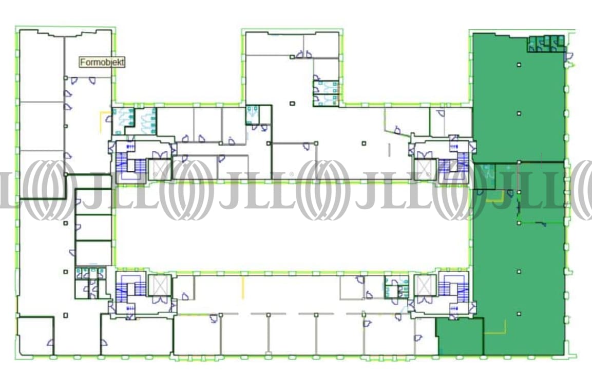
- Grundrisse
- Exposé herunterladen
- Ihr Kontakt
- Anfrage senden
Objekt
Das Gebäudeensemble orientiert sich an den Speicherbauten des 20. Jahrhunderts. Weithin sichtbar prägt die traditionelle Klinkerfassade das Erscheinungsbild und verleiht dem Objekt eine besondere Note. Entsprechend der ursprünglichen Bestimmung zeichnen sich die Flächen durch eine Weitläufigkeit aus, welche der individuellen Raumgestaltung kaum Grenzen setzt. Damit eignet sich der Bau insbesondere für Unternehmen aus der Medien- und Marketingbranche, aber auch das Handwerk wird hier ideale Voraussetzungen finden.
Verfügbare Fläche
Lage und Verkehrsanbindung
Direkt am Südufer der Spree und dem Landwehrkanal gelegen, befindet sich der Gewerbehof Schlesische Straße zwischen Oberbaum- und Elsenbrücke im so genannten Medien- und Dienstleistungsviertel Mediaspree im Bezirk Kreuzberg-Friedrichshain. Einer der vielseitigsten Kulturstandorte Berlins befindet sich in unmittelbarer Nachbarschaft: die Arena mit Badeschiff. Berlins Mitte und der Potsdamer Platz sind in 10 Autominuten erreichbar. Nur 1 km entfernt verläuft die B 96a, welche eine schnelle Anbindung an die Autobahnauffahrt Oberlandstraße (A100) gewährleistet. Den Ostbahnhof mit Anschluss zum DB-Fernverkehr erreichen Sie in 3 Autominuten. Ungefähr 5 Minuten zu Fuß benötigt man bis zum U-Bahnhof Schlesisches Tor.
- Bundesautobahn, A 100, Fahrzeit: 15 min
- Bus, Taborstraße; Linien 165, 265, Gehzeit: 1 min
- Hauptbahnhof, Berlin, Fahrzeit: 25 min
- U-Bahn, Schlesisches Tor; Linie U1, Gehzeit: 5 min
- Hauptbahnhof, Berlin, Fahrzeit: 25 min
Ihr Kontakt

Alexandra Teich
Ihr Kontakt
Marktinformationen
Mietmarkt
Kreuzberg, Berlin
Gew. Ø-Miete
15 € / m²
siehe 92 passende MietobjekteErfahren Sie mehr* Durchschnittspreis auf Grundlage historischer Transaktionen.




















