Büros
ID B0675Provisionsfrei
Büroimmobilie - Berlin, Prenzlauer Berg - B0675
Prenzlauer Berg, 10437, Berlin, Berlin
32 € / m²
- Fläche1.273 m²
- Verfügbarkeit2 Monate ab Vertragsunterzeichnung
- Objekt
- Ausstattung
- Lage und Verkehrsanbindung
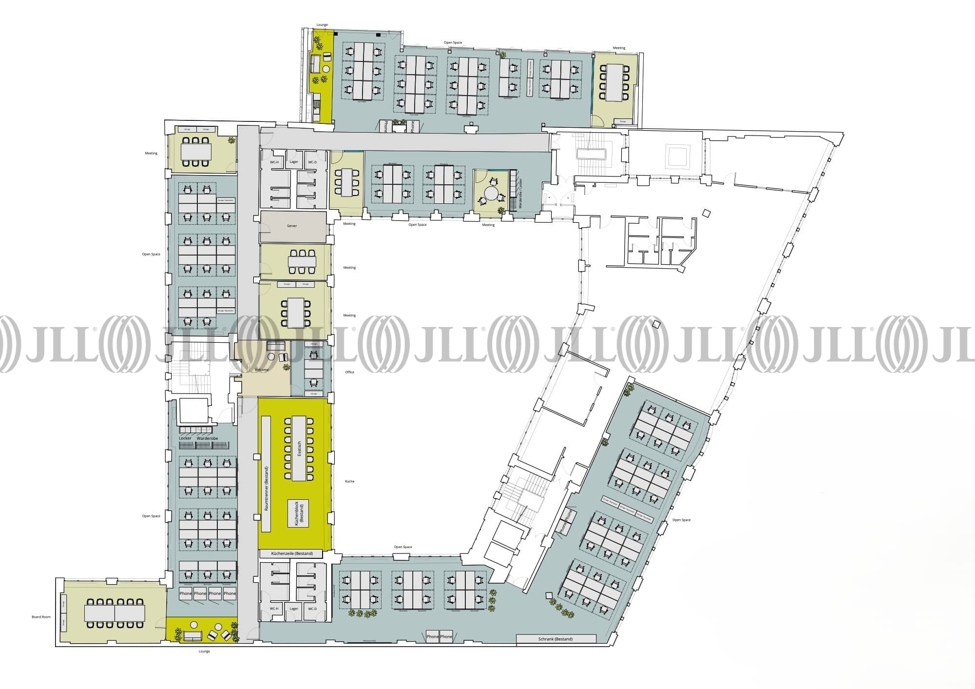
- Grundrisse
- Exposé herunterladen
- Ihr Kontakt
- Anfrage senden
Objekt
Das Objekt im Bezirk Prenzlauer Berg wurde im Jahr 1915 als Wäschefabrik errichtet und ist ein Berliner Baudenkmal. Die prägnante Kubatur und Anmutung des Gebäudes steht für ein starkes Bild in der Umgebung. Dank sorgfältiger und kontinuierlicher Instandhaltungen konnten der originelle Industrie- und Altbaucharakter sowie besondere architektonische Details bis heute erhalten bleiben.
Zertifizierungen
Energieausweis
LEED: GoldFür diese Liegenschaft liegt ein Bedarfsausweis vom 15.08.2009 vom Eigentümer/Vermieter vor. Der wesentliche Energieträger der Liegenschaft ist Erdgas schwer. Endenergiebedarf: 224.00000 kWh/(m²*a)
Verfügbare Fläche
Lage und Verkehrsanbindung
Das Objekt befindet sich in einem lebendigen Bezirk im Stadtteil Prenzlauer Berg. Diese Gegend ist bekannt für ihre historischen Gebäude, trendigen Cafés, Restaurants und Boutiquen, die die Straßen säumen und eine pulsierende Atmosphäre schaffen.
- Hauptbahnhof, Berlin, Fahrzeit: 15 min
- U-Bahn, Eberswalder Straße, Linie U2, Gehzeit: 4 min
- Straßenbahn/Tram, Raumerstraße, Linien 12, M1, M10, Gehzeit: 3 min
- Bundesautobahn, A 100, Fahrzeit: 40 min
- Flughafen, Berlin Brandenburg, Fahrzeit: 50 min
Ihr Kontakt

Alexandra Teich
Ihr Kontakt
Marktinformationen
Mietmarkt
Prenzlauer Berg, Berlin
Gew. Ø-Miete
32 € / m²
siehe 28 passende MietobjekteErfahren Sie mehr* Durchschnittspreis auf Grundlage historischer Transaktionen.





