Büros
ID B0491Provisionsfrei
Büroimmobilie - Berlin, Kreuzberg - B0491
Kreuzberg, 10969, Berlin, Berlin
19,50 € / m²
- Fläche244 - 1.769 m²
- VerfügbarkeitSofort
- Ausstattung
- Lage und Verkehrsanbindung
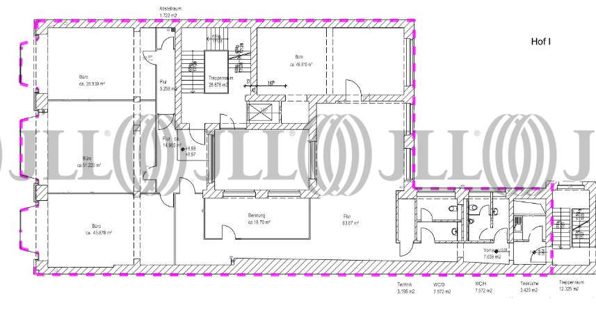
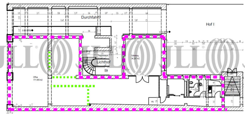
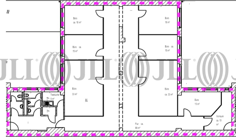
- Grundrisse
- Exposé herunterladen
- Ihr Kontakt
- Anfrage senden
Verfügbare Fläche
Lage und Verkehrsanbindung
Das Objekt befindet sich in dem Berliner Stadtteil Kreuzberg in der Nähe des Checkpoint Charlie. Die Anbindung an das öffentliche Nahverkehrsnetz erfolgt über die U-Bahnstationen Kochstraße sowie mehreren Buslinien. Der Gendarmenmarkt, Unter den Linden sowie der Potsdamer Platz sind in wenigen Minuten erreichbar.
- Hauptbahnhof, Hauptbahnhof, Fahrzeit: 20 min
- U-Bahn, Kochstraße; Linie U6, Gehzeit: 6 min
- Bus, U-Bahnhof Kochstr./ Jüdisches Museum; Linien M29, 248, Gehzeit: 5 min
- Bundesautobahn, A 100, Fahrzeit: 20 min
- Flughafen, Berlin Brandenburg, Fahrzeit: 40 min
Ihr Kontakt

Tobias Rodewald
Ihr Kontakt
Marktinformationen
Mietmarkt
Kreuzberg, Berlin
Gew. Ø-Miete
19,50 € / m²
siehe 101 passende MietobjekteErfahren Sie mehr* Durchschnittspreis auf Grundlage historischer Transaktionen.







