Büros
ID B0484Provisionsfrei
Aktualisiert
Büroimmobilie - Berlin, Kreuzberg - B0484
Kreuzberg, 10997, Berlin, Berlin
12 € / m²
- Fläche155 - 1.059 m²
- VerfügbarkeitSofort
- Objekt
- Ausstattung
- Lage und Verkehrsanbindung
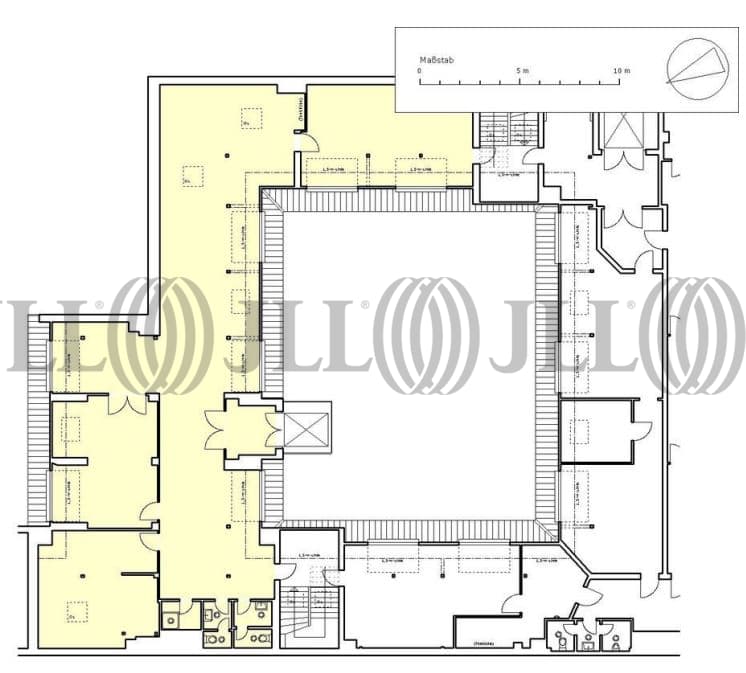
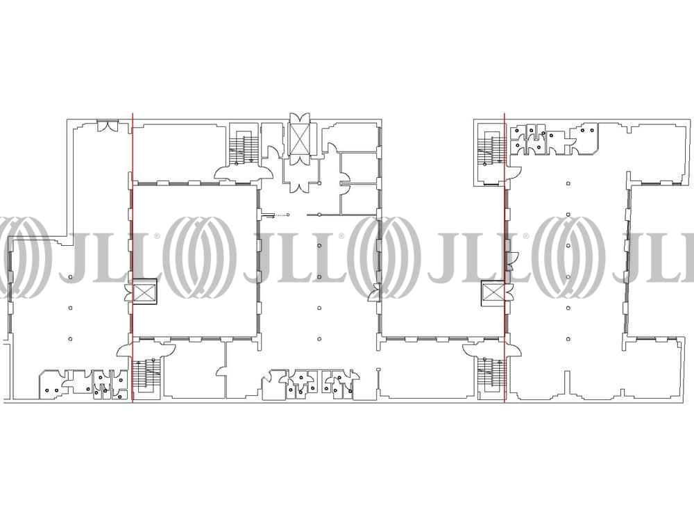
- Grundrisse
- Exposé herunterladen
- Ihr Kontakt
- Anfrage senden
Objekt
Bei dem Objekt handelt es sich um einen denkmalgeschützten Gewerbehof, der um 1891 und 1923 errichtet wurde. Die historischen Gebäude erstrecken sich über fünf Geschosse und bieten flexible Büro- und Gewerbeflächen. Die verfügbaren Einheiten können individuell nach Mieterwunsch ausgebaut werden. Zur modernen Ausstattung gehören Glasfaseranschlüsse und eine WiredScore-Zertifizierung, die eine hohe digitale Konnektivität bescheinigt. Auf dem Areal stehen zudem Pkw- und Fahrradstellplätze sowie Ladesäulen für Elektrofahrzeuge zur Verfügung.
Zertifizierungen
Energieausweis
WIREDSCORE: PlatinumVerfügbare Fläche
Lage und Verkehrsanbindung
Die Immobilie befindet sich in einer belebten Kiezlage im Berliner Bezirk Kreuzberg, unweit der Spree. In der direkten Umgebung haben sich zahlreiche Unternehmen der Kreativ- und Medienbranche angesiedelt, darunter namhafte Musiklabels und Werbeagenturen. Die Anbindung an den öffentlichen Nahverkehr ist durch mehrere U-Bahn- und Buslinien in der näheren Umgebung gewährleistet. Der Ostbahnhof ist in etwa 600 Metern fußläufig erreichbar und bietet Anschluss an den Regional- und Fernverkehr. Der Alexanderplatz in Berlin-Mitte ist in nur wenigen Autominuten erreichbar. Die Lage zeichnet sich durch ihre Nähe zu zentralen Punkten und eine gute Infrastruktur aus.
- Hauptbahnhof, Berlin, Fahrzeit: 20 min
- S-Bahn, Ostbahnhof, Linien S3, S5, S7, S9, S75, Gehzeit: 10 min
- Bus, Audre-Lorde-Straße, Linien 140, 165, 265, Gehzeit: 2 min
- Bundesautobahn, A 100, Fahrzeit: 30 min
- Bundesautobahn, A 113, Fahrzeit: 19 min
- Flughafen, Berlin Brandenburg, Fahrzeit: 30 min
Ihr Kontakt

Alexandra Teich
Ihr Kontakt
Marktinformationen
Mietmarkt
Kreuzberg, Berlin
Gew. Ø-Miete
12 € / m²
siehe 101 passende MietobjekteErfahren Sie mehr* Durchschnittspreis auf Grundlage historischer Transaktionen.





