Büros
ID B0331Provisionsfrei
Büroimmobilie - Berlin, Kreuzberg - B0331
Kreuzberg, 10999, Berlin, Berlin
20 € / m²
- Fläche555 - 3.055 m²
- VerfügbarkeitSofort
- Ausstattung
- Lage und Verkehrsanbindung
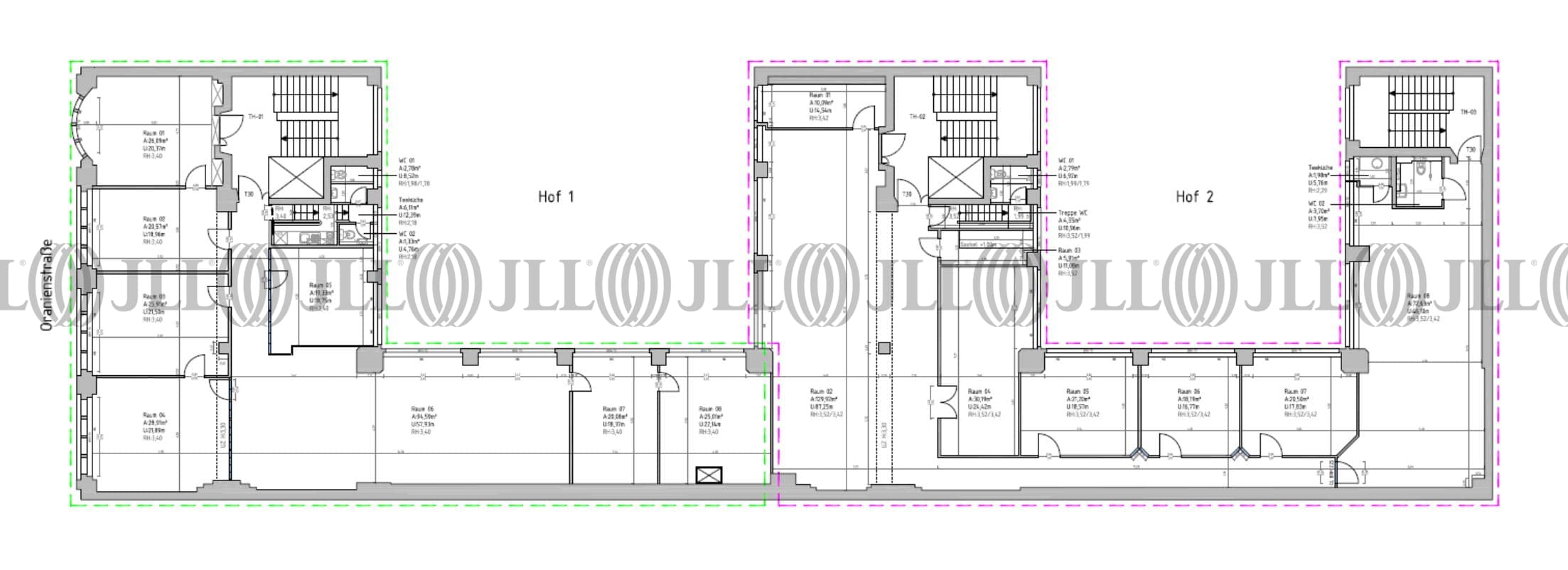
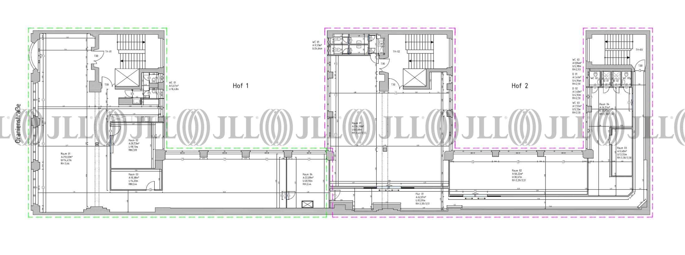
- Grundrisse
- Exposé herunterladen
- Ihr Kontakt
- Anfrage senden
Verfügbare Fläche
Lage und Verkehrsanbindung
Das Objekt befindet sich im Berliner Stadtbezirk Kreuzberg - in der Nähe des Mariannenplatzes und des Görlitzer Parks mit seinen schön gestalteten Grünanlagen. Der sanierte Gewerbehof repräsentiert eine typische Kreuzberger Mischung aus Wohnen und Arbeiten. Entlang der Oranienstraße gibt es zahlreiche Einkaufsmöglichkeiten und internationale Gastronomie.
- Hauptbahnhof, Berlin, Fahrzeit: 15 min
- U-Bahn, Kottbusser Tor; Linien U1, U3, U8, Gehzeit: 5 min
- Bus, Rio-Reiser-Platz; Linie M29, Gehzeit: 2 min
- Bundesautobahn, A 100, Fahrzeit: 15 min
- Flughafen, Berlin Brandenburg, Fahrzeit: 40 min
Ihr Kontakt

Tobias Rodewald
Ihr Kontakt
Marktinformationen
Mietmarkt
Kreuzberg, Berlin
Gew. Ø-Miete
20 € / m²
siehe 101 passende MietobjekteErfahren Sie mehr* Durchschnittspreis auf Grundlage historischer Transaktionen.








