Büros
ID M1420Provisionsfrei
Büroimmobilie - Nürnberg, Innenstadtgürtel West/Nord/Ost - M1420
Innenstadtgürtel West/Nord/Ost, 90491, Nürnberg, Bayern
Kontaktieren Sie uns für den Preis
- Fläche1.800 m²
- VerfügbarkeitAuf Anfrage
- Objekt
- Ausstattung
- Lage und Verkehrsanbindung
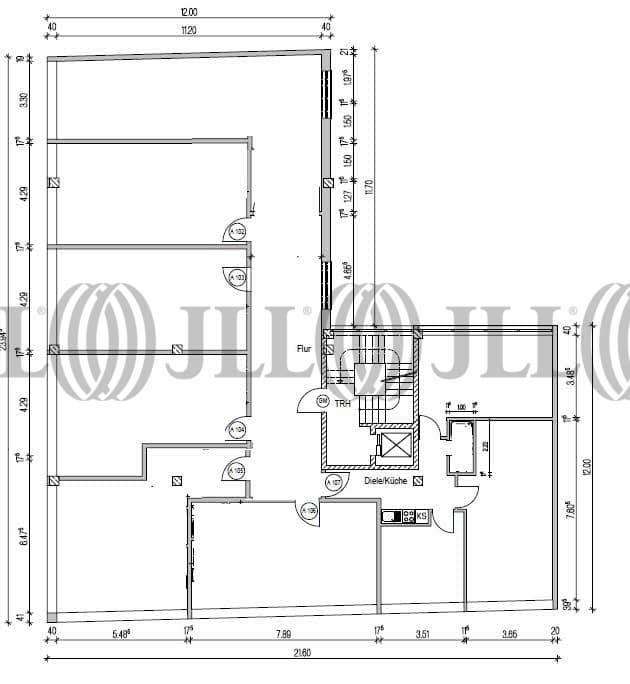
- Grundriss
- Exposé herunterladen
- Ihr Kontakt
- Anfrage senden
Objekt
Der Neubau bringt dem renommierten Stadtteil Erlenstegen ein weiteres exklusives, mehrgeschossiges Bürohaus, dass über ca. 1.800 m² Bürofläche und hauseigener Tiefgarage aufwarten kann.
Verfügbare Fläche
Lage und Verkehrsanbindung
Das Bürohaus liegt im Nord-Osten von Nürnberg nur wenige Fahrminuten von der Innenstadt und dem Flughafen entfernt. Der Stadtteil Erlenstegen ist bekannt für anspruchsvolle Geschäftsadressen und der Büroneubau positioniert sich an einer markanten Eck-Sichtlage. Dienstleister des täglichen Bedarfs befinden sich in der Nähe.
- Flughafen, Nürnberg, Fahrzeit: 14 min
- Bundesautobahn, A 3, Fahrzeit: 8 min
- Bus, Bushaltestelle Sebastianspital Buslinien 65, Gehzeit: 5 min
Ihr Kontakt

Julia Schreiter
Ihr Kontakt
Marktinformationen
Mietmarkt
Innenstadtgürtel West/Nord/Ost, Nürnberg
siehe 0 passende MietobjekteErfahren Sie mehr
* Durchschnittspreis auf Grundlage historischer Transaktionen.


