Hallen
ID M2396Provisionsfrei
Hallen - Raubling - M2396
83064, Raubling, Bayern
Kontaktieren Sie uns für den Preis
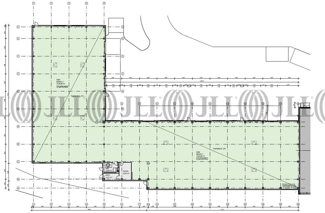
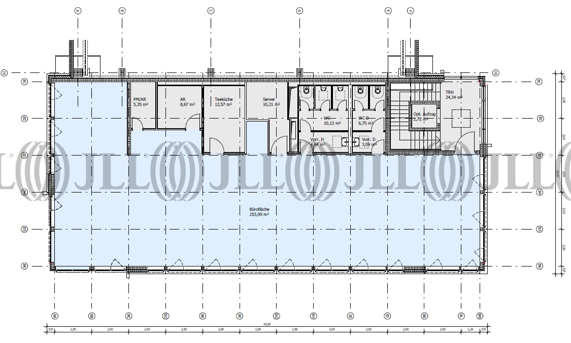
- Fläche2.702 m²
- Verfügbarkeit15 Monate ab Vertragsunterzeichnung
- Objekt
- Ausstattung
- Lage und Verkehrsanbindung
- Grundrisse
- Exposé herunterladen
- Ihr Kontakt
- Anfrage senden
Objekt
In Raubling, in direkter Sichtachse zur Autobahnauffahrt Reischhart (A93) entsteht eine hochwertige Unternehmerimmobilie zur Miete. Der Standort besticht durch die exzellente Anbindung zum Inntaldreieck und nach Österreich. Die geplanten Flächen eigenen sich insbesondere für mittelständische Unternehmen im produzierenden Sektor. Reine Logistikansiedlungen sind gemäß Bebauungsplan ausgeschlossen. Mieterwünsche hinsichtlich Layouts und Ausstattungen können weitgehend berücksichtigt werden. Die Flächen können ca. 15 Monate nach Mietvertragsunterzeichnung übergeben werden.
Verfügbare Fläche
Lage und Verkehrsanbindung
- Flughafen, München, Fahrzeit: 64 min
- Bundesautobahn, A 93, Fahrzeit: 1 min
- Bundesautobahn, A 8, Fahrzeit: 4 min
Ihr Kontakt

Christof Pihale
Ihr Kontakt





