Hallen
ID M1388Provisionsfrei
Aktualisiert
Hallen - Fürth - M1388
90766, Fürth, Bayern
5 € / m²
- Fläche850 - 2.500 m²
- VerfügbarkeitSofort
- Objekt
- Ausstattung
- Lage und Verkehrsanbindung
- Grundriss
- Exposé herunterladen
- Ihr Kontakt
- Anfrage senden
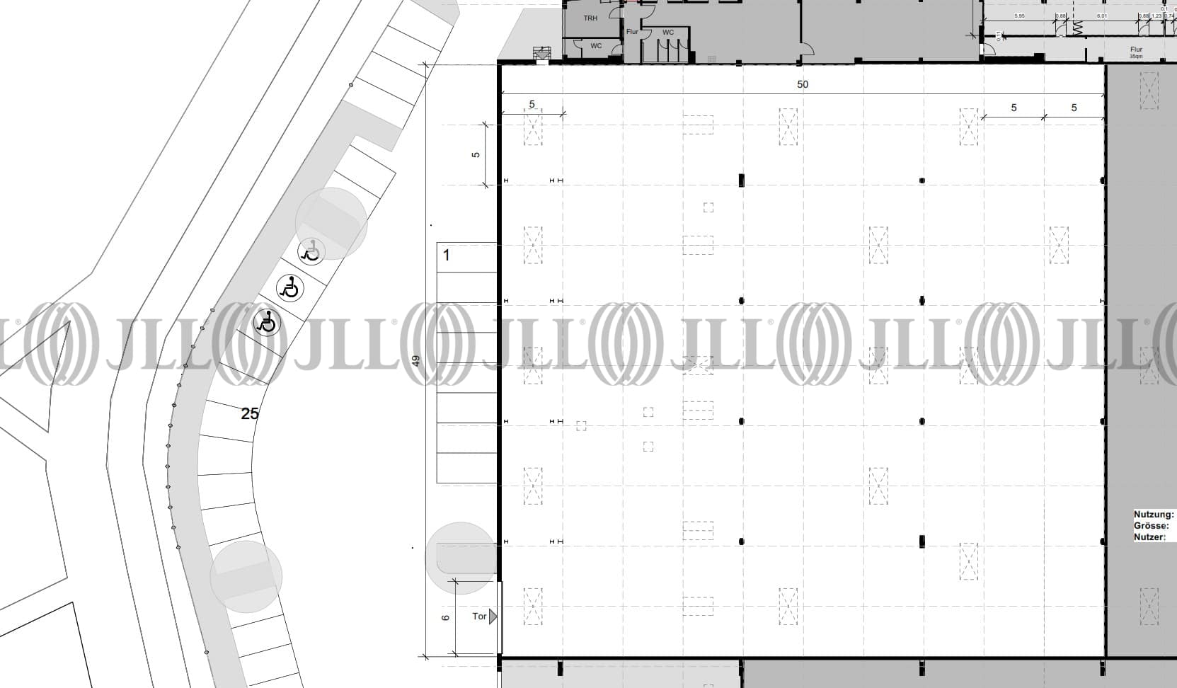
Objekt
Die anmietbare Fläche verfügt über rund 2.500 m² und kann ab ca. 850 m² geteilt werden. Folgende Merkmale zeichnen die Flächenvakanz aus:
- ebenerdige Lagerfläche
- Größe ca. 2.500 m² / teilbar (gem. Hallenraster 5x5 ab ca. 850 m²)
- Zufahrt ebenerdig über Rolltor (5 m x 3,5 m)
- Laufzeit unbefristet
- ebenerdige Lagerfläche
- Größe ca. 2.500 m² / teilbar (gem. Hallenraster 5x5 ab ca. 850 m²)
- Zufahrt ebenerdig über Rolltor (5 m x 3,5 m)
- Laufzeit unbefristet
Verfügbare Fläche
Lage und Verkehrsanbindung
Das Objekt befindet sich in guter Lage in der Hardhöhe in Fürth und verfügt über eine sehr gute Verkehrsanbindung aufgrund der Nähe zur Bundesstraße 8. Öffentliche Verkehrsmittel sowie die Bahnstation Fürth-Klinikum sind in unmittelbarer Nähe fußläufig erreichbar.
- Flughafen, Nürnberg, Fahrzeit: 23 min
- Bundesautobahn, A 73, Fahrzeit: 9 min
- Bundesautobahn, A 3, Fahrzeit: 18 min
- Bundesstraße, B 8, Fahrzeit: 1 min
- Bundesstraße, B 4, Fahrzeit: 21 min
- Hafen, Nürnberg, Bayernhafen, Fahrzeit: 18 min
Ihr Kontakt

Meike Schünemann
Ihr Kontakt



