Büros
ID K0828Provisionsfrei
Aktualisiert
Büroimmobilie - Köln, Mülheim - K0828
Mülheim, 51063, Köln, Nordrhein-Westfalen
Kontaktieren Sie uns für den Preis
- Objekt
- Ausstattung
- Lage und Verkehrsanbindung
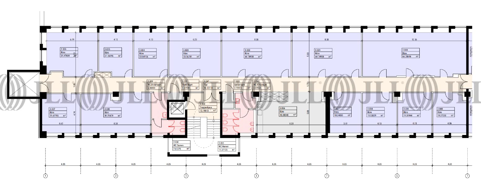
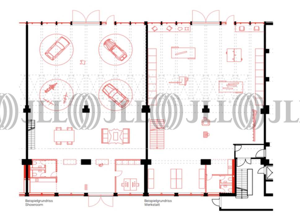
- Grundrisse
- Exposé herunterladen
- Ihr Kontakt
- Anfrage senden
Objekt
Das Carlswerk in der Schanzenstraße verfügt in seinen fünf vielseitigen Quartieren über hochwertige Lofts in historischem Industrie-Ambiente, flexible Büroräume in maßgeschneiderten Dimensionen sowie große industrielle Hallen- und Lagerflächen für Gewerbe, Dienstleistung und Produktion. Der Ausbau der Mietflächen wird in enger Abstimmung mit dem Mieter nach den individuellen Wünschen und Erfordernissen durchgeführt.
Verfügbare Fläche
Lage und Verkehrsanbindung
Das einzigartige Areal im Köln-Mülheimer Schanzenviertel hat seinen Ursprung im Jahre 1874, als Felten & Guilleaume mit der Produktion von Kabeln auf dem Gelände begonnen haben. Die charmanten Gebäude wurden nun zu Büro-, Loft-, Service-, Lager- und Produktionsflächen umgebaut. Der Standort bietet eine rasche Anbindung an den ÖPNV und den Individualverkehr. Zahlreiche namhafte Anmietungen durch Firmen verschiedenster Branchen bereichern die Vielfalt des innerstädtischen Gewerbecampus. Das Palladium und das E-Werk tragen, neben weiteren Locations, als Veranstaltungsorte für Konzerte und andere Events zur kulturellen Stärkung des Quartiers bei. Eine Tankstelle befindet sich in der Nähe. Dienstleister des täglichen Bedarfs befinden sich in der Nähe.
- Flughafen, Köln/Bonn, Fahrzeit: 12 min
- Flughafen, Düsseldorf, Fahrzeit: 50 min
- Bundesautobahn, A 3, Fahrzeit: 8 min
- Bundesautobahn, A 4, Fahrzeit: 10 min
- Bundesautobahn, A 59, Fahrzeit: 12 min
- Bus, Schanzenstraße 190, Gehzeit: 5 min
Ihr Kontakt

Michael Kusen
Ihr Kontakt











