Hallen
ID H1896Provisionsfrei
Hallen - Lübeck - H1896
23560, Lübeck, Schleswig-Holstein
Kontaktieren Sie uns für den Preis
- Fläche6.308 m²
- VerfügbarkeitApril 2026
- Objekt
- Ausstattung
- Lage und Verkehrsanbindung
- Grundriss
- Exposé herunterladen
- Ihr Kontakt
- Anfrage senden
Objekt
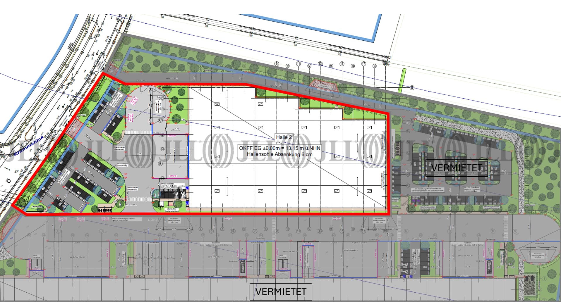
Auf dem Gelände des neuen Gewerbegebiets Semiramis würde ein moderner Logistik- und Gewerbepark mit zwei Gebäuden gebaut. Die Halle 2 ist ab April 2026 bezugsfertig. Ein Early Access kann nach Absprache vereinbart werden.
Die größere Gebäudeeinheit des Gewerbeparks ist bereits an ein namhaftes Unternehmen vermietet. Eine separate Single-Tenant-Unit steht noch zur Verfügung. Die verfügbare Einheit ist ein eigenständiges Gebäude, steht ausschließlich dem Nutzer zur Verfügung und bietet ca. 6.308 m² Hallenfläche, 534 m² Bürofläche sowie 464 m² Mezzaninefläche. Die Halle verfügt über insgesamt sechs Rampentore für die Andienung sowie ein ebenerdiges Tor. Die Hallenhöhe beträgt 12,20 Meter, die Bodentraglast liegt bei 7 t/m². Die Halle ist mit einer WGK-3-Folie ausgestattet. Die Beheizung erfolgt über eine Wärmepumpe, was zu einer energieeffizienten und zukunftssicheren Versorgung beiträgt. Das Gebäude wird nach modernsten Standards errichtet und erfüllt ein umfassendes Nachhaltigkeitskonzept.
Im Außenbereich stehen insgesamt 56 PKW-Stellplätze zur Verfügung. Diese befinden sich strategisch günstig im Eingangsbereich des Areals, unmittelbar im vorderen Bereich der Halle nahe der Andienung, was einen komfortablen und effizienten Zugang gewährleistet. Die Hauptzufahrt und Einfahrt wird gemeinschaftlich mit der bereits vermieteten Nachbareinheit genutzt. Über diese zentrale Einfahrt erfolgt der gesamte Verkehrsfluss, sowohl für PKW als auch für LKW.
Die größere Gebäudeeinheit des Gewerbeparks ist bereits an ein namhaftes Unternehmen vermietet. Eine separate Single-Tenant-Unit steht noch zur Verfügung. Die verfügbare Einheit ist ein eigenständiges Gebäude, steht ausschließlich dem Nutzer zur Verfügung und bietet ca. 6.308 m² Hallenfläche, 534 m² Bürofläche sowie 464 m² Mezzaninefläche. Die Halle verfügt über insgesamt sechs Rampentore für die Andienung sowie ein ebenerdiges Tor. Die Hallenhöhe beträgt 12,20 Meter, die Bodentraglast liegt bei 7 t/m². Die Halle ist mit einer WGK-3-Folie ausgestattet. Die Beheizung erfolgt über eine Wärmepumpe, was zu einer energieeffizienten und zukunftssicheren Versorgung beiträgt. Das Gebäude wird nach modernsten Standards errichtet und erfüllt ein umfassendes Nachhaltigkeitskonzept.
Im Außenbereich stehen insgesamt 56 PKW-Stellplätze zur Verfügung. Diese befinden sich strategisch günstig im Eingangsbereich des Areals, unmittelbar im vorderen Bereich der Halle nahe der Andienung, was einen komfortablen und effizienten Zugang gewährleistet. Die Hauptzufahrt und Einfahrt wird gemeinschaftlich mit der bereits vermieteten Nachbareinheit genutzt. Über diese zentrale Einfahrt erfolgt der gesamte Verkehrsfluss, sowohl für PKW als auch für LKW.
Verfügbare Fläche
Lage und Verkehrsanbindung
Das Neubauprojekt befindet sich an einem attraktiven Gewerbestandort im Lübecker Stadtteil St. Jürgens, im Gewerbegebiet Semiramis. Die Lage zeichnet sich durch eine gute Verkehrsanbindung aus und bietet ideale Voraussetzungen für ansässige Unternehmen, die auf eine gute Erreichbarkeit angewiesen sind. Die Autobahnauffahrt Lübeck-Genin zur A20 ist nur etwa 5 Kilometer entfernt und verbindet den Standort in westlicher Richtung über die A1 schnell und direkt mit der Metropolregion Hamburg. In östlicher Richtung führt die A20 nach Rostock und weiter bis nach Stralsund. Auch die Auffahrt zur Autobahn A1 ist nur rund 9 Kilometer entfernt. Über die A1 gelangt man nördlich innerhalb weniger Minuten nach Lübeck-Zentrum und weiter zur Ostseeküste, während die südliche Verbindung direkt nach Hamburg führt. Die Strecke bis zum Hamburger Stadtzentrum beträgt ca. 65 Kilometer, die Fahrzeit liegt bei etwa 60 Minuten. Der Standort wird perspektivisch noch besser an den öffentlichen Nahverkehr angebunden sein. Derzeit verkehrt bereits eine Buslinie mit direkter Verbindung zum Lübecker Hauptbahnhof. Eine weitere Buslinie, die das Gewerbegebiet Semiramis anfährt, ist derzeit in Planung. Die Entfernung zum Lübecker Hauptbahnhof beträgt lediglich rund 9 Kilometer, die Fahrzeit mit dem Auto beträgt ca. 15 Minuten. Vom Hauptbahnhof bestehen regelmäßige und schnelle Zugverbindungen nach Hamburg. Die Fahrzeit mit dem Regionalexpress zum Hamburger Hauptbahnhof beträgt ca. 45 Minuten, was den Standort auch für Pendler und Besucher attraktiv macht. Das Gewerbeumfeld ist geprägt von namhaften Unternehmen aus den Bereichen Logistik, Recycling, Lebensmittelverarbeitung, Verpackungsindustrie und Technologie. Zu den ansässigen Betrieben zählen unter anderem Sonoco, Dräger sowie verschiedene Logistik- und Produktionsunternehmen. Die gewachsene Infrastruktur und die hohe Unternehmensdichte bieten zahlreiche Synergiepotenziale. Auch die Anbindung an den internationalen Luftverkehr ist gewährleistet. Der nächstgelegene und zum Großteil national ausgerichtete Flughafen ist der Flughafen Lübeck, der in rund 15 Minuten erreichbar ist. Darüber hinaus liegt der internationale Flughafen Hamburg in einer Entfernung von etwa 65 Kilometern. Lübeck verfügt nach Rostock über den größten Ostseehafen. Über den Hafen bestehen regelmäßige Schiffsverbindungen nach Skandinavien und zum Baltikum. Insbesondere im Bereich Roll on – Roll off Transporte nimmt der Lübecker Hafen eine bedeutende Position ein.
- Flughafen, Lübeck, Fahrzeit: 15 min
- Bundesautobahn, A20, Fahrzeit: 10 min
- Bundesautobahn, A1, Fahrzeit: 12 min
- Bundesstraße, B207, Fahrzeit: 10 min
- Hauptbahnhof, Lübeck, Fahrzeit: 15 min
- Bus, Lübeck Butenhof, Gehzeit: 13 min
Ihr Kontakt

Vivien Guttau
Ihr Kontakt


