Hallen
ID H1884Hallen - Luhden - H1884
31711, Luhden, Niedersachsen
Provisionspflichtig: bei Anmietung 3 Netto-Monatsmieten zzgl. gesetzlicher Umsatzsteuer.** der Wert kann je nach Vertragslaufzeit variieren.
Kontaktieren Sie uns für den Preis
- Fläche161 - 5.229 m²
- VerfügbarkeitAuf Anfrage
- Objekt
- Ausstattung
- Lage und Verkehrsanbindung
- Grundrisse
- Exposé herunterladen
- Ihr Kontakt
- Anfrage senden
Objekt
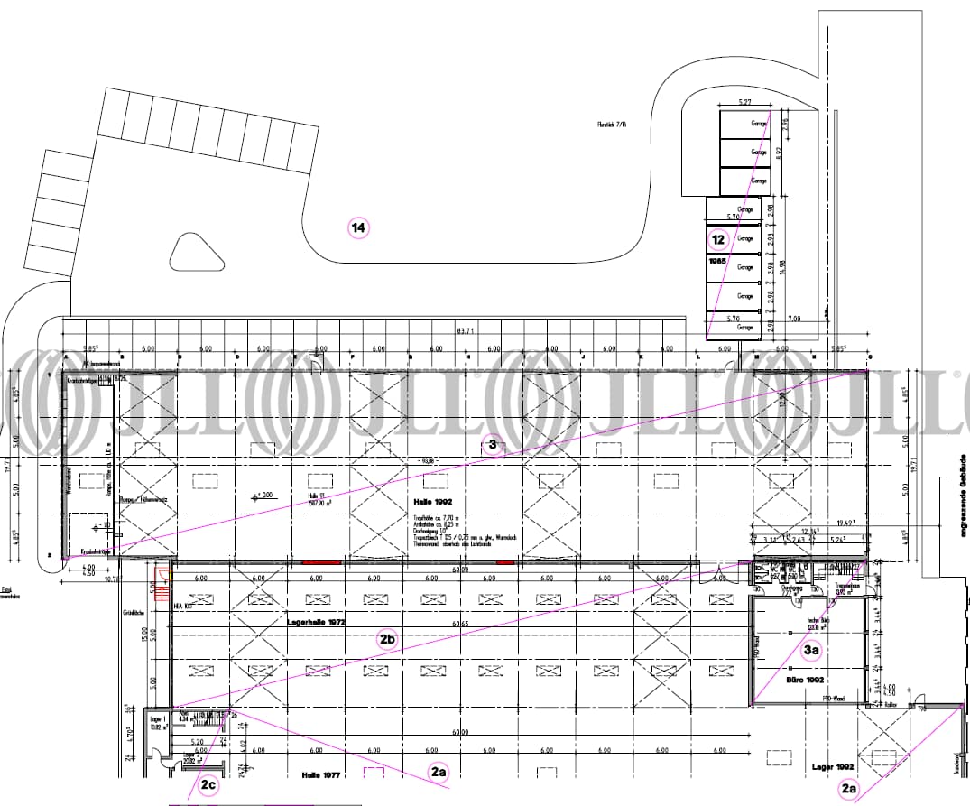
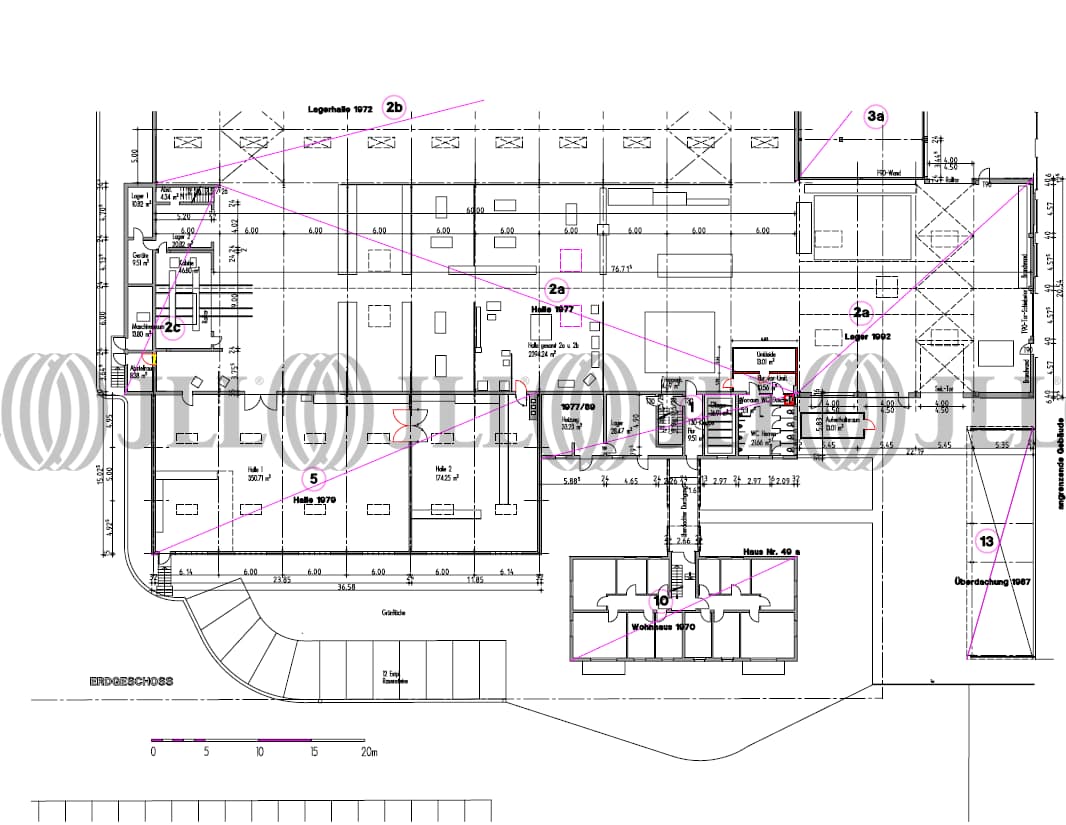
Diese großzügige Industriehalle in Luhden beeindruckt durch ihre durchdachte Aufteilung und gute Ausstattung. Das Objekt ist unterteilt. Die Einheiten sind innenliegend durch Tore miteinander verbunden, was eine flexible Nutzung und reibungslose Produktionsabläufe gewährleistet. 3 Hallenschiffe sind jeweils mit funktionsfähigen und leistungsstarken Krananlagen ausgestattet. Die Flächen bieten einen ausgelegten Industriefußboden, der ideal für die Aufstellung von schweren Maschinen geeignet ist. Damit ist die Halle perfekt für unterschiedlichste industrielle Anwendungen vorbereitet. Ein weiteres Highlight der Immobilie ist die im Jahr 2023 neu installierte Heizungsanlage, die für ein effizientes und angenehmes Raumklima sorgt. Gesamtfläche: 5637 qm, davon Hallenfläche 5229 qm und Büro 408 qm (alle Teilflächen individuell. auf- bzw. abteilbar nach Bedarf).
Verfügbare Fläche
Lage und Verkehrsanbindung
Die Kranhallen befinden sich in Luhden, einem aufstrebenden Wirtschaftsstandort in Niedersachsen, der durch seine hervorragende Verkehrsanbindung und strategische Lage punktet. Die Immobilie liegt unmittelbar an der Autobahn A2, einer der wichtigsten Ost-West-Verbindungen Deutschlands, die bedeutende Wirtschaftszentren wie Hannover, Bielefeld und Dortmund miteinander verbindet. Der Standort Luhden profitiert von seiner Nähe zu den Ballungsräumen und bietet eine ausgezeichnete Anbindung an das europäische Straßennetz. Über die Autobahn sind Logistikzentren, Produktionsstätten und Distributionshubs schnell erreichbar, was ihn für Unternehmen aus der Industrie und Logistikbranche besonders attraktiv macht. Zudem befindet sich die Immobilie in einer Region mit einem gut ausgebauten Gewerbegebiet und einer wirtschaftsfreundlichen Infrastruktur. Der nahegelegene Wirtschaftsraum Minden-Lübbecke sowie die Metropolregion Hannover-Braunschweig-Göttingen-Wolfsburg bieten Zugang zu qualifizierten Fachkräften und weiteren Ressourcen. Die zentrale Lage in Norddeutschland macht Luhden zu einem strategischen Knotenpunkt für Unternehmen, die auf Effizienz in der Supply Chain und kurze Wege setzen. Die vorhandene Kranhalle ist ideal für industrielle Nutzungen, Lagerhaltung oder Produktionsbetriebe geeignet und bietet dank der ebenerdigen Ausführung maximale Flexibilität für unterschiedlichste Betriebsanforderungen.
- Flughafen, Hannover, Fahrzeit: 37 min
- Bundesautobahn, A2, Fahrzeit: 3 min
- Bundesstraße, B65, Fahrzeit: 6 min
- Bundesstraße, B 83, Fahrzeit: 2 min
- Bahnhof, Minden, Fahrzeit: 16 min
- Bus, Luhden Nord-Süd-Straße, Linie 2131, Gehzeit: 5 min
Ihr Kontakt

Vivien Guttau
Ihr Kontakt



















