Hallen
ID F2409Hallen - Griesheim - F2409
64347, Griesheim, Hessen
Provisionspflichtig: bei Anmietung 3 Netto-Monatsmieten zzgl. gesetzlicher Umsatzsteuer.** der Wert kann je nach Vertragslaufzeit variieren.
6,50 € / m²
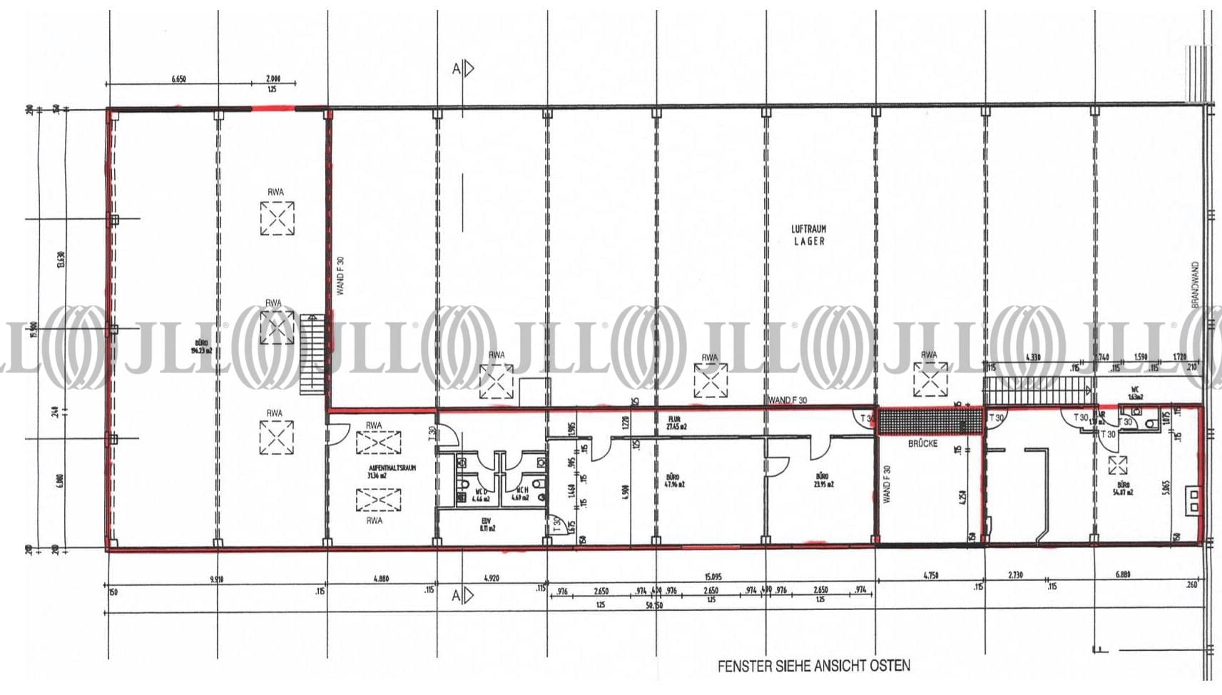
- Fläche870 m²
- VerfügbarkeitAuf Anfrage
- Objekt
- Ausstattung
- Lage und Verkehrsanbindung
- Grundrisse
- Exposé herunterladen
- Ihr Kontakt
- Anfrage senden
Objekt
Diese Gewerbeimmobilie liegt in einem gut angebunden Gewerbegebiet in Griesheim. Es Handelt sich um eine Repräsentative Lagerimmobilie mit ausreichender Bürofläche, welche auch zu Produktionszwecken genutzt werden kann.
Verfügbare Fläche
Lage und Verkehrsanbindung
Das Objekt liegt im Industriegebiet und ist von den Anschlußstellen A5 und A67 (Darmstadt/Griesheim) in wenigen Minuten erreichbar. Die Städte Frankfurt (A5) und Mainz Wiesbaden (A67) sowie der Rhein-Main-Flughafen sind vom Objekt aus schnell erreichbar.
- Flughafen, Frankfurt am Main, Fahrzeit: 30 min
- Bundesautobahn, A 67, Fahrzeit: 5 min
- Bundesautobahn, A 5, Fahrzeit: 8 min
- Bundesstraße, B 26, Fahrzeit: 5 min
- Bundesstraße, B 42, Fahrzeit: 11 min
- Hafen, Gustavsburg, Fahrzeit: 22 min
Ihr Kontakt

Pascal Ambs
Ihr Kontakt











