Büros
ID F1141Büroimmobilie - Mainz, Hechtsheim - F1141
Hechtsheim, 55129, Mainz, Rheinland-Pfalz
Provisionspflichtig: bei Anmietung 4 Netto-Monatsmieten zzgl. gesetzlicher Umsatzsteuer.** der Wert kann je nach Vertragslaufzeit variieren.
8,95 € / m²
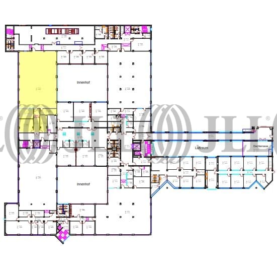
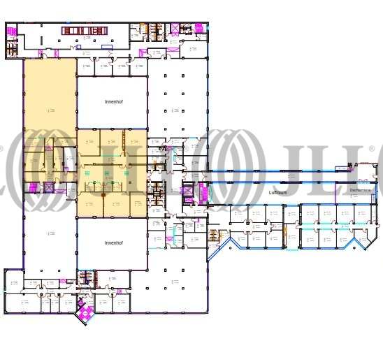
- Fläche237 - 2.751 m²
- VerfügbarkeitSofort
- Objekt
- Ausstattung
- Lage und Verkehrsanbindung
- Grundrisse
- Exposé herunterladen
- Ihr Kontakt
- Anfrage senden
Objekt
Die Büroflächen verfügen über moderne und hochwertige Ausstattungsstandards. Die Aufteilung der Büros kann flexibel gestaltet werden.
Zertifizierungen
Energieausweis
Für diese Liegenschaft liegt ein Verbrauchsausweis vom 25.08.2020 vom Eigentümer/Vermieter vor. Der wesentliche Energieträger der Liegenschaft ist Erdgas schwer. Der Endenergieverbrauch Strom beträgt 27.90 kWh/(m²*a). Der Endenergieverbrauch Wärme beträgt 68.10 kWh/(m²*a).Verfügbare Fläche
Lage und Verkehrsanbindung
Ihr Kontakt

Christian Lütter
Ihr Kontakt


















