Hallen
ID F0425Premium JLL
Provisionsfrei
Hallen - Messel - F0425
64409, Messel, Hessen
5,50 € / m²
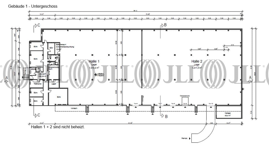
- Fläche1.019 m²
- VerfügbarkeitSofort
- Objekt
- Ausstattung
- Lage und Verkehrsanbindung
- Grundriss
- Exposé herunterladen
- Ihr Kontakt
- Anfrage senden
Objekt
Die Liegenschaft befindet sich 10 km nordwestlich von Darmstadt unweit des Weltkulturerbes „Grube Messel“.
Das Grundstück ist mit zwei Lagergebäuden bebaut, verfügt über ein großes Freilager und zwei großzügige Verladehöfe mit insgesamt drei Zufahrten.
Die beiden in den 1970er Jahren errichteten Lagergebäude wurden in den letzten Jahren wieder auf den Stand der Technik gebracht (Dacheindeckung, Verladetore/Rampenplätze, Hallenboden, Elektrik, Beleuchtung, Heizung, Brandschutz, etc.). Die Büroflächen wurden im Jahr 2023 grundsaniert. Das Objekt verfügt über einen Glasfaseranschluss.
PKW-Stellplätze unmittelbar am Objekt sind vorhanden.
Das Grundstück ist mit zwei Lagergebäuden bebaut, verfügt über ein großes Freilager und zwei großzügige Verladehöfe mit insgesamt drei Zufahrten.
Die beiden in den 1970er Jahren errichteten Lagergebäude wurden in den letzten Jahren wieder auf den Stand der Technik gebracht (Dacheindeckung, Verladetore/Rampenplätze, Hallenboden, Elektrik, Beleuchtung, Heizung, Brandschutz, etc.). Die Büroflächen wurden im Jahr 2023 grundsaniert. Das Objekt verfügt über einen Glasfaseranschluss.
PKW-Stellplätze unmittelbar am Objekt sind vorhanden.
Zertifizierungen
Energieausweis
Für diese Liegenschaft liegt ein Verbrauchsausweis vom 2015-05-28 vom Eigentümer/Vermieter vor. Der wesentliche Energieträger der Liegenschaft ist Erdgas schwer. Der Endenergieverbrauch Strom beträgt 3.00 kWh/(m²*a). Der Endenergieverbrauch Wärme beträgt 19.00 kWh/(m²*a).Verfügbare Fläche
Lage und Verkehrsanbindung
- Flughafen, Frankfurt am Main, Fahrzeit: 22 min
- Bundesautobahn, A 661, Fahrzeit: 13 min
- Bundesautobahn, A 5, Fahrzeit: 18 min
- Bundesautobahn, A 67, Fahrzeit: 20 min
- Bundesstraße, B 486, Fahrzeit: 6 min
- Bundesstraße, B 45, Fahrzeit: 8 min
- Bahnhof, Messel, Gehzeit: 3 min
Ihr Kontakt

Pascal Ambs
Ihr Kontakt














