Büros
ID D3161Büroimmobilie - Dortmund, Innenstadt-West - D3161
Innenstadt-West, 44135, Dortmund, Nordrhein-Westfalen
Provisionspflichtig: bei Anmietung 3 Netto-Monatsmieten zzgl. gesetzlicher Umsatzsteuer.** der Wert kann je nach Vertragslaufzeit variieren.
18 € / m²
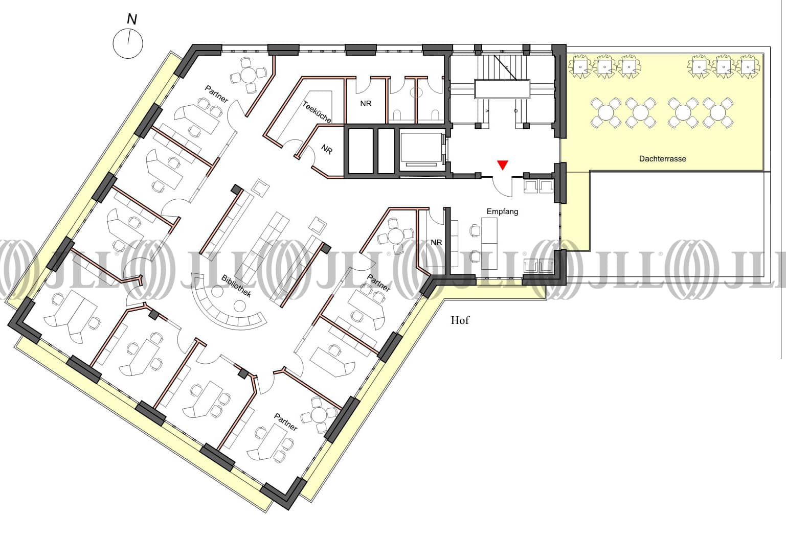
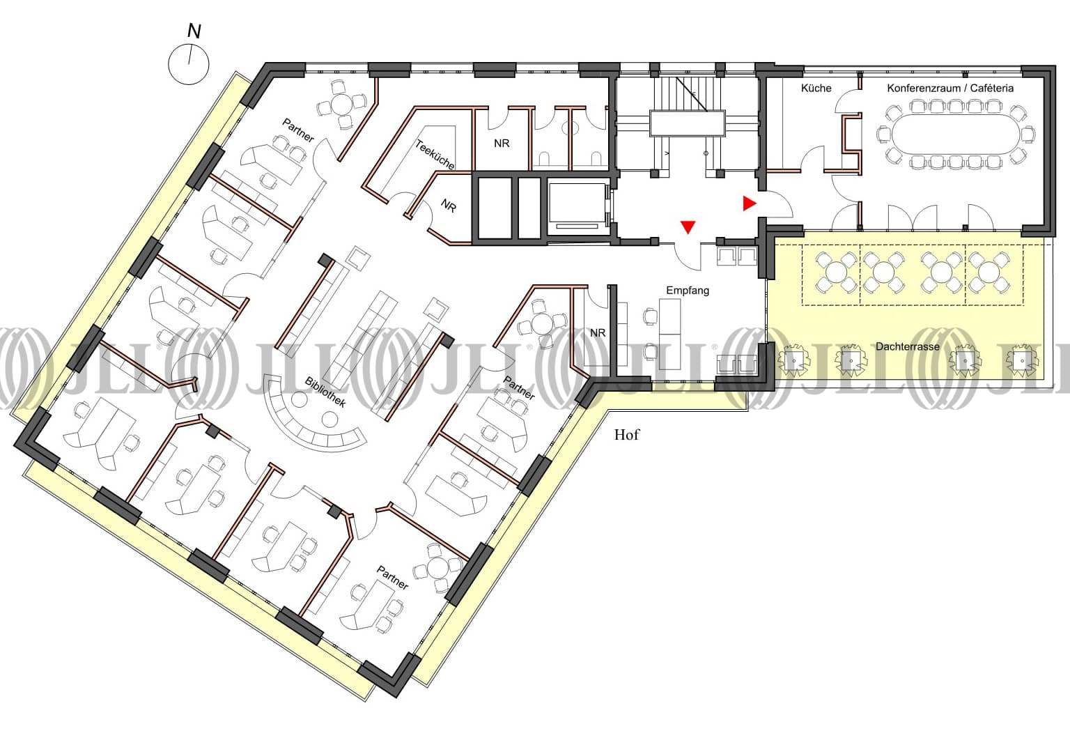
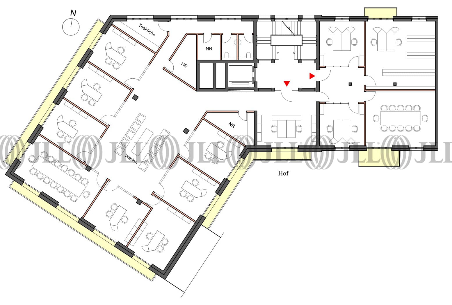
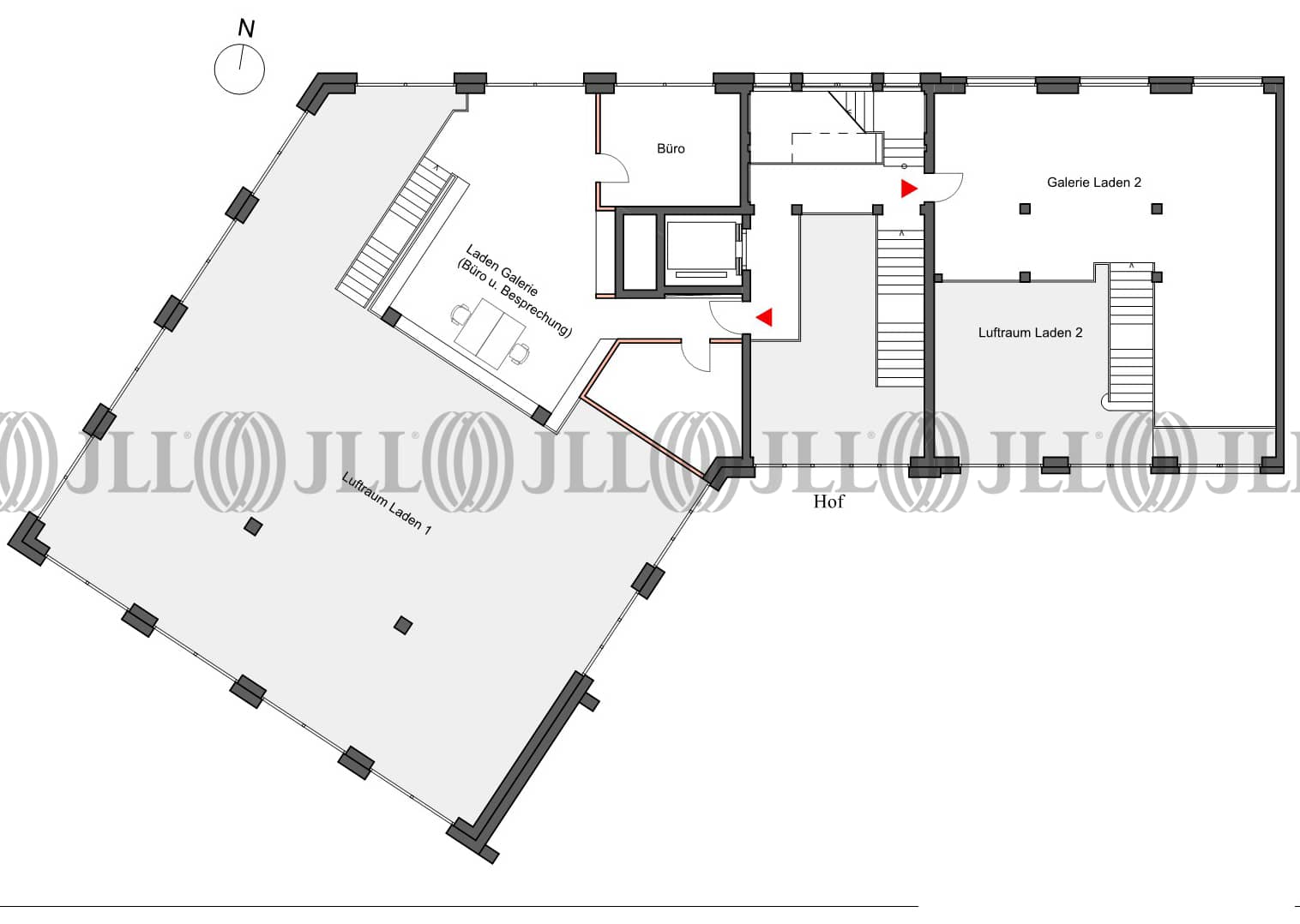
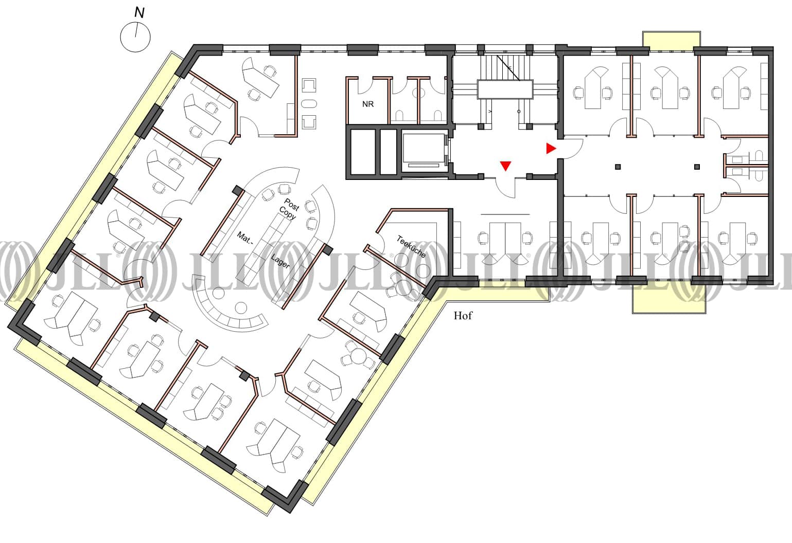
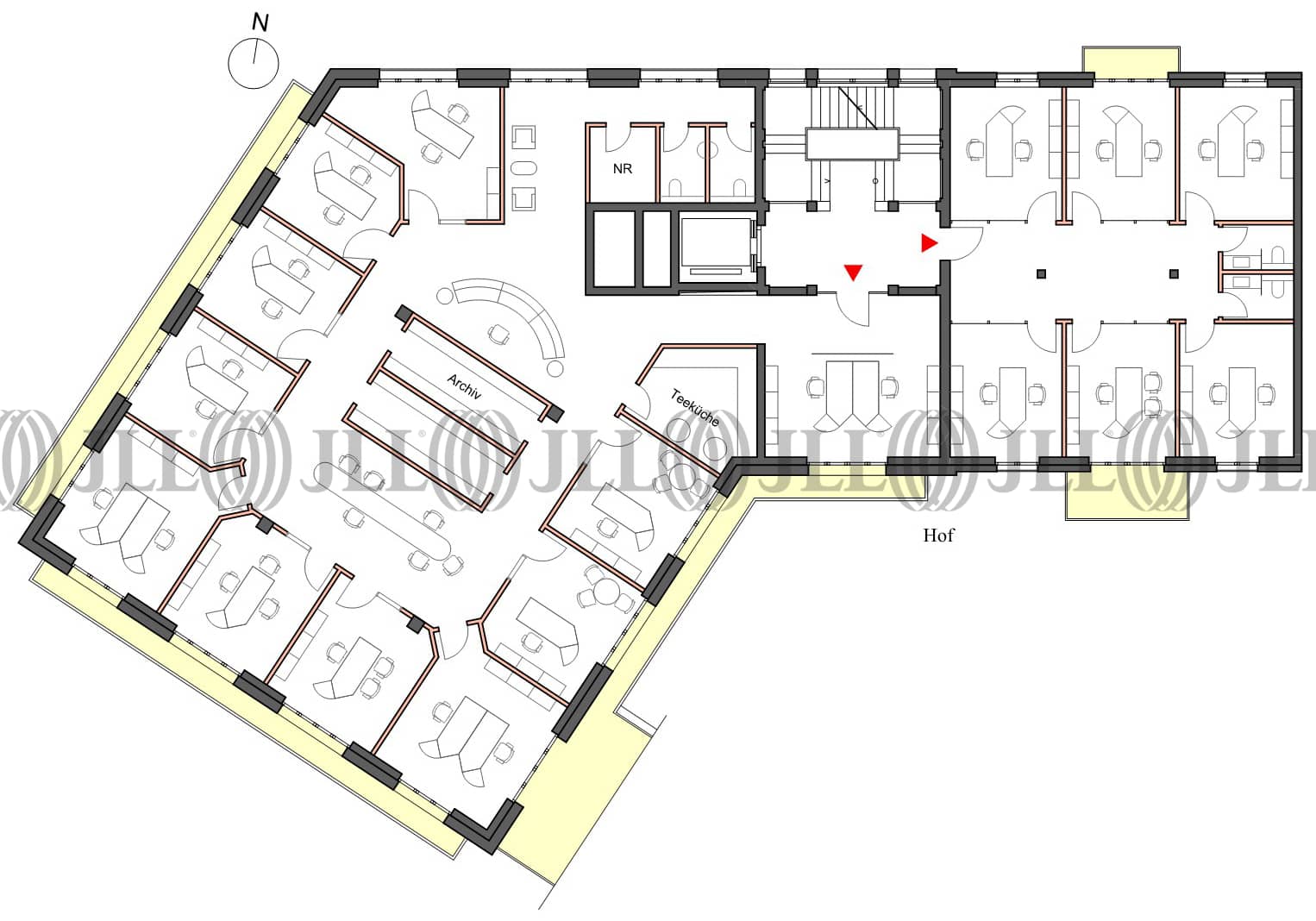
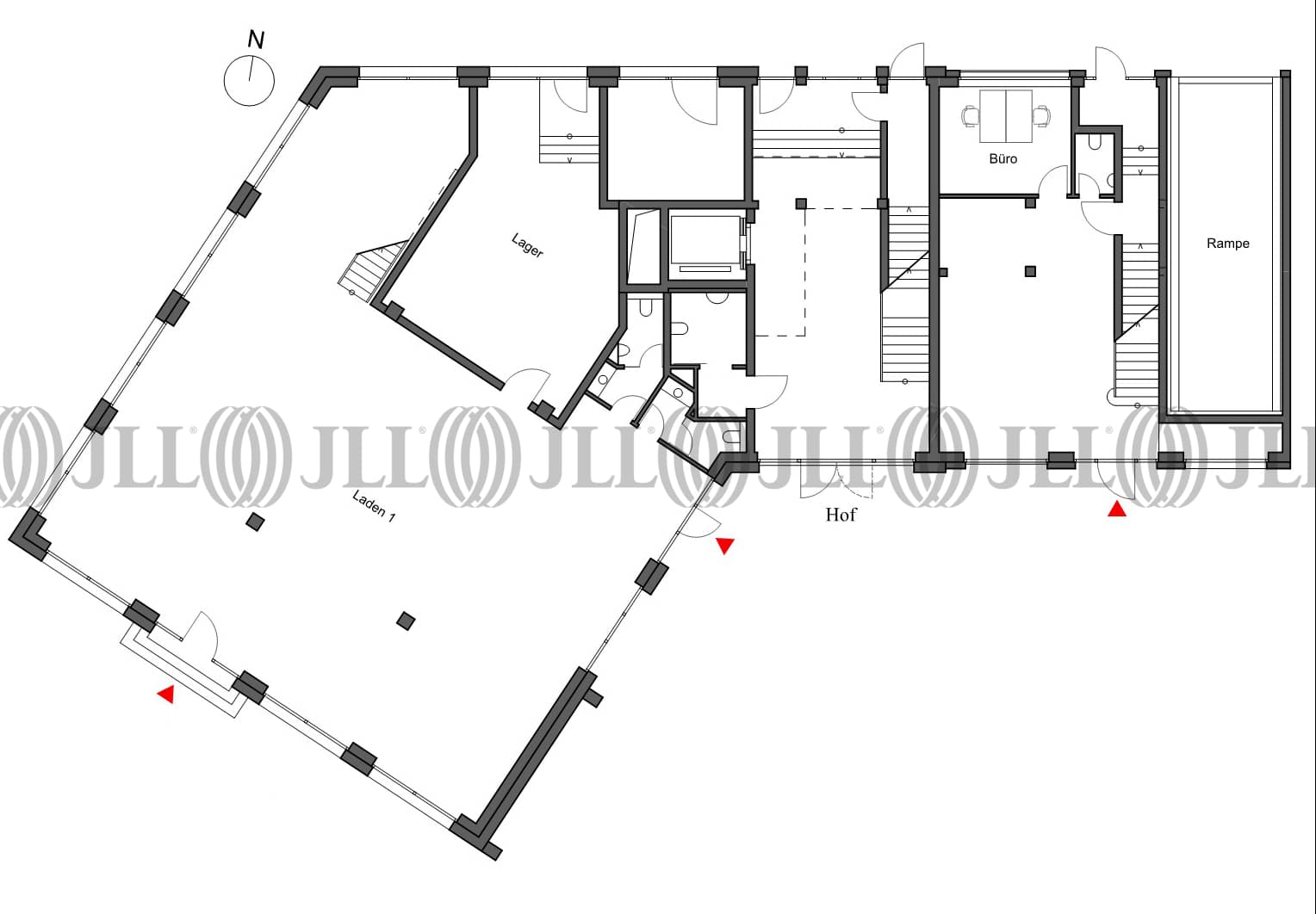
- Fläche330 - 2.013 m²
- Verfügbarkeit01.12.2027
- Ausstattung
- Lage und Verkehrsanbindung
- Grundrisse
- Exposé herunterladen
- Ihr Kontakt
- Anfrage senden
Verfügbare Fläche
Lage und Verkehrsanbindung
Das gewachsene Viertel liegt eingebettet inmitten des Dortmunder Stadtgebietes. Der Teilmarkt bietet alles, was einen sympathischen, urbanen und zentral gelegenen Standort auszeichnet. Durch die Nähe zur A 40 und A 45 sowie eine gute ÖPNV Anbindung ist der Standort sehr gut erreichbar. Der Dortmunder Flughafen ist nur wenige Kilometer entfernt und gewährleistet die internationale Anbindung.
- Hauptbahnhof, Dortmund, Gehzeit: 10 min
- U-Bahn, Brügmannplatz U42, U46, Gehzeit: 4 min
- Bus, Brügmannplatz S30, Gehzeit: 4 min
- Bundesautobahn, A 40, Fahrzeit: 13 min
- Bundesautobahn, A 45, Fahrzeit: 13 min
- Flughafen, Düsseldorf, Fahrzeit: 50 min
Ihr Kontakt

Martin Jahnke
Ihr Kontakt




