
Hallen
ID D2569Hallen - Duisburg, Hüttenheim - D2569
Hüttenheim, 47259, Duisburg, Nordrhein-Westfalen
Provisionspflichtig: bei Anmietung 3 Netto-Monatsmieten zzgl. gesetzlicher Umsatzsteuer.** der Wert kann je nach Vertragslaufzeit variieren.
Kontaktieren Sie uns für den Preis
- Objekt
- Ausstattung
- Lage und Verkehrsanbindung
- Grundrisse
- Exposé herunterladen
- Ihr Kontakt
- Anfrage senden
Objekt
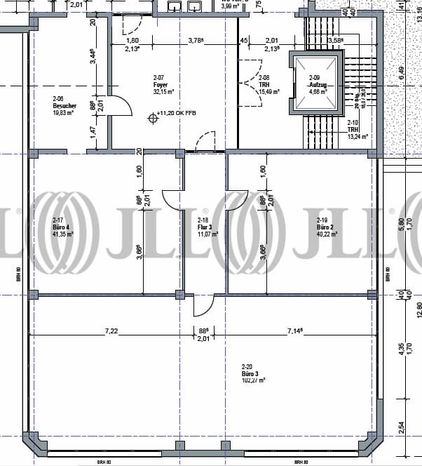
Es handelt sich hier um eine Liegenschaft in Duisburg-Hüttenheim. Die im Jahr 2010 modernisierte Immobilie befindet sich in einem gepflegten Zustand und verfügt über helle und freundliche Büroflächen. Dank des flexiblen Grundrisses sind individuelle Aufteilungsmöglichkeiten vom Gruppen- bis Einzelbüro darstellbar. Die Renovierung und der Ausbau können nach Absprache vom Nutzer durchgeführt werden. Eine Anschlussmöglichkeit für eine Teeküche ist nicht gegeben. Außenstellplätze sind zusätzlich
anmietbar.
anmietbar.
Zertifizierungen
Energieausweis
Für diese Liegenschaft liegt ein Verbrauchsausweis vom 23.09.2015 vom Eigentümer/Vermieter vor. Der wesentliche Energieträger der Liegenschaft ist Erdgas schwer. Der Endenergieverbrauch Strom beträgt 50.00 kWh/(m²*a). Der Endenergieverbrauch Wärme beträgt 66.00 kWh/(m²*a).Verfügbare Fläche
Lage und Verkehrsanbindung
Das Objekt befindet sich im Industeriegebiet Duisburg-Hüttenheim in Duisburg-Süd, in unmittelbarer Nähe zur Landeshauptstadt Düsseldorf. Der internationale Flughafen und die Innenstadt Düsseldorfs sind über die Autobahn A59 oder mit der S-Bahn schnell erreichbar.
- Flughafen, Düsseldorf, Fahrzeit: 19 min
- Bundesautobahn, A 524, Fahrzeit: 10 min
- Bundesautobahn, A 59, Fahrzeit: 10 min
- Bundesstraße, B 288, Fahrzeit: 4 min
- Hauptbahnhof, Duisburg, Fahrzeit: 20 min
- Bus, Am Röhrenwerk 941, 942, Gehzeit: 4 min
Ihr Kontakt

Martin Jahnke
Ihr Kontakt