Hallen
ID D0014Hallen - Gelsenkirchen, Schalke-Nord - D0014
Schalke-Nord, 45881, Gelsenkirchen, Nordrhein-Westfalen
Provisionspflichtig: bei Anmietung 3 Netto-Monatsmieten zzgl. gesetzlicher Umsatzsteuer.** der Wert kann je nach Vertragslaufzeit variieren.
8,50 € / m²
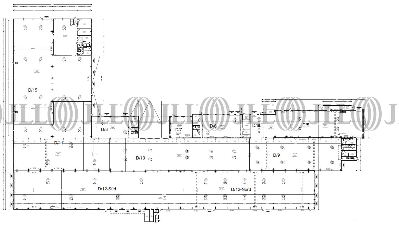
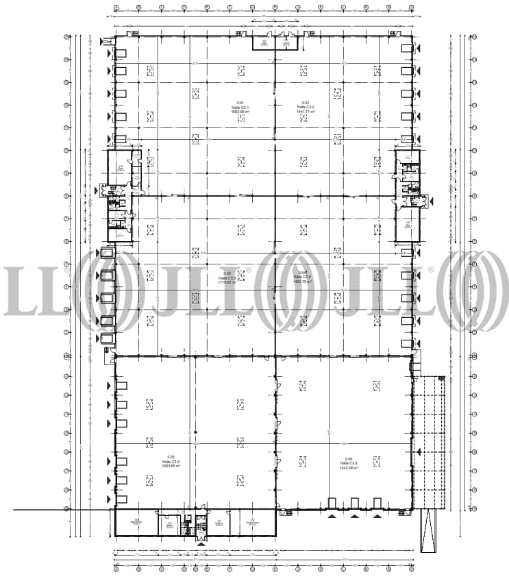
- Fläche4.080 m²
- Verfügbarkeit01.04.2026
- Objekt
- Ausstattung
- Lage und Verkehrsanbindung
- Grundriss
- Exposé herunterladen
- Ihr Kontakt
- Anfrage senden
Objekt
Der Gewerbepark Schalke bietet vielfältige Nutzungsmöglichkeiten für logistische Dienstleistungen, Lager und Produktion aller Art. Bestandshallen und Neubauflächen stehen je nach Verfügbarkeit zur Anmietung mit unterschiedlicher Ausstattung. Die Freiflächen bieten darüber hinaus Platz für Pkw und Lkw-Stellplätze.
Verfügbare Fläche
Lage und Verkehrsanbindung
- Flughafen, Düsseldorf, Fahrzeit: 29 min
- Bundesautobahn, A 42, Fahrzeit: 1 min
- Bundesautobahn, A 2, Fahrzeit: 5 min
- Bundesautobahn, A 40, Fahrzeit: 10 min
- Hafen, Dortmund, Fahrzeit: 32 min
- Hauptbahnhof, Gelsenkirchen, Fahrzeit: 7 min
- Bus, Schalker Meile 380, 381, Gehzeit: 4 min
Ihr Kontakt

Kai Kleibrink
Ihr Kontakt



