Hallen
ID B3203Provisionsfrei
Hallen - Schkeuditz - B3203
04435, Schkeuditz, Sachsen
Kontaktieren Sie uns für den Preis
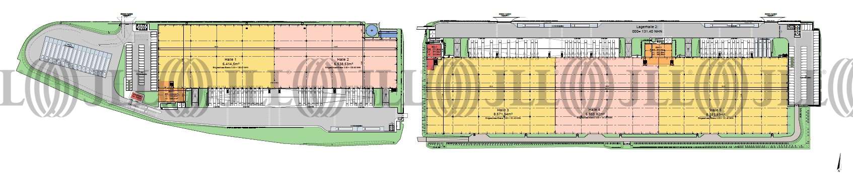
- Fläche6.539 - 21.980 m²
- VerfügbarkeitAuf Anfrage
- Objekt
- Ausstattung
- Lage und Verkehrsanbindung
- Grundrisse
- Exposé herunterladen
- Ihr Kontakt
- Anfrage senden
Zertifizierungen
Energieausweis
DGNB: GoldVerfügbare Fläche
Lage und Verkehrsanbindung
Zweite Reihe am Flughafen Leipzig-Halle Weniger als 5 km entfernt von der A9 Autobahn, die München mit Berlin verbindet.
- Bundesautobahn, A38, Fahrzeit: 20 min
- Bundesautobahn, A9 , Fahrzeit: 5 min
Ihr Kontakt

Nico Schill
Ihr Kontakt





