Hallen
ID B3191Provisionsfrei
Hallen - Schleiz - B3191
07907, Schleiz, Thüringen
Kontaktieren Sie uns für den Preis
- Fläche6.997 - 14.865 m²
- VerfügbarkeitSofort
- Objekt
- Ausstattung
- Lage und Verkehrsanbindung
- Grundrisse
- Exposé herunterladen
- Ihr Kontakt
- Anfrage senden
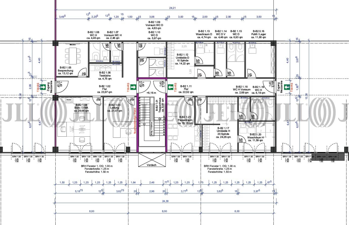
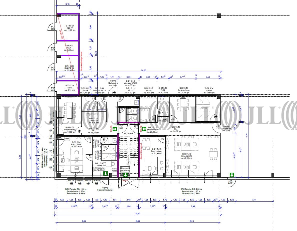
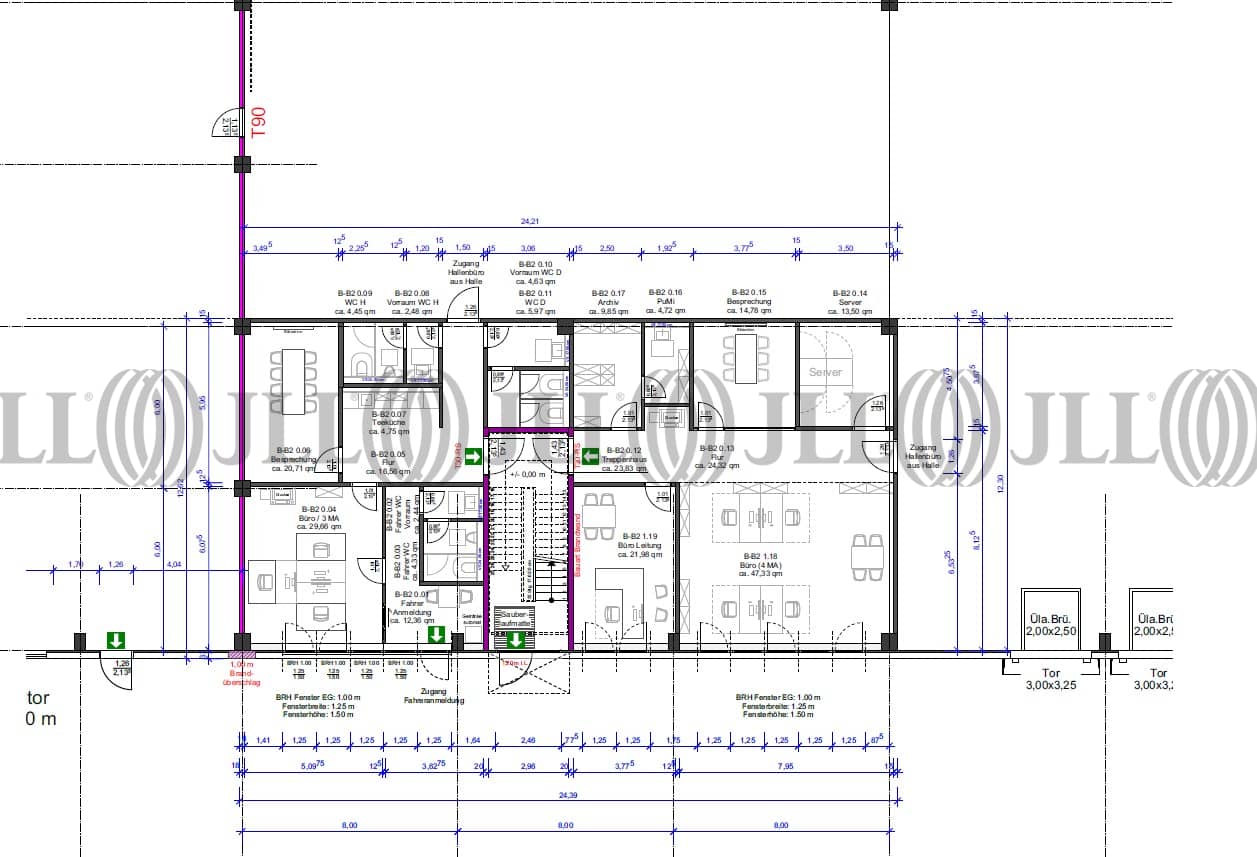
Objekt
Zur Vermietung steht ein spekulativ errichtetes Hallengebäude mit insg. 15.000 m² Hallennutzfläche. Das Objekt teilt sich in 2 Hallenabschnitte und ist ab sofort mietbar.
Die Halleneinheiten sind 7.900 m² und 7.000 m² groß. Beide Hallen haben jeweils mehrere Rampen und ein ebenerdiges Tor. Die Hallen sind fossilfrei beheizbar, und haben eine Nutzhöhe von 10,70 m (UKB). Die Hallen haben jeweils einen Einbau mit Büro-/Sozialflächen, sowie ein Zwischengeschoss.
Die Halleneinheiten sind 7.900 m² und 7.000 m² groß. Beide Hallen haben jeweils mehrere Rampen und ein ebenerdiges Tor. Die Hallen sind fossilfrei beheizbar, und haben eine Nutzhöhe von 10,70 m (UKB). Die Hallen haben jeweils einen Einbau mit Büro-/Sozialflächen, sowie ein Zwischengeschoss.
Verfügbare Fläche
Lage und Verkehrsanbindung
Der Neubau liegt in einem Gewerbegebiet, welches nur 1 km von der Autobahnanbindung entfernt ist. Die Zufahrt ist ortsdurchfahrtsfrei. Eine Bushaltestelle ist fußläufig erreichbar.
- Bundesautobahn, A 9, Entfernung: 1 km
- Bundesstraße, B 282, Entfernung: 1 km
- Bus, Gewerbegebiet, Gehzeit: 3 min
Ihr Kontakt

Daniel Sehnert
Ihr Kontakt

