Hallen
ID B3149Provisionsfrei
Hallen - Halle (Saale) - B3149
06132, Halle (Saale), Sachsen-Anhalt
Kontaktieren Sie uns für den Preis
- Fläche1.300 - 7.400 m²
- VerfügbarkeitSofort
- Ausstattung
- Lage und Verkehrsanbindung
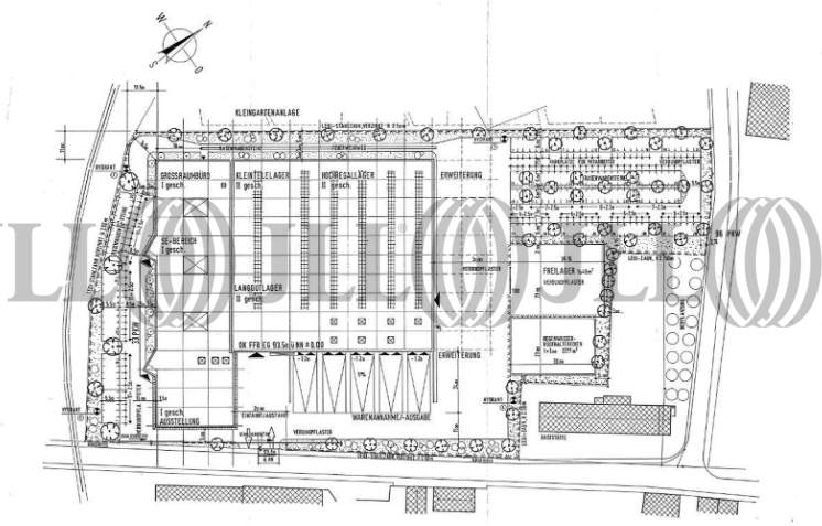
- Grundrisse
- Exposé herunterladen
- Ihr Kontakt
- Anfrage senden
Verfügbare Fläche
Lage und Verkehrsanbindung
- Flughafen, Leipzig/Halle, Fahrzeit: 22 min
- Hauptbahnhof, Halle (Saale), Fahrzeit: 11 min
- Bundesstraße, B91, Fahrzeit: 1 min
- Bundesstraße, B6, Fahrzeit: 7 min
- Bus, Halle-Ammendorf, Linie SEV, Gehzeit: 6 min
Ihr Kontakt

Nico Schill
Ihr Kontakt
























