Hallen
ID B2957Provisionsfrei
Hallen - Ludwigsfelde - B2957
14974, Ludwigsfelde, Brandenburg
Kontaktieren Sie uns für den Preis
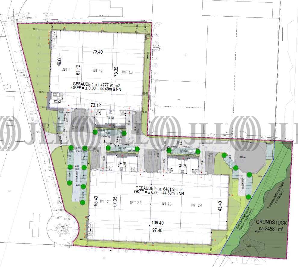
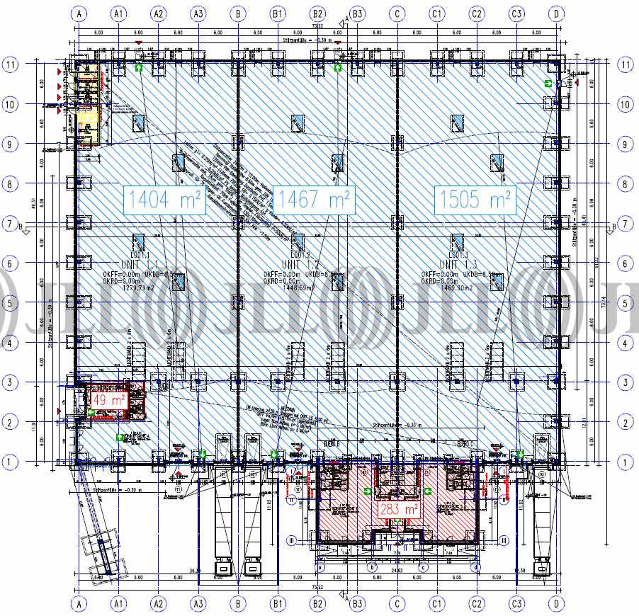
- Fläche1.323 - 6.027 m²
- VerfügbarkeitSofort
- Objekt
- Ausstattung
- Lage und Verkehrsanbindung
- Grundrisse
- Exposé herunterladen
- Ihr Kontakt
- Anfrage senden
Objekt
Der Businesspark legt großen Wert auf Funktionalität und Effizienz. Die Hallen sind auf maximal 7 Units aufgeteilt und so gestaltet, dass sie eine reibungslose Warenbewegung und Logistikabläufe unterstützen. Die großzügige Raumgestaltung ermöglicht eine effiziente Nutzung des verfügbaren Platzes und fördert eine optimale Arbeitsumgebung.
Die Gebäude sind nach ökologischen Gesichtspunkten gestaltet, mit energieeffizienten Systemen und umweltfreundlichen Technologien ausgestattet.
- Fotovoltaikanlagen
- Regenwassernutzung
- CO2-Neutralität wird angestrebt
- Gasfrei
- viel Tageslicht durch Lichtbänder im Dach und an der Fassade
- Überdachte Fahrradstellplätze mit Ladestationen für E-Bikes
- Smart Meter
- 2 BBQ-Bereiche
- Grünanlagenkonzept
Die Gebäude sind nach ökologischen Gesichtspunkten gestaltet, mit energieeffizienten Systemen und umweltfreundlichen Technologien ausgestattet.
- Fotovoltaikanlagen
- Regenwassernutzung
- CO2-Neutralität wird angestrebt
- Gasfrei
- viel Tageslicht durch Lichtbänder im Dach und an der Fassade
- Überdachte Fahrradstellplätze mit Ladestationen für E-Bikes
- Smart Meter
- 2 BBQ-Bereiche
- Grünanlagenkonzept
Zertifizierungen
Energieausweis
DGNB: GoldVerfügbare Fläche
Lage und Verkehrsanbindung
Ludwigsfelde selbst ist eine aufstrebende Stadt mit einer attraktiven Wirtschaftsstruktur und einer Vielzahl von Unternehmen aus verschiedenen Branchen. Die Region ist bekannt für ihre industrielle Entwicklung und ihre Anziehungskraft auf innovative Unternehmen wie Mercedes, DHL, Picnic, Veganz, LIDL, Coca-Cola und viele mehr. Das Projekt bietet Ihnen somit nicht nur eine erstklassige Lage, sondern auch die Möglichkeit, Teil eines dynamischen und wachsenden Wirtschaftsstandorts zu sein.
- Flughafen, Berlin Brandenburg, Fahrzeit: 25 min
- Bundesautobahn, A 10, Fahrzeit: 2 min
Ihr Kontakt

Benedict Grote
Ihr Kontakt







