Hallen
ID B2955Hallen - Calvörde - B2955
39359, Calvörde, Sachsen-Anhalt
Provisionspflichtig: bei Anmietung 3 Netto-Monatsmieten zzgl. gesetzlicher Umsatzsteuer.** der Wert kann je nach Vertragslaufzeit variieren.
Kontaktieren Sie uns für den Preis
- Fläche356 - 13.342 m²
- VerfügbarkeitSofort
- Objekt
- Ausstattung
- Lage und Verkehrsanbindung
- Grundrisse
- Exposé herunterladen
- Ihr Kontakt
- Anfrage senden
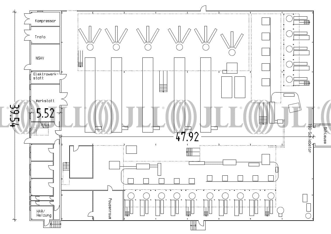
Objekt
Das Betriebsgrundstück ist rd. 6,6 ha groß und bebaut mit mehreren Produktions-/Lagerhallen. Die Gebäude sind in den Jahren 2000-2004 errichtet worden und bis zuletzt für die kunststoffverarbeitende Industrie genutzt worden (Herstellung von Gefrierbeuteln, Backpapier, Müllbeutel und -säcke).
Das Gelände ist leergezogen und kann neu vermietet werden. Die Hallen sollen möglichst an einen Nutzer vergeben werden, eine Aufteilung auf mehrere Parteien ist mit der vorhandenen Gebäudestruktur aber ohne weiteres möglich, da die vorhandenen Hallen als separate stehende Hallen anzusehen sind. Es gibt pro Halle separate Heizkreise, separate Strom- und Wasseranschlüsse.
Vorhanden sind aktuell 3 Hallen-Produktionsgebäude (Hallen 1-3). An Halle 3 wurde in der jüngeren Vergangenheit eine Lagerhalle angebaut (sog. Halle 5).
Geplant war eine Halle 4 auf das Areal zu bauen, auch als separat stehende Halle. Die Grundstücksfläche gibt das her. Bei Bedarf kann der Eigentümer den Erweiterungsbau angehen.
Die Nutzfläche der 3 vorhandenen Hallen liegt bei rd. 8.400 m² Hallenfläche. Durch eine Halle 4 könnten weitere 4.900 m² Hallenfläche hinzukommen.
Die vorhandenen Hallenflächen zeichnen sich durch eine hohe Nutzungsflexibilität und einen guten technischen Ausstattungsstandard aus. Jede Halle hat ebenerdige Zufahrtstore sowie mehrere Verladetore auf Rampenniveau. Die Hallenhöhe variiert, reicht aber von mind. 6 m bis zu 11 m. Auf dem Gelände gibt es auch mehrere Trafostationen. In Summe sind bis zu 2.500 kVA anliegend. Möglich ist auch die Übernahme vorhandener Siloanlagen (über 20 Stück á 90 m³ Fassungsvolumen).
Die Hallen sind nicht gesprinklert, eine Brandmeldeanlage ist installiert. Ebenso vorhanden und bei Bedarf zu übernehmen ist ein Druckluftkompressor und die entsprechende Ringleitung in allen Hallen.
Das Gelände ist leergezogen und kann neu vermietet werden. Die Hallen sollen möglichst an einen Nutzer vergeben werden, eine Aufteilung auf mehrere Parteien ist mit der vorhandenen Gebäudestruktur aber ohne weiteres möglich, da die vorhandenen Hallen als separate stehende Hallen anzusehen sind. Es gibt pro Halle separate Heizkreise, separate Strom- und Wasseranschlüsse.
Vorhanden sind aktuell 3 Hallen-Produktionsgebäude (Hallen 1-3). An Halle 3 wurde in der jüngeren Vergangenheit eine Lagerhalle angebaut (sog. Halle 5).
Geplant war eine Halle 4 auf das Areal zu bauen, auch als separat stehende Halle. Die Grundstücksfläche gibt das her. Bei Bedarf kann der Eigentümer den Erweiterungsbau angehen.
Die Nutzfläche der 3 vorhandenen Hallen liegt bei rd. 8.400 m² Hallenfläche. Durch eine Halle 4 könnten weitere 4.900 m² Hallenfläche hinzukommen.
Die vorhandenen Hallenflächen zeichnen sich durch eine hohe Nutzungsflexibilität und einen guten technischen Ausstattungsstandard aus. Jede Halle hat ebenerdige Zufahrtstore sowie mehrere Verladetore auf Rampenniveau. Die Hallenhöhe variiert, reicht aber von mind. 6 m bis zu 11 m. Auf dem Gelände gibt es auch mehrere Trafostationen. In Summe sind bis zu 2.500 kVA anliegend. Möglich ist auch die Übernahme vorhandener Siloanlagen (über 20 Stück á 90 m³ Fassungsvolumen).
Die Hallen sind nicht gesprinklert, eine Brandmeldeanlage ist installiert. Ebenso vorhanden und bei Bedarf zu übernehmen ist ein Druckluftkompressor und die entsprechende Ringleitung in allen Hallen.
Verfügbare Fläche
Lage und Verkehrsanbindung
Das Vermietungsobjekt liegt in einem GE-/GI-Gebiet in einer Region nordwestlich der Landeshauptstadt Magdeburg. Die Entfernung nach Magdeburg beträgt rd. 40 km, genauso weit entfernt liegt auch Wolfsburg. Beide Großstädte und auch die A 2 als nächstgelegene Autobahn (25 min entfernt) können über mehrere Bundesstraßen erreicht werden. In Haldensleben (rd. 17 km südlich) gibt es einen Hafen mit Anschluss an das Binnenwasserstraßennetz.
- Bundesautobahn, A 2, Entfernung: 25 km
- Bundesautobahn, A 14, Entfernung: 29 km
- Bundesstraße, B 71, Entfernung: 16 km
- Bundesstraße, B 245, Entfernung: 16 km
- Bundesstraße, B 188, Entfernung: 18 km
- Bundesstraße, B 1, Entfernung: 21 km
Ihr Kontakt

Daniel Sehnert
Ihr Kontakt











