Hallen
ID B2921Hallen - Krauthausen - B2921
99819, Krauthausen, Thüringen
Provisionspflichtig: bei Anmietung 3 Netto-Monatsmieten zzgl. gesetzlicher Umsatzsteuer.** der Wert kann je nach Vertragslaufzeit variieren.
Kontaktieren Sie uns für den Preis
- Fläche1.000 m²
- VerfügbarkeitSofort
- Objekt
- Ausstattung
- Lage und Verkehrsanbindung
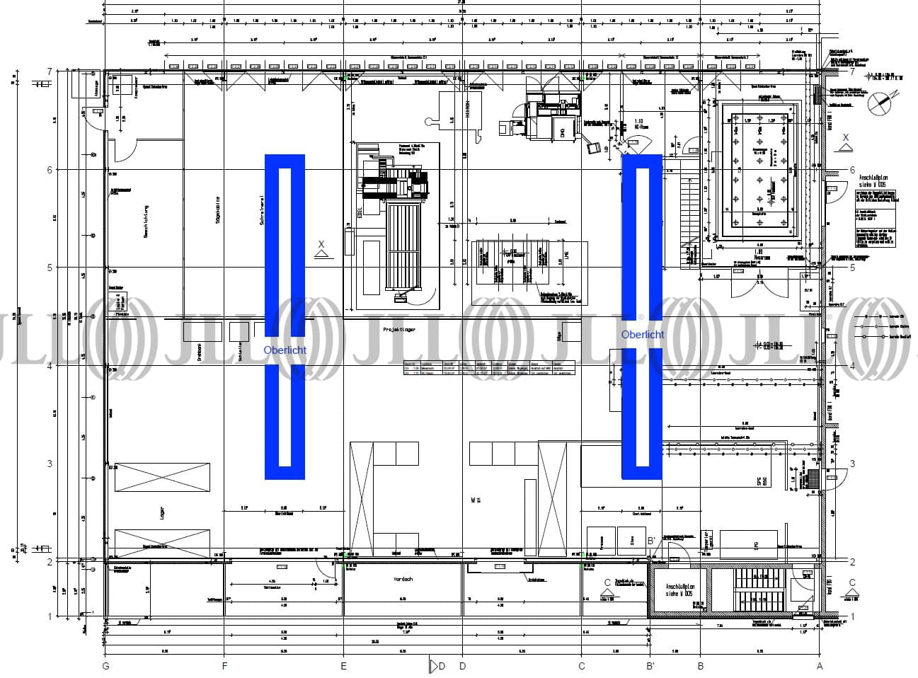
- Grundriss
- Exposé herunterladen
- Ihr Kontakt
- Anfrage senden
Objekt
Bei dem Objekt handelt es sich um eine moderne Produktionshalle mit sehr schönem, repräsentativem Bürogebäude mit Klimaanlage und Außenjalousien.
Die Halle ist eine freitragende Produktionshalle. Die Halle verfügt über zwei große Sektionaltore zur befestigten Freifläche vor der Halle. Der Hallenboden ist beschichtet und hochbelastbar. In der Halle war über die gesamte Lange ein 6,5t- Brückenkran installiert. Dieser ist zwischenzeitlich ausgebaut worden, die Kranbahnschienen sind aber noch vorhanden. Zur weiteren technischen Ausstattung gehören eine Druckluftringleitung sowie ein eigener Trafo.
Das Gebäude ist an einen Hang gebaut, sodass auch das UG zu ebener Erde begehbar ist. Dort befinden sich die Umkleiden und Duschen für Damen/ Herren. Der Pausenraum liegt ebenfalls im UG, hat sogar eine schöne Terrasse. Die Büros befinden sich im 1.OG, sind sehr hell und mit großen Glasflächen versehen. Eine Alarmanlage mit getrennten Stromkreisen für den Büro- und Produktionstrakt sorgt für Sicherheit.
Die Eingänge verfügen über Kameras zur Überwachung.
Die Liegenschaft wurde nach den Regeln der Feng Shui Lehre geplant und gebaut. Das Gebäude verfügt über eine sehr sparsame Brennwerttechnik zum Heizen. Brauchwasser über eine eigene Zisterne (5.000 l). Eine Schranke zum Betriebshof ist vorhanden.
Die Halle ist eine freitragende Produktionshalle. Die Halle verfügt über zwei große Sektionaltore zur befestigten Freifläche vor der Halle. Der Hallenboden ist beschichtet und hochbelastbar. In der Halle war über die gesamte Lange ein 6,5t- Brückenkran installiert. Dieser ist zwischenzeitlich ausgebaut worden, die Kranbahnschienen sind aber noch vorhanden. Zur weiteren technischen Ausstattung gehören eine Druckluftringleitung sowie ein eigener Trafo.
Das Gebäude ist an einen Hang gebaut, sodass auch das UG zu ebener Erde begehbar ist. Dort befinden sich die Umkleiden und Duschen für Damen/ Herren. Der Pausenraum liegt ebenfalls im UG, hat sogar eine schöne Terrasse. Die Büros befinden sich im 1.OG, sind sehr hell und mit großen Glasflächen versehen. Eine Alarmanlage mit getrennten Stromkreisen für den Büro- und Produktionstrakt sorgt für Sicherheit.
Die Eingänge verfügen über Kameras zur Überwachung.
Die Liegenschaft wurde nach den Regeln der Feng Shui Lehre geplant und gebaut. Das Gebäude verfügt über eine sehr sparsame Brennwerttechnik zum Heizen. Brauchwasser über eine eigene Zisterne (5.000 l). Eine Schranke zum Betriebshof ist vorhanden.
Verfügbare Fläche
Lage und Verkehrsanbindung
- Flughafen, Erfurt, Fahrzeit: 35 min
- Bundesautobahn, A 4, Fahrzeit: 4 min
- Bundesstraße, B 7, Fahrzeit: 4 min
- Bundesstraße, B 19, Fahrzeit: 6 min
Ihr Kontakt

Daniel Sehnert
Ihr Kontakt










