Hallen
ID B2724Premium JLL
Hallen - Magdeburg, Sudenburg - B2724
Sudenburg, 39112, Magdeburg, Sachsen-Anhalt
Provisionspflichtig: bei Anmietung 3 Netto-Monatsmieten zzgl. gesetzlicher Umsatzsteuer.** der Wert kann je nach Vertragslaufzeit variieren.
Kontaktieren Sie uns für den Preis
- Fläche72 - 4.947 m²
- VerfügbarkeitSofort
- Objekt
- Ausstattung
- Lage und Verkehrsanbindung
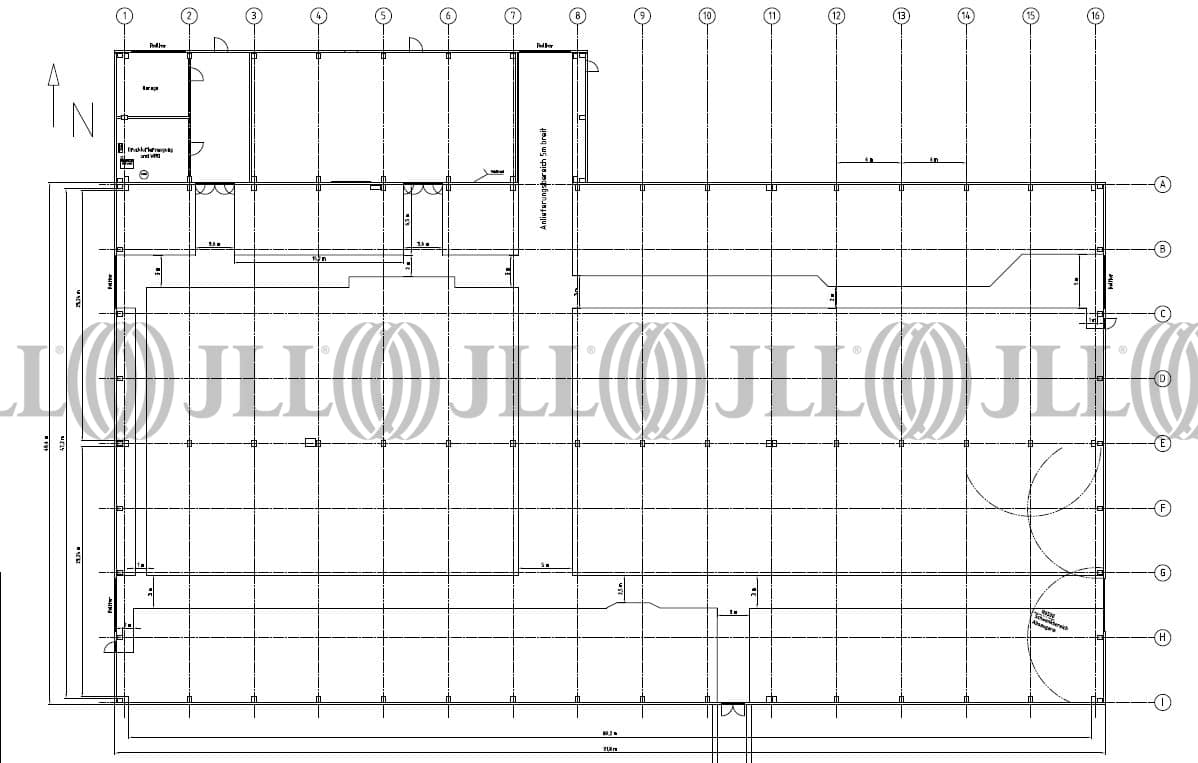
- Grundriss
- Exposé herunterladen
- Ihr Kontakt
- Anfrage senden
Objekt
Das zur Disposition stehende Gelände besteht aus einer rd. 5.000 m² großen Produktions-/Lagerhalle und einem mehrgeschossigen Bürogebäude.
Die Produktionshalle stammt aus den 1980er Jahren und ist als 2-schiffige Halle gebaut (jedes Schiff rd. 24 breit). Die Halle ist 8-9 m hoch und beheizbar. Es gibt eine Druckluftzentrale als auch einen Trafo für das Objekt. Die Beleuchtung erfolgt mittels LED. Beide Hallenschiffe sind bekrant, ein Schiff mit 2 x 8t-Kränen, das andere mit 2 x 12,5t-Kränen.
Das Bürogebäude ist mit der Halle baulich verbunden. Im EG-Bereich befinden sich die Umkleiden (inkl. Duschen) für die Belegschaft. Hinzu kommt ein Pausenraum und mehrere Büroräume. Die Obergeschosse (1.OG + 2.OG ) sind nach 2010 zu modernen, lichtdurchfluteten und klimatisierten Büroetagen ausgebaut worden. Im 1. + 2.OG sind ca. 450 m² reine Büroflächen zzgl. üblicher Nebenflächen vorhanden. Das Gebäude hat 2 Treppenhäuser. Im KG befinden sich Archiv- und Technikräume. Das 2.OG des Bürohauses ist inzwischen separat vermietet (langfristiger Mietvertrag).
Direkt am Gebäude befinden sich ein Parkplatz mit bis zu 84 Stellplätzen.
Das Areal ist eingezäunt.
Rund 200 m entfernt gibt es eine Kantine, die die Mitarbeiter in Anspruch nehmen könnten.
Das Gelände ist sofort nutzbar.
Die Produktionshalle stammt aus den 1980er Jahren und ist als 2-schiffige Halle gebaut (jedes Schiff rd. 24 breit). Die Halle ist 8-9 m hoch und beheizbar. Es gibt eine Druckluftzentrale als auch einen Trafo für das Objekt. Die Beleuchtung erfolgt mittels LED. Beide Hallenschiffe sind bekrant, ein Schiff mit 2 x 8t-Kränen, das andere mit 2 x 12,5t-Kränen.
Das Bürogebäude ist mit der Halle baulich verbunden. Im EG-Bereich befinden sich die Umkleiden (inkl. Duschen) für die Belegschaft. Hinzu kommt ein Pausenraum und mehrere Büroräume. Die Obergeschosse (1.OG + 2.OG ) sind nach 2010 zu modernen, lichtdurchfluteten und klimatisierten Büroetagen ausgebaut worden. Im 1. + 2.OG sind ca. 450 m² reine Büroflächen zzgl. üblicher Nebenflächen vorhanden. Das Gebäude hat 2 Treppenhäuser. Im KG befinden sich Archiv- und Technikräume. Das 2.OG des Bürohauses ist inzwischen separat vermietet (langfristiger Mietvertrag).
Direkt am Gebäude befinden sich ein Parkplatz mit bis zu 84 Stellplätzen.
Das Areal ist eingezäunt.
Rund 200 m entfernt gibt es eine Kantine, die die Mitarbeiter in Anspruch nehmen könnten.
Das Gelände ist sofort nutzbar.
Zertifizierungen
Energieausweis
Für diese Liegenschaft liegt ein Verbrauchsausweis vom 2022-02-04 vom Eigentümer/Vermieter vor. Der wesentliche Energieträger der Liegenschaft ist Erdgas leicht. Der Endenergieverbrauch Strom beträgt 52.80 kWh/(m²*a). Der Endenergieverbrauch Wärme beträgt 61.40 kWh/(m²*a).Verfügbare Fläche
Lage und Verkehrsanbindung
Die Anbindung an Bundesstraße (B1 + B71) als auch Autobahn (A2 + A14) ist sehr gut. Das Areal ist hervorragend an den ÖPNV angebunden (Bushaltestelle ist rd. 100 m, Bahnhof rd. 300 m entfernt). Dienstleister des täglichen Bedarfs befinden sich in der Nähe.
- Hafen, Magdeburg, Fahrzeit: 14 min
- Flughafen, Leipzig/Halle, Fahrzeit: 67 min
- Flughafen, Berlin Brandenburg, Fahrzeit: 97 min
- Bundesautobahn, A 14, Fahrzeit: 11 min
- Bundesautobahn, A 2, Fahrzeit: 11 min
- Bundesstraße, B 71, Fahrzeit: 5 min
- Bundesstraße, B 1, Fahrzeit: 9 min
Ihr Kontakt

Daniel Sehnert
Ihr Kontakt













