Hallen
ID B2676Premium JLL
Provisionsfrei
Hallen - Magdeburg, Sudenburg - B2676
Sudenburg, 39112, Magdeburg, Sachsen-Anhalt
Kontaktieren Sie uns für den Preis
- Fläche1.128 - 3.494 m²
- VerfügbarkeitSofort
- Objekt
- Ausstattung
- Lage und Verkehrsanbindung
- Grundriss
- Exposé herunterladen
- Ihr Kontakt
- Anfrage senden
Objekt
Die rd. 3.500 m² große Produktionshalle ist Teil eines größeres Betriebsgeländes. Die Halle entstand 2012 als Anbau an bestehende Gebäude. Die Halle kann separat gemietet werden.
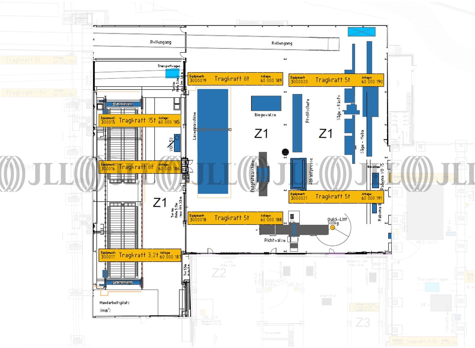
Die Halle teilt sich in 3 Hallenschiffe auf. Die Andienung erfolgt über 2 ebenerdige Zufahrtstore (je 5,15 m hoch, 6 m breit). Alle 3 Hallenschiffe haben mehrere Brückenkräne. Insg. sind 7 Stück vorhanden (Traglasten 3,2t bis 15t). Die Halle hat eine Nutzhöhe von knapp 10 m.
Der Nutzer kann sich die technische Ausstattung des gesamten Areals Mittelspannungsanschluss, Druckluftringleitung) zu Nutze machen.
Direkt neben der Halle sind befestigte Freiflächen (unter Kran) zur Miete verfügbar.
Bei Mehrbedarf an Hallenflächen kann man auf dem Areal wachsen, und direkt angrenzende Hallenteile (nur durch Brandwand getrennt) hinzumieten.
Zum Areal gehören große Parkplatzflächen für Mitarbeiter. Auf dem Gelände befindet sich auch eine Kantine, die von Mietern mitgenutzt werden kann.
Durch Einzäunung, Videoüberwachung und 24/7-Wachdienst ist die Fläche gut geschützt.
Die Mietfläche steht ab sofort zur Vermietung zur Verfügung!
Die Halle teilt sich in 3 Hallenschiffe auf. Die Andienung erfolgt über 2 ebenerdige Zufahrtstore (je 5,15 m hoch, 6 m breit). Alle 3 Hallenschiffe haben mehrere Brückenkräne. Insg. sind 7 Stück vorhanden (Traglasten 3,2t bis 15t). Die Halle hat eine Nutzhöhe von knapp 10 m.
Der Nutzer kann sich die technische Ausstattung des gesamten Areals Mittelspannungsanschluss, Druckluftringleitung) zu Nutze machen.
Direkt neben der Halle sind befestigte Freiflächen (unter Kran) zur Miete verfügbar.
Bei Mehrbedarf an Hallenflächen kann man auf dem Areal wachsen, und direkt angrenzende Hallenteile (nur durch Brandwand getrennt) hinzumieten.
Zum Areal gehören große Parkplatzflächen für Mitarbeiter. Auf dem Gelände befindet sich auch eine Kantine, die von Mietern mitgenutzt werden kann.
Durch Einzäunung, Videoüberwachung und 24/7-Wachdienst ist die Fläche gut geschützt.
Die Mietfläche steht ab sofort zur Vermietung zur Verfügung!
Verfügbare Fläche
Lage und Verkehrsanbindung
Die Immobilie liegt im Stadtgebiet. Die Anbindung an überregionale Verkehrsträger ist sehr gut, denn die Autobahnen um Magdeburg (A14 & A 2) sind zügig erreichbar, und damit auch der Hafen Magdeburg sowie der Flughafen Leipzig-Halle. Die ÖPNV-Anbindung ist noch besser: eine Bushaltestelle liegt direkt am Werkstor und eine S-Bahn-Haltestelle ist keine 5 min Fußweg entfernt. Dienstleister des täglichen Bedarfs befinden sich in der Nähe.
- Hafen, Magdeburg, Fahrzeit: 14 min
- Flughafen, Leipzig/Halle, Fahrzeit: 67 min
- Flughafen, Berlin Brandenburg, Fahrzeit: 97 min
- Bundesautobahn, A 14, Fahrzeit: 11 min
- Bundesautobahn, A 2, Fahrzeit: 11 min
- Bundesstraße, B 71, Fahrzeit: 5 min
- Bundesstraße, B 1, Fahrzeit: 9 min
Ihr Kontakt

Daniel Sehnert
Ihr Kontakt







