Hallen
ID B2542Provisionsfrei
Hallen - Halle (Saale), Ost - B2542
Ost, 06116, Halle (Saale), Sachsen-Anhalt
4,50 € / m²
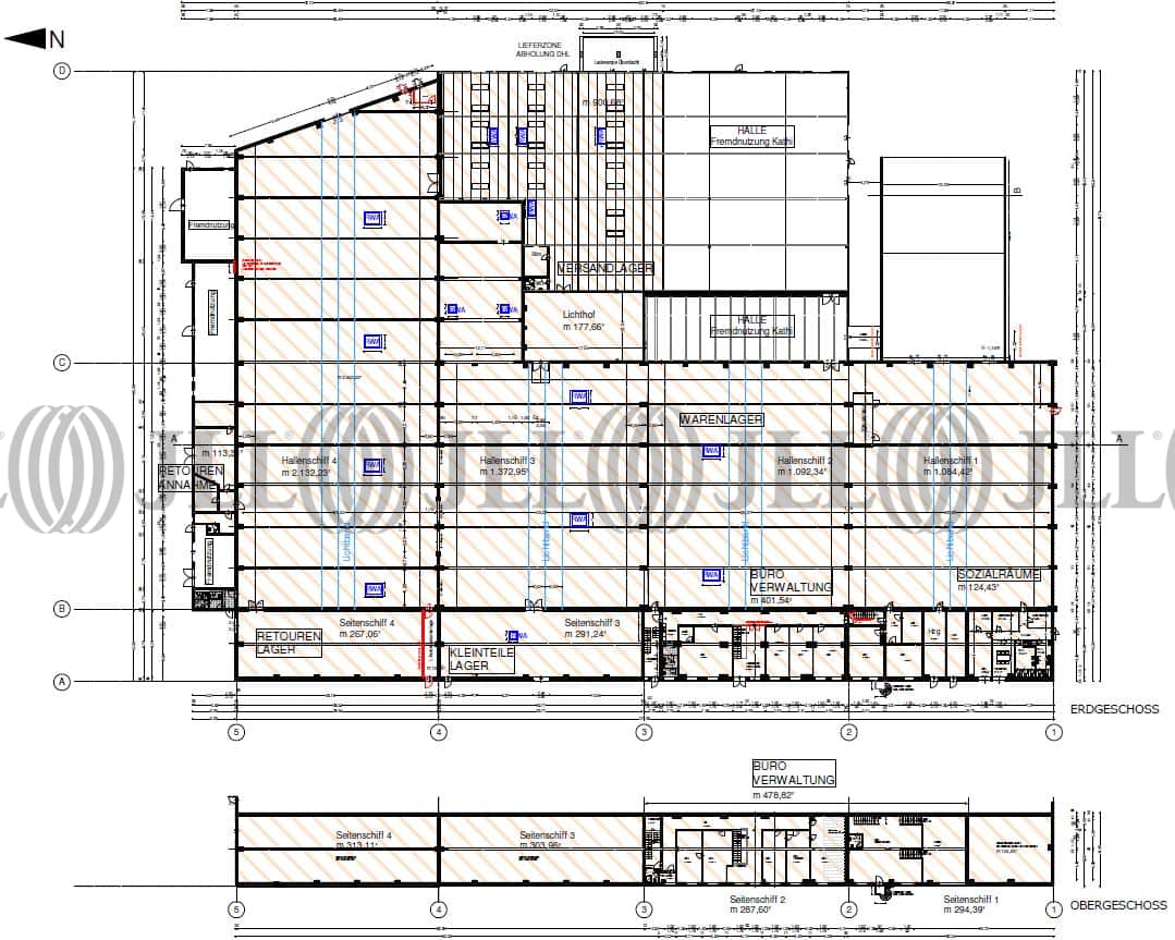
- Fläche12.000 m²
- VerfügbarkeitAuf Anfrage
- Objekt
- Ausstattung
- Lage und Verkehrsanbindung
- Grundrisse
- Exposé herunterladen
- Ihr Kontakt
- Anfrage senden
Objekt
Am östlichen Stadtrand von Halle/Saale stehen kurzfristig eine Hallenfläche über 3.500 m² ohne Regal für eine Anmietung zur Verfügung.
Verfügbare Fläche
Lage und Verkehrsanbindung
- Flughafen, Leipzig/Halle, Fahrzeit: 16 min
- Bundesautobahn, A 14, Fahrzeit: 3 min
- Bundesautobahn, A 9, Fahrzeit: 11 min
- Bundesstraße, B 100, Fahrzeit: 2 min
Ihr Kontakt

Nico Schill
Ihr Kontakt






