Hallen
ID B1845Provisionsfrei
Hallen - Berlin, Spandau - B1845
Spandau, 13581, Berlin, Berlin
Kontaktieren Sie uns für den Preis
- Fläche104 - 1.427 m²
- VerfügbarkeitNovember 2026
- Objekt
- Ausstattung
- Lage und Verkehrsanbindung
- Grundrisse
- Exposé herunterladen
- Ihr Kontakt
- Anfrage senden
Objekt
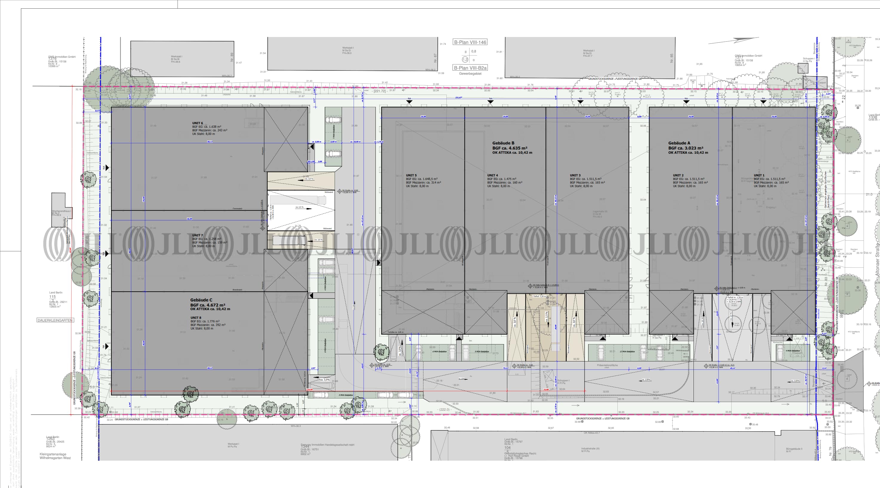
Auf dem ca. 21.400 m² großen Grundstück befindet sich ein Light Industrial Park nach modernsten Industriestandards.
Es kann immer nur eine komplette Unit, bestehend aus Service-, Büro- und Lager-/Produktionsfläche, gemietet werden.
Es kann immer nur eine komplette Unit, bestehend aus Service-, Büro- und Lager-/Produktionsfläche, gemietet werden.
Zertifizierungen
Energieausweis
DGNB: GoldVerfügbare Fläche
Lage und Verkehrsanbindung
Das Objekt befindet sich im Berliner Bezirk Spandau. Fußläufig ist der Bahnhof Spandau in 15 min zuerreichen. Dienstleister des täglichen Bedarfs befinden sich in der Nähe.
- Flughafen, Berlin Brandenburg, Fahrzeit: 50 min
- Bundesautobahn, A 100, Fahrzeit: 12 min
- Bundesautobahn, A 10, Fahrzeit: 18 min
- Bundesautobahn, A 115, Fahrzeit: 20 min
- Bundesstraße, B 5, Fahrzeit: 5 min
- Bundesstraße, B 2, Fahrzeit: 9 min
- Bahnhof, Spandau, diverse Linien, Gehzeit: 15 min
Ihr Kontakt

Benedict Grote
Ihr Kontakt








