Hallen
ID B1761Hallen - Trebbin - B1761
14959, Trebbin, Brandenburg
Provisionspflichtig: bei Anmietung 3 Netto-Monatsmieten zzgl. gesetzlicher Umsatzsteuer.** der Wert kann je nach Vertragslaufzeit variieren.
4 € / m²
- Fläche690 - 4.075 m²
- VerfügbarkeitSofort
- Objekt
- Ausstattung
- Lage und Verkehrsanbindung
- Grundriss
- Exposé herunterladen
- Ihr Kontakt
- Anfrage senden
Objekt
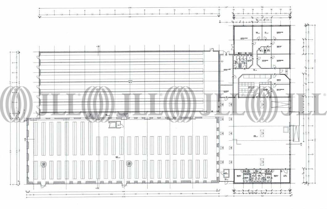
Das Vermarktungsobjekt besteht aus 3 Bauteilen, einem Hochregallager, einer flacheren Lagerhalle und einem quer vor beide Bereiche gesetzten Baukörper, der eine weitere Kommissionier- und Lagerfläche als auch den Büro-/Sozialtrakt beherbergt. Die Hallenflächen sind miteinander verbunden, denn die Andienung erfolgt an der Kopfseite des Gebäudes.
Die Hallenflächen sind allesamt besprinklert, ebenso die vorhandenen Regalanlagen. Die Flächen sind auch beheizbar. Es gibt eine Alarmanlage und eine Brandmeldeanlage.
Die Büroflächen verteilen sich auf aktuell 7 Büroräume. Dazu gibt es im Verwaltungstrakt noch Archiv- und Lagerräume.
Parkplätze für Mitarbeiter sind vorhanden. Das Areal ist eingezäunt.
Hervorzuheben ist noch die hervorragende Anbindung an den ÖPNV. In 2 min Fußweg erreicht man den Hbf und eine Bushaltestelle.
Das Objekt steht ab 01.04.2023 zur Verfügung.
Die Hallenflächen sind allesamt besprinklert, ebenso die vorhandenen Regalanlagen. Die Flächen sind auch beheizbar. Es gibt eine Alarmanlage und eine Brandmeldeanlage.
Die Büroflächen verteilen sich auf aktuell 7 Büroräume. Dazu gibt es im Verwaltungstrakt noch Archiv- und Lagerräume.
Parkplätze für Mitarbeiter sind vorhanden. Das Areal ist eingezäunt.
Hervorzuheben ist noch die hervorragende Anbindung an den ÖPNV. In 2 min Fußweg erreicht man den Hbf und eine Bushaltestelle.
Das Objekt steht ab 01.04.2023 zur Verfügung.
Zertifizierungen
Energieausweis
Für diese Liegenschaft liegt ein Verbrauchsausweis vom 2019-12-13 vom Eigentümer/Vermieter vor. Der wesentliche Energieträger der Liegenschaft ist Gas. Der Endenergieverbrauch Strom beträgt 27.00 kWh/(m²*a). Der Endenergieverbrauch Wärme beträgt 79.00 kWh/(m²*a).Verfügbare Fläche
Lage und Verkehrsanbindung
- Flughafen, Berlin Brandenburg, Fahrzeit: 30 min
- Bundesautobahn, A 10, Fahrzeit: 11 min
- Bundesstraße, B 246, Fahrzeit: 2 min
- Bundesstraße, B 101, Fahrzeit: 4 min
Ihr Kontakt

Daniel Sehnert
Ihr Kontakt






