Hallen
ID B1635Provisionsfrei
Hallen - Eberswalde - B1635
16225, Eberswalde, Brandenburg
2 € / m²
- Fläche212 - 12.389 m²
- VerfügbarkeitSofort
- Objekt
- Ausstattung
- Lage und Verkehrsanbindung
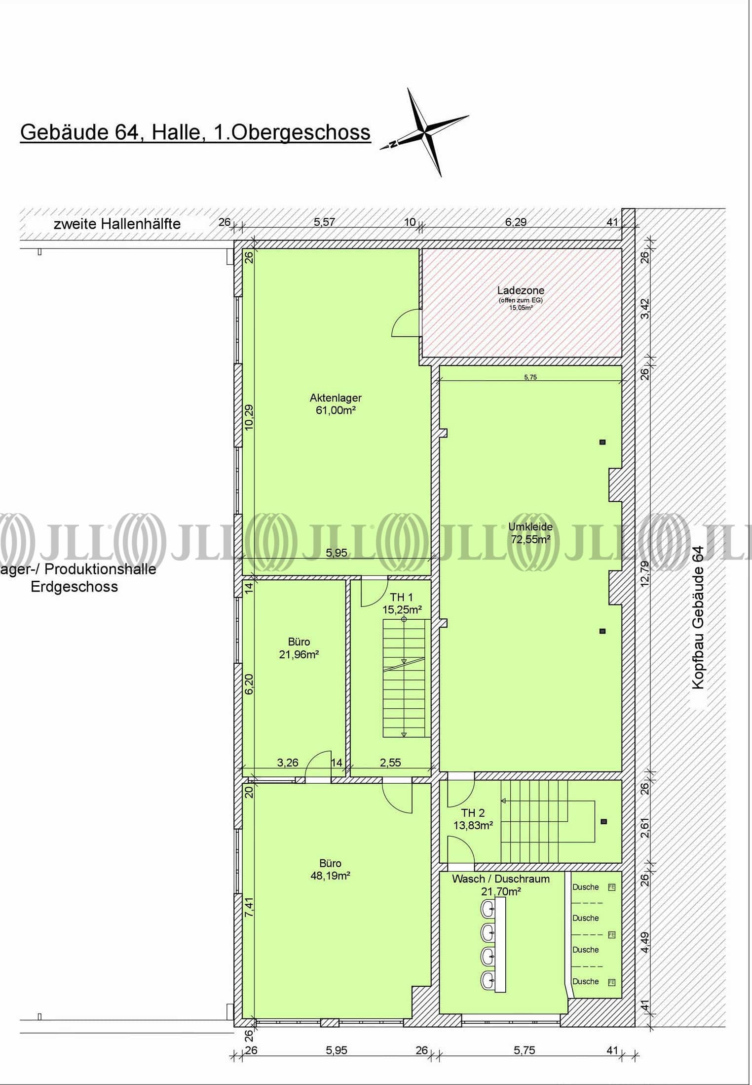
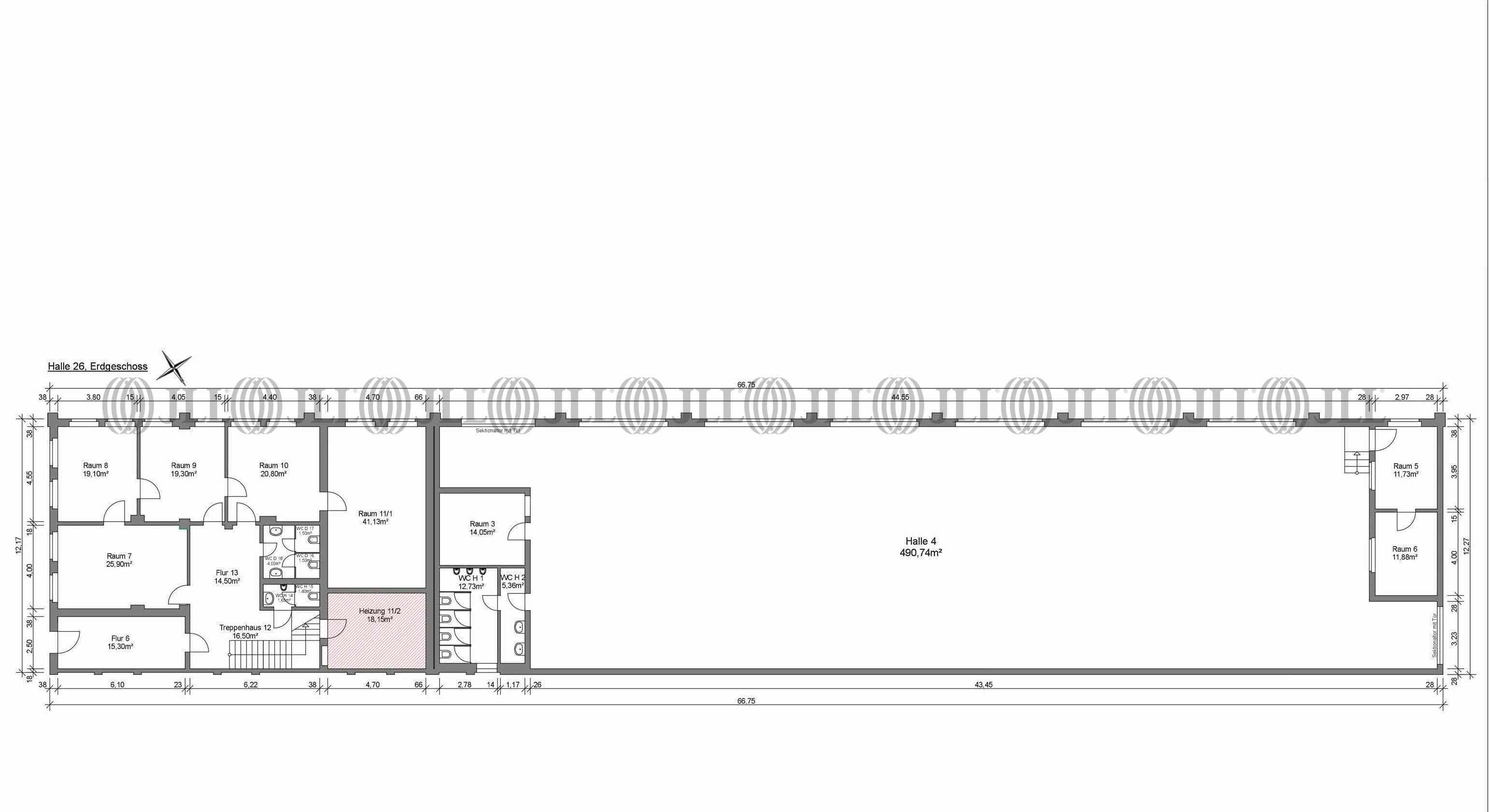
- Grundrisse
- Exposé herunterladen
- Ihr Kontakt
- Anfrage senden
Objekt
Der Technopark ist auf einem ca. 27 ha großen Grundstück entstanden, welches sich direkt an der Bundesstraße 167 in Eberswalde befindet. Die Hallen eignen sich gut als Lager sowie als Umschlagplatz für Firmen aus der Logistikbranche.
Verfügbare Fläche
Lage und Verkehrsanbindung
- Flughafen, Berlin Brandenburg, Fahrzeit: 60 min
- Bundesautobahn, A 11, Fahrzeit: 10 min
- Bundesstraße, B 167, Fahrzeit: 1 min
- Bundesstraße, B 168, Fahrzeit: 5 min
Ihr Kontakt

Philipp Olsowski
Ihr Kontakt







