Hallen
ID B1460Hallen - Schönebeck (Elbe) - B1460
39218, Schönebeck (Elbe), Sachsen-Anhalt
Provisionspflichtig: bei Anmietung 3 Netto-Monatsmieten zzgl. gesetzlicher Umsatzsteuer.** der Wert kann je nach Vertragslaufzeit variieren.
Kontaktieren Sie uns für den Preis
- Fläche2.121 m²
- VerfügbarkeitAuf Anfrage
- Objekt
- Ausstattung
- Lage und Verkehrsanbindung
- Grundrisse
- Exposé herunterladen
- Ihr Kontakt
- Anfrage senden
Objekt
Das rd. 10.500 m² große Grundstück liegt direkt im Kreuzungsbereich zweier Straßen. Die Zufahrt zum Gelände kann von 2 Seiten erfolgen. Vor dem Verwaltungstrakt liegt der Parkplatz für Mitarbeiter/ Besucher. Die rückwärtige Zufahrt dient der Andienung der beiden Tore an der Gebäuderückseite. Auf dem Gelände sind rd. 40 Stellplätze für Pkw ausgewiesen.
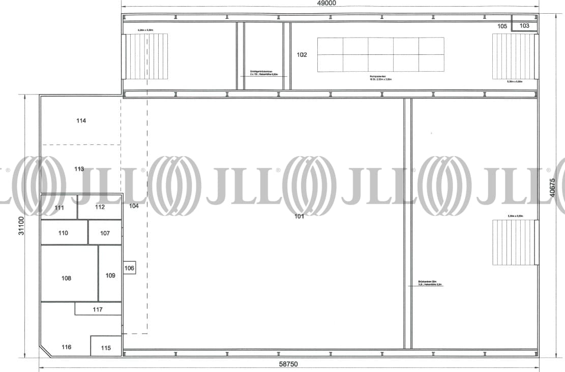
Die Liegenschaft ist bebaut mit einer funktionalen und modernen Produktionsimmobilie und einem 2-geschossigen Verwaltungsgebäude mit Büro- und Sozialflächen. Die Aufbauten sind in 2000 errichtet. Die Produktionshalle (erbaut als Stahlstützenkonstruktion) erscheint sehr funktional und für zahlreiche Nutzungen geeignet. Die Halle ist über 7 m hoch und ist durch eine Stützenreihe unterteilt in zwei Hallenschiffe. Das größere Hallenschiff (rd. 1.500 m² Nutzfläche) verfügt über einen 3,2t-Brückenkran, der über die gesamte Länge und Breite genutzt werden kann. Die Zufahrt erfolgt über ein großes ebenerdiges Tor auf der Gebäuderückseite. Das kleinere Hallenschiff (rd. 500 m²) verfügt über 2x10t Brückenkräne, welche auch gekoppelt werden können. Dieses Hallenschiff kann von vorn wie hinten über je ein großes ebenerdiges Tor befahren werden.
Die Nutzflächen sind durch Fensterbänder in den Seitenwänden beleuchtet. Die Beheizung erfolgt über Gasdunkelstrahler. Zudem verfügt die Halle über Drucklufttechnik.
Von der Halle gibt es einen direkten Zugang zu den im EG des Verwaltungstraktes liegenden Sozialflächen mit Umkleiden, Aufenthaltsraum, Duschen und WC-Anlage. Zudem ist dort ein abschließbares Kleinteilelager eingerichtet. Mittels Fahrstuhl kann man von der Halle auch ins 1.OG gelangen (diente bisher als Behindertenfahrstuhl).
Das Verwaltungsgebäude ist zweigeschossig errichtet. Über den zentralen Eingang betritt man den offenen Eingangsbereich (ggfs. für Ausstellung nutzbar). Von dort gibt es einen Zugnag zur Halle. Ferner ist dort die Heiztechnik und der Stromanschluss platziert. Über eine Treppe gelangt man ins 1.OG. Rechts und links des zentralen Flures gehen Räume ab. Innenliegend befindet sich Serverraum, Küche, WC und Archiv. Außenliegend mit Fensterfront dann die unterschiedlich großen Büroräume. An beiden Kopfenden des Flures liegen die größten Büroräume, die bisher für Besprechung und den Geschäftsführer genutzt wurden. Im Besprechungsraum (auch Büro für Fertigungsleiter) gibt es ein Fenster für den Blick in die Halle.
Die Liegenschaft ist bebaut mit einer funktionalen und modernen Produktionsimmobilie und einem 2-geschossigen Verwaltungsgebäude mit Büro- und Sozialflächen. Die Aufbauten sind in 2000 errichtet. Die Produktionshalle (erbaut als Stahlstützenkonstruktion) erscheint sehr funktional und für zahlreiche Nutzungen geeignet. Die Halle ist über 7 m hoch und ist durch eine Stützenreihe unterteilt in zwei Hallenschiffe. Das größere Hallenschiff (rd. 1.500 m² Nutzfläche) verfügt über einen 3,2t-Brückenkran, der über die gesamte Länge und Breite genutzt werden kann. Die Zufahrt erfolgt über ein großes ebenerdiges Tor auf der Gebäuderückseite. Das kleinere Hallenschiff (rd. 500 m²) verfügt über 2x10t Brückenkräne, welche auch gekoppelt werden können. Dieses Hallenschiff kann von vorn wie hinten über je ein großes ebenerdiges Tor befahren werden.
Die Nutzflächen sind durch Fensterbänder in den Seitenwänden beleuchtet. Die Beheizung erfolgt über Gasdunkelstrahler. Zudem verfügt die Halle über Drucklufttechnik.
Von der Halle gibt es einen direkten Zugang zu den im EG des Verwaltungstraktes liegenden Sozialflächen mit Umkleiden, Aufenthaltsraum, Duschen und WC-Anlage. Zudem ist dort ein abschließbares Kleinteilelager eingerichtet. Mittels Fahrstuhl kann man von der Halle auch ins 1.OG gelangen (diente bisher als Behindertenfahrstuhl).
Das Verwaltungsgebäude ist zweigeschossig errichtet. Über den zentralen Eingang betritt man den offenen Eingangsbereich (ggfs. für Ausstellung nutzbar). Von dort gibt es einen Zugnag zur Halle. Ferner ist dort die Heiztechnik und der Stromanschluss platziert. Über eine Treppe gelangt man ins 1.OG. Rechts und links des zentralen Flures gehen Räume ab. Innenliegend befindet sich Serverraum, Küche, WC und Archiv. Außenliegend mit Fensterfront dann die unterschiedlich großen Büroräume. An beiden Kopfenden des Flures liegen die größten Büroräume, die bisher für Besprechung und den Geschäftsführer genutzt wurden. Im Besprechungsraum (auch Büro für Fertigungsleiter) gibt es ein Fenster für den Blick in die Halle.
Verfügbare Fläche
Lage und Verkehrsanbindung
- Flughafen, Leipzig/Halle, Fahrzeit: 64 min
- Bundesautobahn, A 14, Fahrzeit: 10 min
- Bundesautobahn, A 2, Fahrzeit: 22 min
- Bundesstraße, B 246, Fahrzeit: 1 min
- Bundesstraße, B 184, Fahrzeit: 13 min
- Bundesstraße, B 71, Fahrzeit: 14 min
Ihr Kontakt

Daniel Sehnert
Ihr Kontakt






