Hallen
ID B1382Hallen - Berlin, Alt-Hohenschönhausen - B1382
Alt-Hohenschönhausen, 13053, Berlin, Berlin
Provisionspflichtig: bei Anmietung 3 Netto-Monatsmieten zzgl. gesetzlicher Umsatzsteuer.** der Wert kann je nach Vertragslaufzeit variieren.
9,50 € / m²
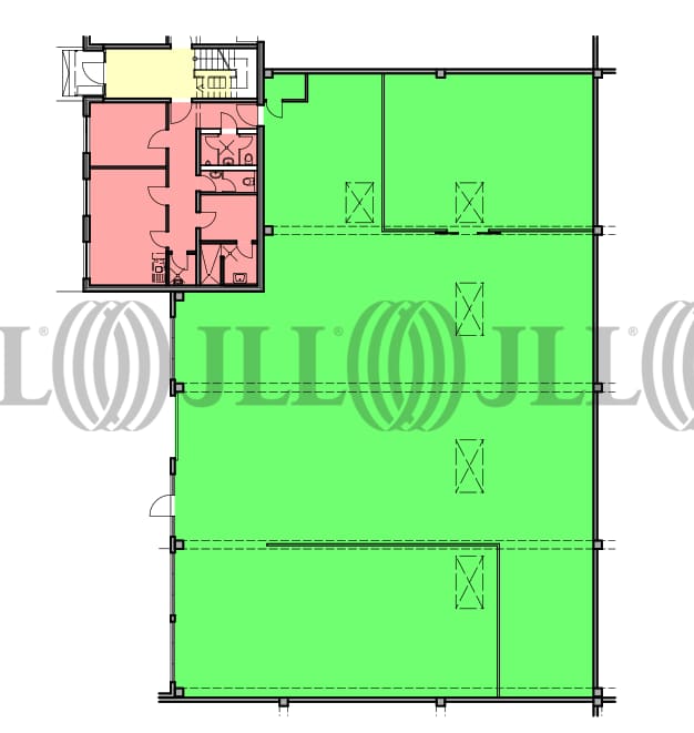
- Fläche730 m²
- VerfügbarkeitAuf Anfrage
- Objekt
- Ausstattung
- Lage und Verkehrsanbindung
- Grundrisse
- Exposé herunterladen
- Ihr Kontakt
- Anfrage senden
Objekt
Der Gewerbehof wurde im Jahr 1996 fertiggestellt. Er besteht aus 12 Mieteinheiten, die sich ihrerseits aus einer ebenerdigen Gewerbeeinheit sowie einer dreigeschossigen Büro-/ Sozialeinheit modular zusammensetzen. Sanitäreinheiten sind in jeder Geschossebene vorhanden.
Verfügbare Fläche
Lage und Verkehrsanbindung
Eine gute Anbindung an den öffentlichen Personennahverkehr bieten Straßenbahn- und Buslinien, die zu Fuß erreichbar sind.
- Flughafen, Berlin Brandenburg, Fahrzeit: 25 min
- Bundesautobahn, A 10, Fahrzeit: 20 min
- Bundesautobahn, A 100, Fahrzeit: 30 min
- Straßenbahn/Tram, Rhinstraße / Plauener Straße, Linien M17, M27, Gehzeit: 10 min
- Bus, Marzahner Straße, Linien 294, 359, Gehzeit: 10 min
Ihr Kontakt

Benedict Grote
Ihr Kontakt



