Hallen
ID B1188Provisionsfrei
Hallen - Potsdam, Marquardt - B1188
Marquardt, 14476, Potsdam, Brandenburg
Kontaktieren Sie uns für den Preis
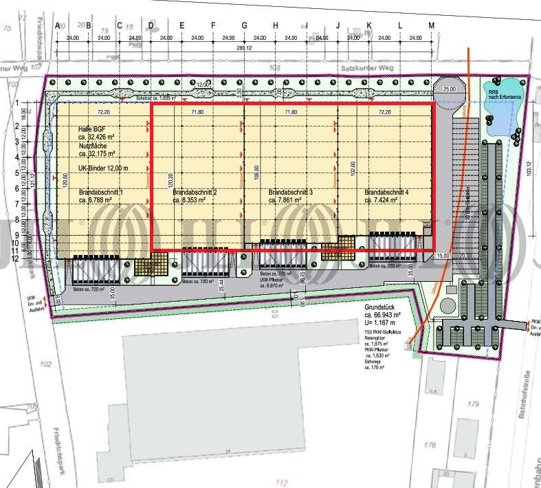
- Fläche7.500 - 26.311 m²
- VerfügbarkeitSofort
- Objekt
- Ausstattung
- Lage und Verkehrsanbindung
- Grundriss
- Exposé herunterladen
- Ihr Kontakt
- Anfrage senden
Objekt
Der Standort liegt verkehrsgünstig in einem Gewerbegebiet am westlichen Berliner Ring. Auf dem rd. 67.000 m² großen Grundstück sind spekulativ hochwertige Neubauflächen errichtet worden, die individuelle Aufteilungsmöglichkeiten mit zeitgemäßer Ausstattung für Unternehmen der Logistikbranche bieten. Das Grundstücksareal bietet befestigte Flächen und ist über eine getrennte Zufahrt mit PKW und LKW befahrbar.
Zertifizierungen
Energieausweis
DGNB: GoldVerfügbare Fläche
Lage und Verkehrsanbindung
- Flughafen, Berlin Brandenburg, Fahrzeit: 55 min
- Bundesautobahn, A 10, Fahrzeit: 2 min
- Bundesstraße, B 5, Fahrzeit: 8 min
Ihr Kontakt

Benedict Grote
Ihr Kontakt






