Hallen
ID B0548Hallen - Berlin, Alt-Hohenschönhausen - B0548
Alt-Hohenschönhausen, 13053, Berlin, Berlin
Provisionspflichtig: bei Anmietung 3 Netto-Monatsmieten zzgl. gesetzlicher Umsatzsteuer.** der Wert kann je nach Vertragslaufzeit variieren.
8,90 € / m²
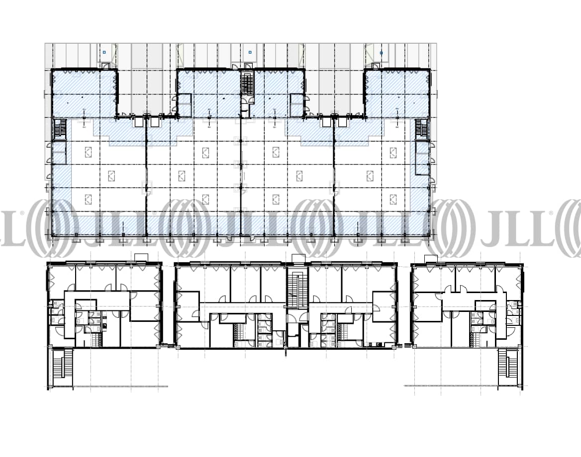
- Fläche4.572 - 10.172 m²
- VerfügbarkeitAuf Anfrage
- Objekt
- Ausstattung
- Lage und Verkehrsanbindung
- Exposé herunterladen
- Ihr Kontakt
- Anfrage senden
Objekt
Auf dem rund 57.000 m² großen Grundstück ist ein Business- und Logistikpark entstanden. Der innovative Campus hat eine hervorragende Verkehrsanbindung sowie diverse ÖPNV-Anschlüsse. Die Mietflächen verfügen über Büro-, Sozial- und Mezzanineflächen sowie tlw. Vordachflächen.
Zertifizierungen
Energieausweis
DGNB: GoldVerfügbare Fläche
Lage und Verkehrsanbindung
Der Gewerbepark befindet sich im östlichen Stadtgebiet Berlins und liegt im größten Gewerbeareal Berlins zwischen Landsberger Allee, Marzahner Straße und Plauener Straße.
- Flughafen, Berlin Brandenburg, Fahrzeit: 40 min
- Bundesautobahn, A 10, Fahrzeit: 15 min
- Bundesautobahn, A 11, Fahrzeit: 20 min
- Bundesstraße, B 158, Fahrzeit: 7 min
- Bundesstraße, B 2, Fahrzeit: 9 min
- Straßenbahn/Tram, Rhinstr./Gärtnerstr.; Linien 27, M4, M5, M10, M13, Gehzeit: 10 min
- Bus, Marzahner Str.; Linie 294, Gehzeit: 3 min
Ihr Kontakt

Benedict Grote
Ihr Kontakt




