Hallen
ID B0525Provisionsfrei
Hallen - Kremmen - B0525
16766, Kremmen, Brandenburg
6,80 € / m²
- Fläche2.550 - 12.325 m²
- Verfügbarkeit01.01.2026
- Objekt
- Ausstattung
- Lage und Verkehrsanbindung
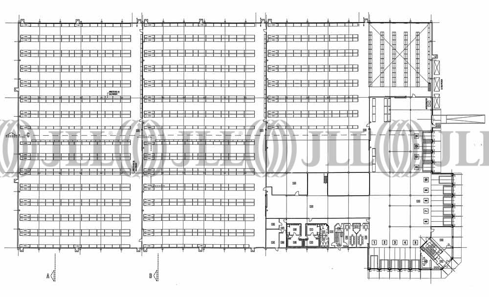
- Grundriss
- Exposé herunterladen
- Ihr Kontakt
- Anfrage senden
Objekt
Die als Stahlbetonskelettkonstruktion errichtete Logistikanlage aus dem Jahre 1996, verfügt über eine eingeschossige Halle sowie einen zweigeschossigen Anbauteil mit Büro- und Ausstellungsräumen. Das Objekt eignet sich besonders als Lager, für Großhandel bzw. als Werkstatt. Die Freiflächen sind überwiegend mit Betonverbundpflaster befestigt und bieten ausreichend Stellplatz- und Umfahrungsmöglichkeiten.
Zertifizierungen
Energieausweis
Für diese Liegenschaft liegt ein Verbrauchsausweis vom 26.08.2018 vom Eigentümer/Vermieter vor. Der wesentliche Energieträger der Liegenschaft ist Öl. Der Endenergieverbrauch Strom beträgt 39,6 kWh/(m²*a). Der Endenergieverbrauch Wärme beträgt 67,5 kWh/(m²*a).Verfügbare Fläche
Lage und Verkehrsanbindung
- Flughafen, Berlin Brandenburg, Fahrzeit: 62 min
- Bundesautobahn, A 10, Fahrzeit: 11 min
- Bundesautobahn, A 24, Fahrzeit: 7 min
- Bundesautobahn, A 19, Fahrzeit: 52 min
- Bundesstraße, B 273, Fahrzeit: 7 min
Ihr Kontakt

Benedict Grote
Ihr Kontakt







