Einzelhandel
ID E1024Provisionsfrei
Einzelhandel - Köln, Altstadt-Nord - E1024
Altstadt-Nord, 50667, Köln, Nordrhein-Westfalen
Kontaktieren Sie uns für den Preis
- Objekt
- Ausstattung
- Lage und Verkehrsanbindung
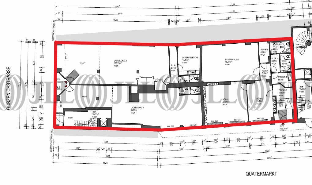
- Grundriss
- Exposé herunterladen
- Ihr Kontakt
- Anfrage senden
Objekt
Das Ladenlokal entsteht durch die Zusammenlegung dreier Einzelhandelsflächen und verfügt insgesamt über 400m². Durch die Zusammenlegung entsteht eine große Schaufensterfront, die für ein gute Sichtbarkeit sorgt. Die Mietfläche ist teilbar ab 95 m².
Lage und Verkehrsanbindung
Die Mietfläche befindet sich in der Gürzenichstraße, der Verlängerung der Schildergasse, und quer zur Hohe Straße - den top Einkaufsstraßen in der Kölner Innenstadt. In direkter Umgebungen sind namenhafte Einzelhändler wie z.B. Butlers, dm und Saturn vertreten. Das Objekt hat eine gut vernetzte Anbindung zum in unmittelbarer Nähe liegenden Heumarkt und dem zehn Minuten entfernten Kölner Hauptbahnhof.
Ihr Kontakt

Jan Hofmann
Ihr Kontakt



