Büros
ID S0924Premium JLL
Provisionsfrei
Büroimmobilie - Stuttgart, Stuttgart-West - S0924
Stuttgart-West, 70178, Stuttgart, Baden-Württemberg
14,50 € / m²
- Fläche500 - 1.000 m²
- Verfügbarkeit01.01.2027
- Objekt
- Ausstattung
- Lage und Verkehrsanbindung
- Grundrisse
- Exposé herunterladen
- Ihr Kontakt
- Anfrage senden
Objekt
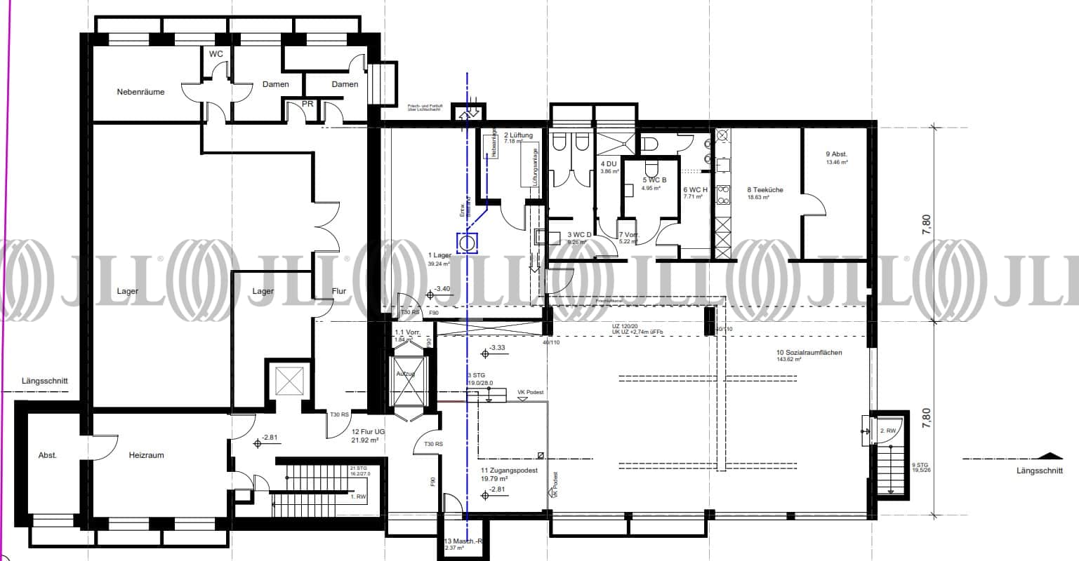
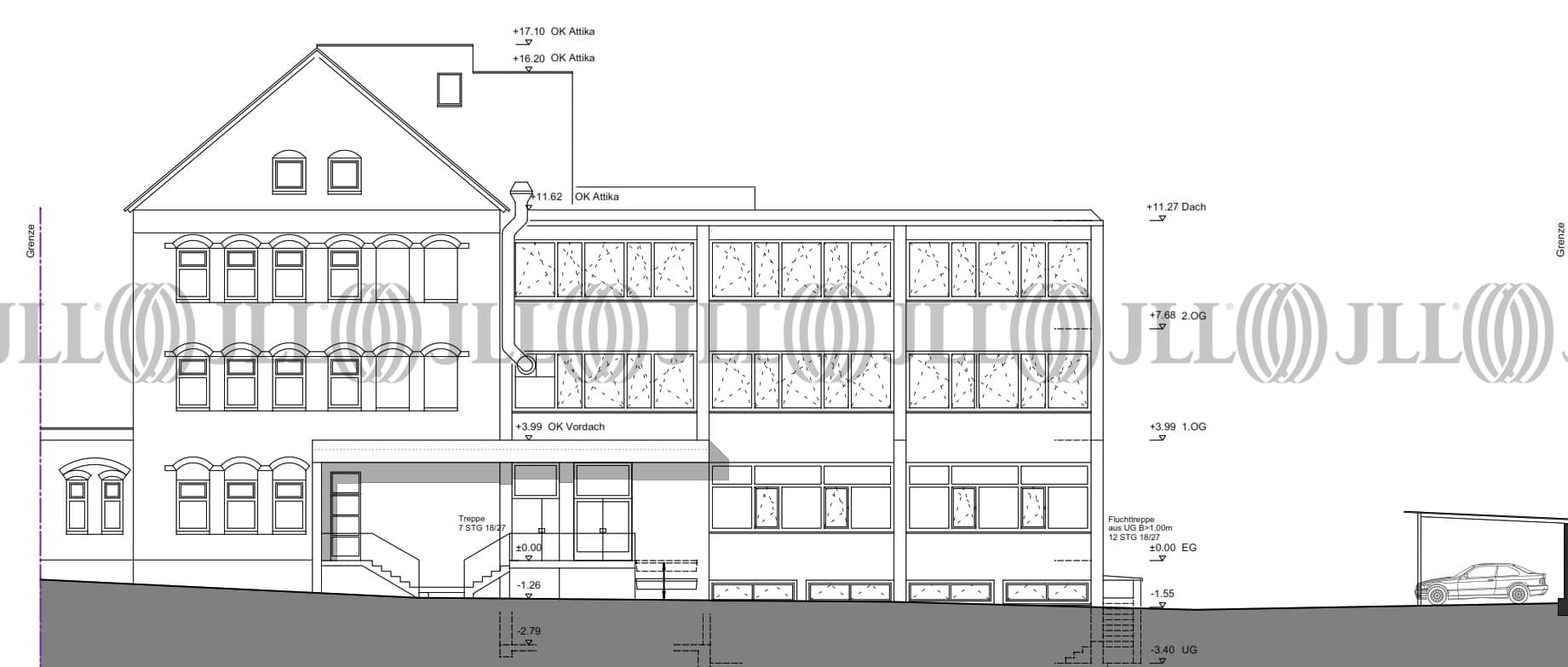
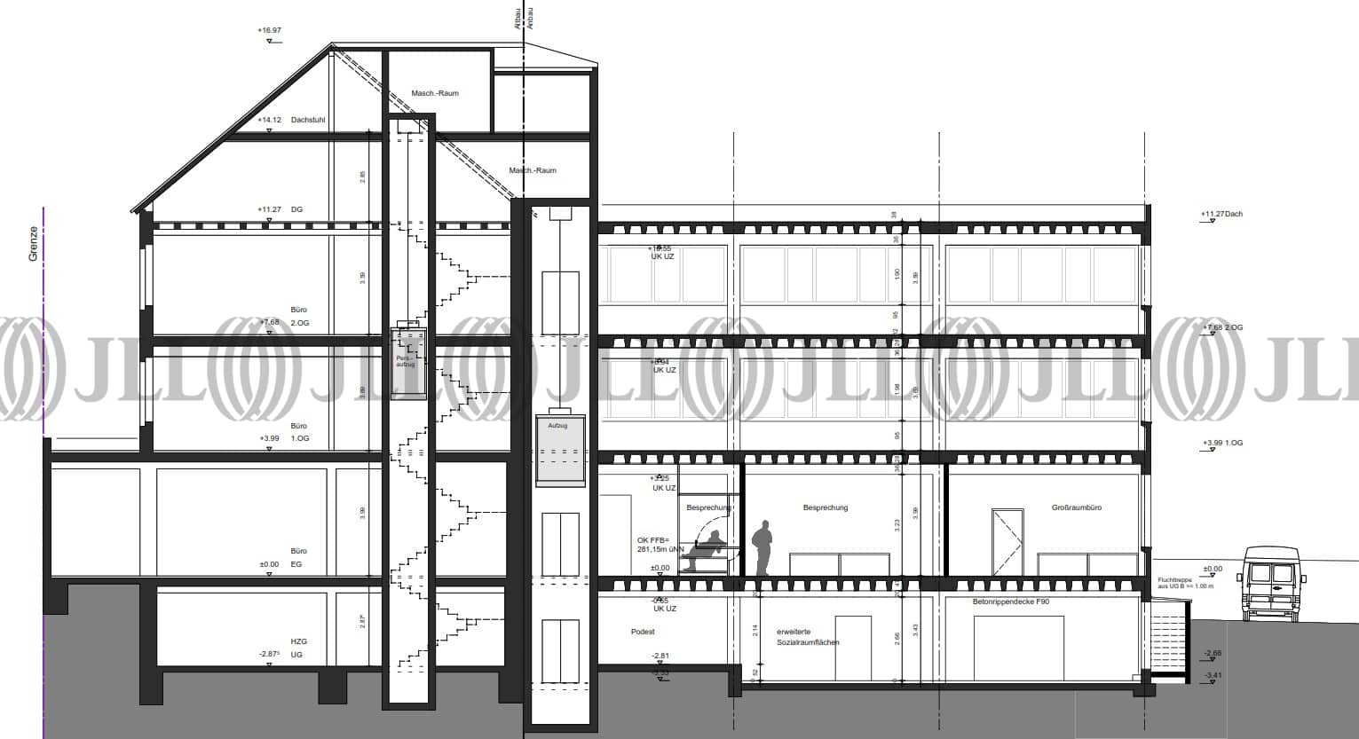
Das Rückgebäude (5a) besteht aus einem Backsteinbau von ca. 1920, der bereits gewerblich genutzt war, und einem Stahlbeton-Anbau von 1969. Im Industrieanbau saß bis 2001 die Druckerei J.F. Steinkopf (EG). Im 1. und 2. OG befanden sich die zugehörigen Büros. An das Industriegebäude erinnern heute noch die Hebebühne und Rampe sowie der Lastenaufzug.
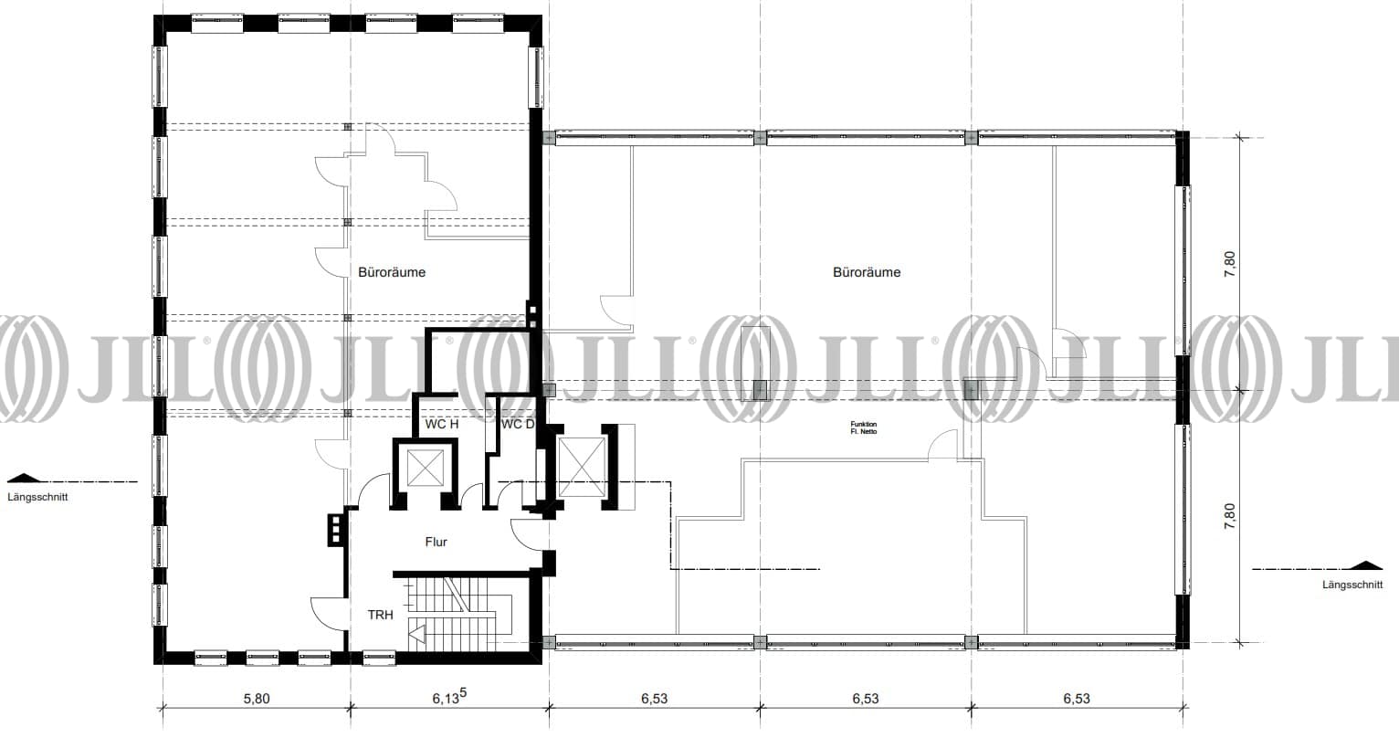
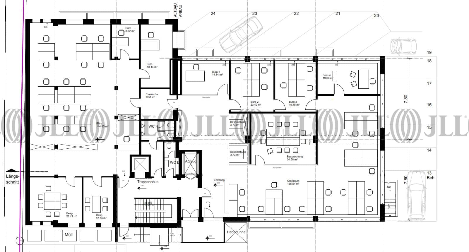
Sanierung und Umbau: In den Jahren 2004-2006 und 2013 wurden die Flächen nach und nach zu modernen Büroetagen umgebaut. Hier sind Digital- und Immobilienunternehmen angesiedelt, darunter auch zahlreiche Start-ups.
Das Gebäude hat eine große Fensterfront mit Aussicht, teilweise auf Grünanlagen. Für alle Mieter:innen gibt es eine 12x20 m große, begrünte Dachterrasse mit Terrassenmöbeln. Das Gebäude ist an die Fernwärme angeschlossen, ein Energie-Gutachten liegt vor. Neben den Büroflächen im Erd- und 1. Obergeschoss kommt im Souterrain auch ein Casino- / Event- oder Schulungsraum mit 300 m² zur Vermietung, der über eine komplett ausgestattete Küche und Sanitäranlagen verfügt.
Sanierung und Umbau: In den Jahren 2004-2006 und 2013 wurden die Flächen nach und nach zu modernen Büroetagen umgebaut. Hier sind Digital- und Immobilienunternehmen angesiedelt, darunter auch zahlreiche Start-ups.
Das Gebäude hat eine große Fensterfront mit Aussicht, teilweise auf Grünanlagen. Für alle Mieter:innen gibt es eine 12x20 m große, begrünte Dachterrasse mit Terrassenmöbeln. Das Gebäude ist an die Fernwärme angeschlossen, ein Energie-Gutachten liegt vor. Neben den Büroflächen im Erd- und 1. Obergeschoss kommt im Souterrain auch ein Casino- / Event- oder Schulungsraum mit 300 m² zur Vermietung, der über eine komplett ausgestattete Küche und Sanitäranlagen verfügt.
Verfügbare Fläche
Lage und Verkehrsanbindung
Stuttgart-West gehört zu den fünf inneren Stadtbezirken der Landeshauptstadt Stuttgart und liegt im westlichen Teil des Talkessels. Der Stadtbezirk besteht aus neun Stadtteilen und ist einer der am dichtesten besiedelten Wohngebiete in Deutschland. Die Bundesstraße B 27 grenzt direkt am Stadtbezirk und bietet somit eine gute Anbindung. Durch eine exzellente U- und S-Bahn-Verbindung können Stuttgart-Mitte und andere Städte schnell erreicht werden. Außerdem bietet Stuttgart-West ein breitgefächertes Angebot an Einzelhändlern, Nahversorgern und Restaurants. Mehrere Parks und Grünflächen laden zur Erholung und Entspannung ein.
- Bundesautobahn, A 8, Fahrzeit: 18 min
- Bundesautobahn, A 81, Fahrzeit: 18 min
- Bundesstraße, B 27, Fahrzeit: 1 min
- Bundesstraße, B 14, Fahrzeit: 4 min
- Flughafen, Stuttgart, Fahrzeit: 23 min
- Hauptbahnhof, Stuttgart (Linie: ICE, IC, IRE, RE, RB, S1-S6, Bus, U-Bahn etc.), Fahrzeit: 9 min
- S-Bahn, Feuersee (Linie: S1, S2, S3, S4, S5, S6, S60), Gehzeit: 4 min
- Bus, Silberburg-/Reinsburgstraße (Linie: 42, 44, 92), Gehzeit: 1 min
Ihr Kontakt
Regine Greiner
Ihr Kontakt












