Büros
ID S0923Premium JLL
Provisionsfrei
Büroimmobilie - Stuttgart, Degerloch - S0923
Degerloch, 70597, Stuttgart, Baden-Württemberg
Kontaktieren Sie uns für den Preis
- Fläche196 - 753 m²
- VerfügbarkeitAuf Anfrage
- Objekt
- Ausstattung
- Lage und Verkehrsanbindung
- Grundrisse
- Exposé herunterladen
- Ihr Kontakt
- Anfrage senden
Objekt
Die gepflegte Gewerbeimmobilie befindet sich in bester Lage von Stuttgart-Degerloch mit direkter Anbindung an die Bundesstraße B27 und steht ab dem 01.01.2026 zur Anmietung zur Verfügung. Das Objekt besticht durch seinen attraktiven Mix aus Lager- und Büroflächen, der vielseitige und flexible Nutzungskonzepte ermöglicht. Darüber hinaus wird der Eigentümer vor Mietbeginn eine vollständige Renovierung der Sanitäranlagen durchführen. Ergänzt wird das Flächenangebot der umfahrbaren Gewerbeimmobilie durch 8 PKW-Außenstellplätze. Eine Teilflächenvermietung ist grundsätzlich möglich, eine Vollvermietung wird jedoch präferiert.
Hinweis:
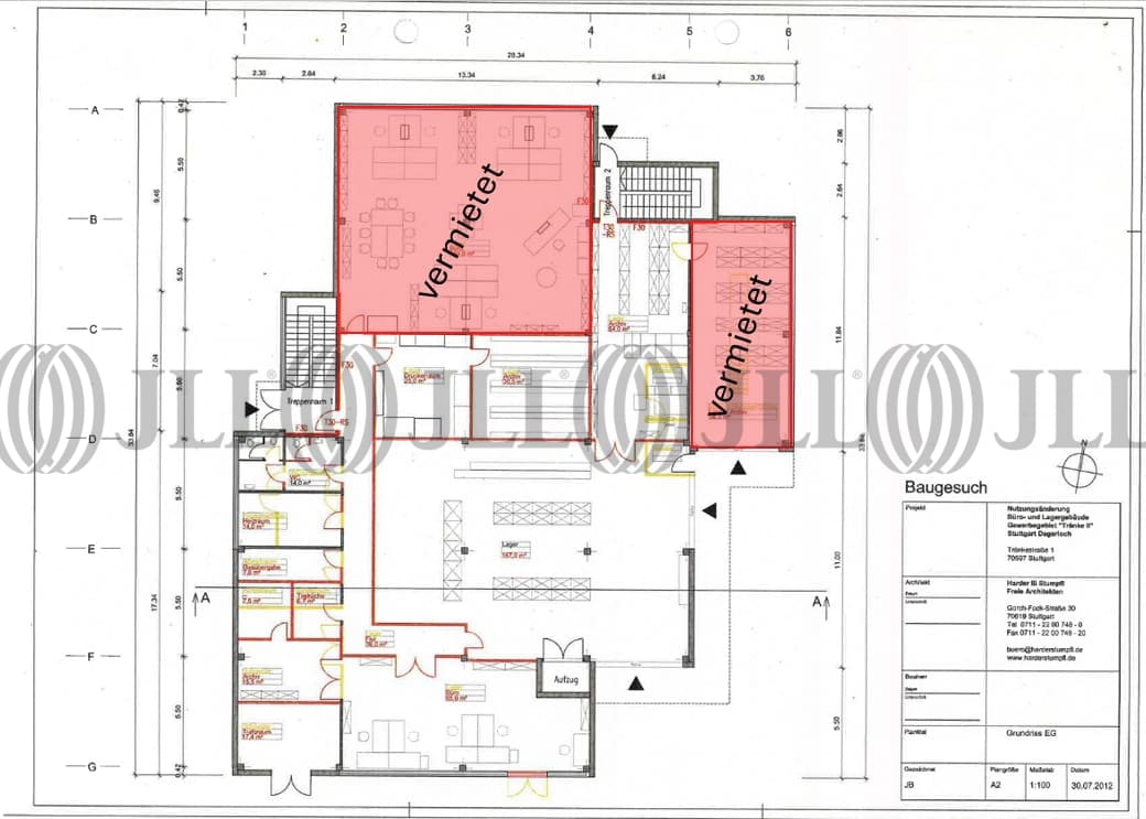
Derzeit sind zwei Mieteinheiten mit ca. 200 m² im Erdgeschoss vermietet.
Diese Bereiche sind baulich abgetrennt und beeinträchtigen die Anmietung der übrigen verfügbaren Flächen nicht.
Flächenaufteilung Erdgeschoss:
Lagerfläche: ca. 300m² - andienbar über 2 Rolltore
Bürofläche: ca. 196m² - ergänzt durch Sanitäranlagen
Besonderheiten: Lastenaufzug
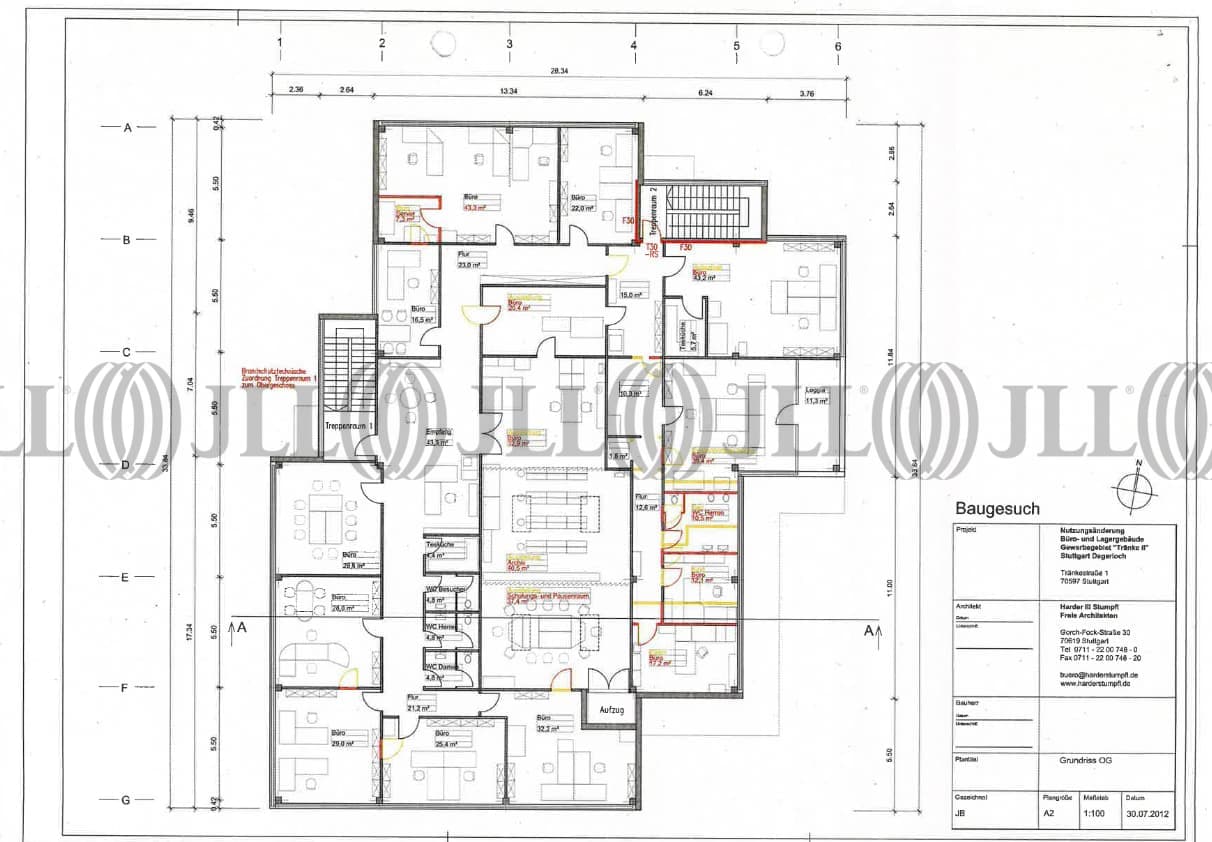
Flächenaufteilung Obergeschoss:
Lagerfläche: ca. 110m² - andienbar über Lastenaufzug
Bürofläche: ca. 557m² - ergänzt durch Sanitäranlagen. Erschließbar über zwei Treppenhäuser
Hinweis:
Derzeit sind zwei Mieteinheiten mit ca. 200 m² im Erdgeschoss vermietet.
Diese Bereiche sind baulich abgetrennt und beeinträchtigen die Anmietung der übrigen verfügbaren Flächen nicht.
Flächenaufteilung Erdgeschoss:
Lagerfläche: ca. 300m² - andienbar über 2 Rolltore
Bürofläche: ca. 196m² - ergänzt durch Sanitäranlagen
Besonderheiten: Lastenaufzug
Flächenaufteilung Obergeschoss:
Lagerfläche: ca. 110m² - andienbar über Lastenaufzug
Bürofläche: ca. 557m² - ergänzt durch Sanitäranlagen. Erschließbar über zwei Treppenhäuser
Verfügbare Fläche
Lage und Verkehrsanbindung
Die Immobilie befindet sich in der Tränkestraße 1 im Stuttgarter Stadtbezirk Degerloch, einer etablierten Gewerbe- und Wohnlage im Süden der Landeshauptstadt. Der Standort zeichnet sich durch seine verkehrsgünstige Lage mit direkter Anbindung an die Bundesstraße B27 aus, die eine schnelle Verbindung zum Stuttgarter Stadtzentrum sowie zu den überregionalen Verkehrsachsen A8 und A81 gewährleistet. Degerloch profitiert von seiner erhöhten Lage auf den Fildern und bietet sowohl gewerblichen als auch privaten Nutzern eine attraktive Infrastruktur. Die Anbindung an den öffentlichen Personennahverkehr erfolgt über mehrere Buslinien sowie die nahegelegene Zahnradbahn, die eine direkte Verbindung in die Stuttgarter Innenstadt ermöglicht. Die Umgebung ist geprägt von einer Mischung aus Gewerbe, Dienstleistung und Wohnen, was für eine lebendige und wirtschaftlich stabile Nachbarschaft sorgt. Einzelhandels- und Versorgungseinrichtungen sowie gastronomische Angebote sind in unmittelbarer Nähe vorhanden und tragen zur Attraktivität des Standorts bei.
- Bundesautobahn, A 8, Fahrzeit: 4 min
- Bundesautobahn, A 81, Fahrzeit: 9 min
- Bundesstraße, B 14, Fahrzeit: 11 min
- Bundesstraße, B 27, Fahrzeit: 1 min
- Hauptbahnhof, Stuttgart (Linie: ICE, IC, IRE, RE, RB, S1-S6, Bus, U-Bahn etc.), Fahrzeit: 15 min
- Flughafen, Stuttgart, Fahrzeit: 7 min
- Bus, Tränke (Linie: 71, 73, 74, 76, 77), Gehzeit: 6 min
Ihr Kontakt

Peter Gent
Ihr Kontakt










