Büros
ID S0898Provisionsfrei
Büroimmobilie - Stuttgart, Möhringen - S0898
Möhringen, 70565, Stuttgart, Baden-Württemberg
13 € / m²
- Fläche304 m²
- VerfügbarkeitAuf Anfrage
- Objekt
- Ausstattung
- Lage und Verkehrsanbindung
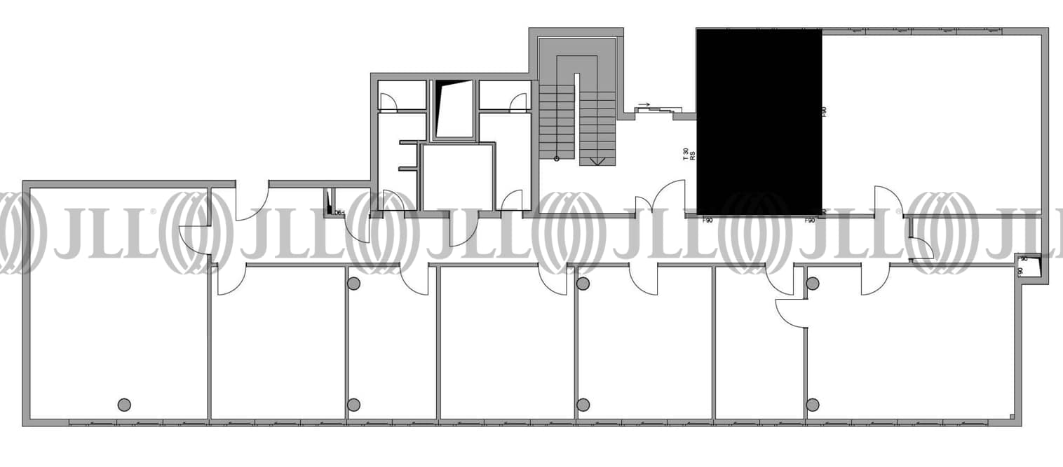
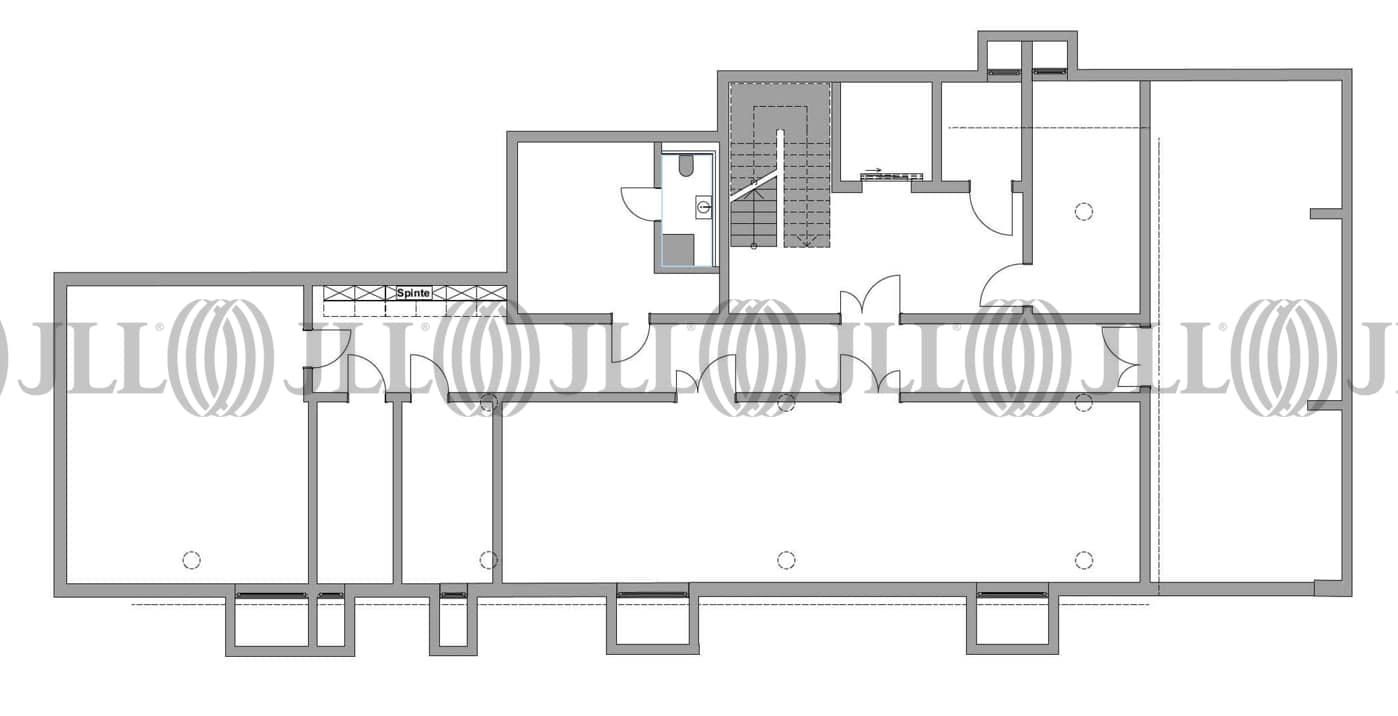
- Grundrisse
- Exposé herunterladen
- Ihr Kontakt
- Anfrage senden
Objekt
Die großzügigen Büroflächen sind lichtdurchflutet und schaffen ein angenehmes Arbeitsklima. Die Ausstattung entspricht den Ansprüchen an einen modernen Bürobetrieb bei dem eine individuelle Raumaufteilung realisierbar ist.
Verfügbare Fläche
Lage und Verkehrsanbindung
Der Stadtbezirk Möhringen liegt südlich der Landeshauptstadt Stuttgart und ist untergliedert in die Stadtteile Möhringen, Fasanenhof und Sonnenberg. Mit direkter Anbindung an die Bundesstraße B 27 und an die Autobahn A 8 ist Möhringen optimal zu erreichen. Mit mehreren S- und U-Bahn-Haltestellen kann man schnell in die Stuttgarter Innenstadt gelangen. Der Stadtbezirk ist Sitz vieler mittelständischen und großen Unternehmen wie der Ed. Züblin AG und EnBW. Bekannt ist Möhringen vor allem für das SI-Centrum, welches ein großes Freizeit- und Musicalprojekt ist. Wegen der modernen Sozial- und Infrastruktur besitzt der Stadtbezirk Möhringen einen hohen Freizeitwert und ist für Unternehmen sehr beliebt.
- Bundesautobahn, A 8, Fahrzeit: 6 min
- Bundesautobahn, A 81, Fahrzeit: 9 min
- Bundesstraße, B 27, Fahrzeit: 8 min
- Bundesstraße, B 14, Fahrzeit: 7 min
- Flughafen, Stuttgart, Fahrzeit: 10 min
- Hauptbahnhof, Stuttgart (Linie: ICE, IC, IRE, RE, RB, S1-S6, Bus, U-Bahn etc.), Fahrzeit: 24 min
- U-Bahn, Lapp Kabel (Linie: U12), Gehzeit: 3 min
- Bus, Gewerbestraße - Stuttgart (Linie: 80), Gehzeit: 3 min
Ihr Kontakt

Marvin Gnaase
Ihr Kontakt










