Büros
ID S0888Provisionsfrei
Büroimmobilie - Stuttgart, Mitte - S0888
Mitte, 70173, Stuttgart, Baden-Württemberg
25 € / m²
- Fläche299 m²
- VerfügbarkeitSofort
- Objekt
- Ausstattung
- Lage und Verkehrsanbindung
- Exposé herunterladen
- Ihr Kontakt
- Anfrage senden
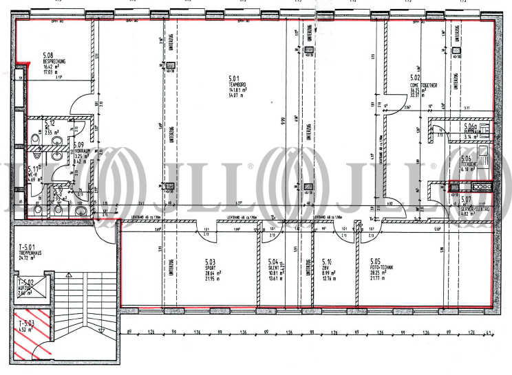
Objekt
Am Puls der Stadt – Stuttgarts geschäftiger Königstraße – liegt das Bürogebäude mit der Hausnummer 18. Die Bürofläche verfügt über großzügige Fensterfronten, wodurch die Fläche lichtdurchflutet ist und somit für eine angenehme Arbeitsatmosphäre sorgt. Der Grundriss bietet einen großen mittigen Open Space Bereich. Des Weiteren hat die Fläche 4 Büroräume, ein großes Besprechungszimmer, einen Aufenthaltsraum + Küche und einen Serverraum. Stellplätze können im Parkhaus Königshof für je 150 € pro Monat angemietet werden. Vom Parkdeck gelangt man direkt in das Gebäude.
Zertifizierungen
Energieausweis
Für diese Liegenschaft liegt ein Verbrauchsausweis vom 13.05.2019 vom Eigentümer/Vermieter vor. Der wesentliche Energieträger der Liegenschaft ist Fernwärme. Der Endenergieverbrauch Strom beträgt 78 kWh/(m²*a). Der Endenergieverbrauch Wärme beträgt 82 kWh/(m²*a).Verfügbare Fläche
Lage und Verkehrsanbindung
Stuttgart City, bzw. Stuttgart-Mitte ist der innere Stadtbezirk und das Herz der Landeshauptstadt Stuttgart. In der City werden Kultur, Politik und Wirtschaft perfekt kombiniert. Mittelpunkt des Bezirks ist die Königstraße, eine der längsten Fußgängerzonen Deutschlands, in welcher namhafte Geschäfte vertreten sind. Am Ende der Königstraße befindet sich der Stuttgarter Hauptbahnhof, von dem aus regionale-, überregionale-, und internationale Ziele erreicht werden können. Mit einem breitgefächerten kulturellen Angebot, vielen Einzelhändlern und einer kulinarischen Vielfalt, ist Stuttgart eine sehr attraktive Stadt. Der Schlossplatz und die Schlossgartenanlage, laden zu Entspannung und Erholung ein.
- Hauptbahnhof, Stuttgart (ICE, IC, IRE, RE, RB, S-Bahn, U-Bahn, Bus, etc.), Fahrzeit: 2 min
- Bus, Arnulf-Klett-Platz (Linie: 40, 42, 44 etc.), Gehzeit: 5 min
- Bundesautobahn, A 8, Fahrzeit: 19 min
- Bundesautobahn, A 81, Fahrzeit: 20 min
- Bundesstraße, B 14, Fahrzeit: 4 min
- Bundesstraße, B 27, Fahrzeit: 2 min
- Flughafen, Stuttgart, Fahrzeit: 19 min
Ihr Kontakt

Peter Gent
Ihr Kontakt










