Büros
ID S0878Provisionsfrei
Büroimmobilie - Freiburg im Breisgau, St. Georgen - S0878
St. Georgen, 79111, Freiburg im Breisgau, Baden-Württemberg
12,50 € / m²
- Fläche74 - 1.586 m²
- VerfügbarkeitAuf Anfrage
- Objekt
- Ausstattung
- Lage und Verkehrsanbindung
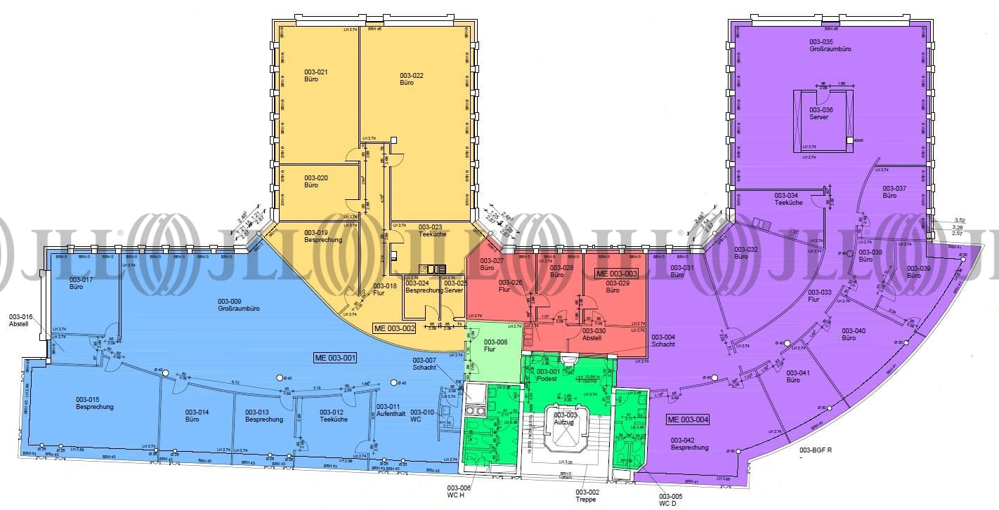
- Grundrisse
- Exposé herunterladen
- Ihr Kontakt
- Anfrage senden
Objekt
Das moderne und sechsgeschossige Gewerbeobjekt verfügt über einen repräsentativen Haupteingang und freie Flächen im 2. und 3. Obergeschoss. Diese sind über einen innenliegenden Personenaufzug in Glasoptik erschlossen und verfügen weiterhin über einen modernen Ausbaustandard.
Zertifizierungen
Energieausweis
Für diese Liegenschaft liegt ein Bedarfsausweis vom 21.07.2021 vom Eigentümer/Vermieter vor. Der wesentliche Energieträger der Liegenschaft ist Fernwärme. Der Endenergiebedarf Strom beträgt 17,7 kWh/(m²*a). Der Endenergiebedarf Wärme beträgt 93,1 kWh/(m²*a).Verfügbare Fläche
Lage und Verkehrsanbindung
Das Objekt befindet sich im Freiburger Stadtteil St. Georgen und verfügt aufgrund seiner Lage über eine hervorragende Sichtbarkeit. Nur wenige Gehminuten vom Objekt entfernt, befindet sich eine Tram- und Busstation. Darüber hinaus ist die Verkehrsanbindung hervorragend. In nur wenigen Minuten erreicht man die Autobahn A5 sowie die Bundesstraße B3. Eine Tankstelle befindet sich in der Nähe. Dienstleister des täglichen Bedarfs befinden sich ebenfalls in der Nähe.
- Flughafen, Stuttgart, Fahrzeit: 130 min
- Bundesautobahn, A 5, Fahrzeit: 7 min
- Bundesstraße, B 3, Fahrzeit: 3 min
- Bundesstraße, B 31, Fahrzeit: 5 min
- Bus, Munzinger Straße (Linien: 10, 15, 17, 18, 19, 24, 34), Gehzeit: 2 min
- Bahnhof, Freiburg (D) St. Georgen (RB, RE), Gehzeit: 29 min
- Hauptbahnhof, Freiburg (ICE, IC, RE, IRE, RB, S-Bahn, U-Bahn, Bus), Fahrzeit: 13 min
Ihr Kontakt

Peter Gent
Ihr Kontakt


























