Büros
ID S0828Provisionsfrei
Büroimmobilie - Stuttgart, Vaihingen - S0828
Vaihingen, 70563, Stuttgart, Baden-Württemberg
13 € - 14 € / m²
- Fläche157 - 3.085 m²
- VerfügbarkeitSofort
- Objekt
- Ausstattung
- Lage und Verkehrsanbindung
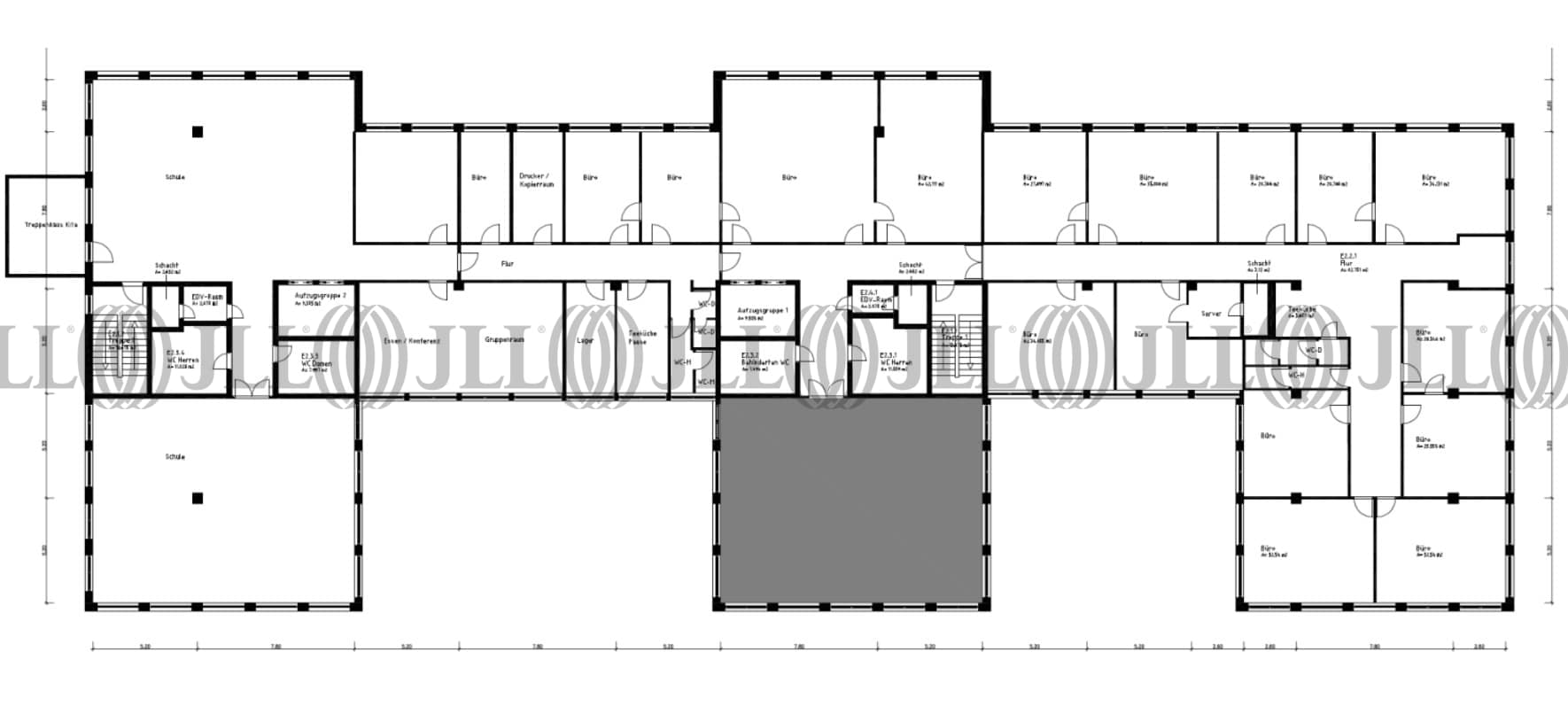
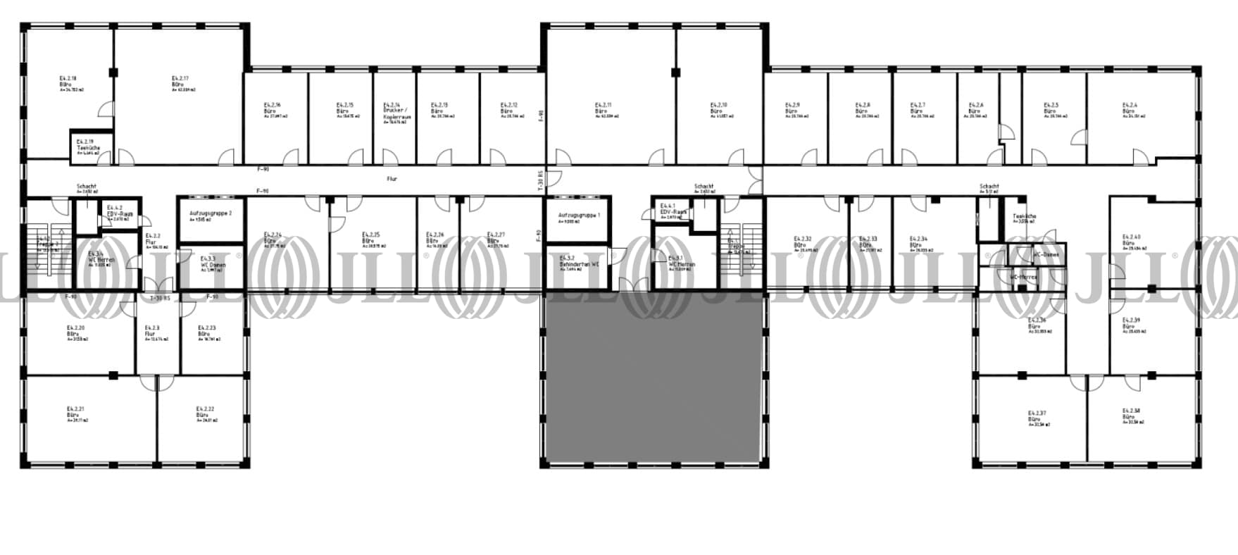
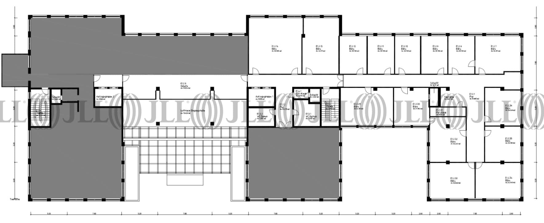
- Grundrisse
- Exposé herunterladen
- Ihr Kontakt
- Anfrage senden
Objekt
Das Areal des STEP Stuttgarter Engineering Park in Stuttgart Vaihingen umfasst ca. 110.000 m² Grundstücksfläche im Südwesten von Stuttgart. Im Jahr 2000 entstand dieser Technologiepark unter der Regie der STEP Stuttgarter Engineering Park GmbH, einer hundertprozentigen Tochtergesellschaft der L Bank, Staatsbank für Baden Württemberg. Mittlerweile sind in den erstellten zwölf Gebäudekomplexen auf einer Bürofläche von ca. 130.000 m² ca. 200 Unternehmen angesiedelt. Der STEP Stuttgarter Engineering Park zeichnet sich besonders durch sein zentrales Dienstleistungs und Konferenzgebäude mit Restaurant und Bistro, einem großen Fitness und Wellnessstudio und weiteren Dienstleistungseinrichtungen wie Friseur, Reisebüro, Textil und Gebäudereinigung, Mini Shop, Bank, etc. aus.
Verfügbare Fläche
Lage und Verkehrsanbindung
Der STEP Stuttgarter Engineering Park befindet sich an einem erstklassigen Standort im Südwesten der Landeshauptstadt Stuttgart, Ortsteil Stuttgart-Vaihingen und verfügt über ideale Verkehrsanbindungen. Die S-Bahnhaltestelle Österfeld grenzt unmittelbar an das STEP-Areal. Die angrenzende B14 führt direkt in die City.
- Flughafen, Stuttgart, Fahrzeit: 17 min
- Bundesautobahn, A 8, Fahrzeit: 6 min
- Bundesautobahn, A 81, Fahrzeit: 5 min
- Bundesstraße, B 14, Fahrzeit: 2 min
- Bundesstraße, B 27, Fahrzeit: 13 min
- Bundesstraße, B 10, Fahrzeit: 20 min
- Bus, Alter Friedhof (Linie: 82), Gehzeit: 8 min
- S-Bahn, Österfeld (S1, S2, S3), Gehzeit: 4 min
- Hauptbahnhof, Stuttgart (ICE, RE, IRE, IC, RB, S-Bahn, U-Bahn, Bus etc.), Fahrzeit: 17 min
Ihr Kontakt

Marvin Gnaase
Ihr Kontakt
Marktinformationen
Mietmarkt
Vaihingen, Stuttgart
siehe 18 passende MietobjekteErfahren Sie mehr
* Durchschnittspreis auf Grundlage historischer Transaktionen.



















