Büros
ID S0825Provisionsfrei
Büroimmobilie - Stuttgart, Mitte - S0825
Mitte, 70174, Stuttgart, Baden-Württemberg
25,50 € / m²
- Fläche1.445 m²
- VerfügbarkeitSofort
- Objekt
- Ausstattung
- Lage und Verkehrsanbindung
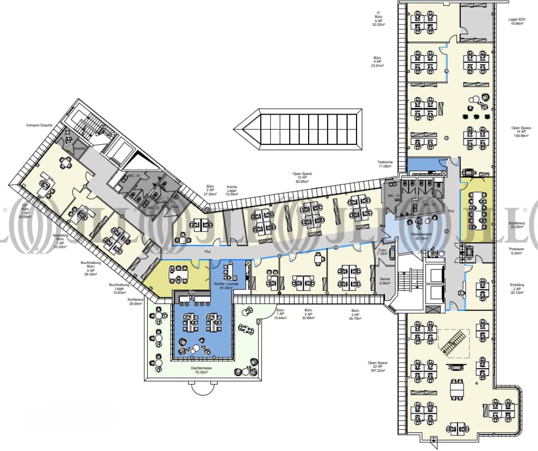
- Grundriss
- Exposé herunterladen
- Ihr Kontakt
- Anfrage senden
Objekt
Das moderne Bürogebäude verfügt über freie Flächen, die aufwändig saniert wurden. Dabei verfügen die Flächen neben großzügigen Fensterfronten über folgende Ausstattungskriterien: Teppich, Teilklimatisierung, Brüstungskanäle, TG-Stellplätze. Eine weitere Besonderheit ist die im 6. Obergeschoss befindliche Terrasse, die eine optimale Aussicht auf die Stuttgarter Innenstadt ermöglicht.
Verfügbare Fläche
Lage und Verkehrsanbindung
Das Objekt befindet sich in zentraler Innenstadtlage zwischen Gustav-Heinemann-Platz und Theodor-Heuss-Straße, in unmittelbarer Nähe zum Haus der Wirtschaft. Die Haupteinkaufsstraße Königstraße ist nur ca. 300 m entfernt. Das Umfeld ist durch Büro. und Verwaltungsgebäude geprägt, in denen sich diverse Banken, Versicherungen, Ämter und Wirtschaftsprüfungsgesellschaften sowie die Stuttgarter Börse niedergelassen haben. Die Stadtbahnhaltestelle Keplerstraße (Friedrichsbau) der Linien U9, U11 und U14 ist fußläufig in ca. 2 Minuten zu erreichen. Der Stuttgarter Hauptbahnhof ist ebenfalls nur wenige Gehminuten ernfernt. Dies gewährleistet eine Anbindung an sämtliche S-Bahnen und überregionale Züge. Über die Bundesstraßen B14 und B27 ist dieser Standort optimal an den überregionalen Straßenverkehr angebunden. Der Stuttgarter Flughafen ist in ca. 30 Minuten anzufahren. Dienstleister des täglichen Bedarfs befinden sich in der Nähe.
- Flughafen, Stuttgart, Fahrzeit: 18 min
- Bundesautobahn, A 8, Fahrzeit: 15 min
- Bundesautobahn, A 81, Fahrzeit: 17 min
- Bundesstraße, B 10, Fahrzeit: 16 min
- Bundesstraße, B 14, Fahrzeit: 2 min
- Bundesstraße, B 27, Fahrzeit: 1 min
- Bus, Bushaltestelle Rotebühlplatz Buslinien 43, 92, Gehzeit: 5 min
- S-Bahn, Stadtmitte (S1-S6), Gehzeit: 6 min
- U-Bahn, Stadtmitte (U2, U4, U11, U14), Gehzeit: 6 min
- Hauptbahnhof, Stuttgart (ICE, RE, IRE, IC, RB, S-Bahn, U-Bahn, Bus etc.), Fahrzeit: 5 min
- Hauptbahnhof, Stuttgart (ICE, RE, IRE, IC, RB, S-Bahn, U-Bahn, Bus etc.), Gehzeit: 8 min
Ihr Kontakt

Marvin Gnaase
Ihr Kontakt


