Büros
ID S0802Provisionsfrei
Aktualisiert
Büroimmobilie - Stuttgart, Mitte - S0802
Mitte, 70173, Stuttgart, Baden-Württemberg
Kontaktieren Sie uns für den Preis
- Fläche295 - 590 m²
- VerfügbarkeitSofort
- Objekt
- Ausstattung
- Lage und Verkehrsanbindung
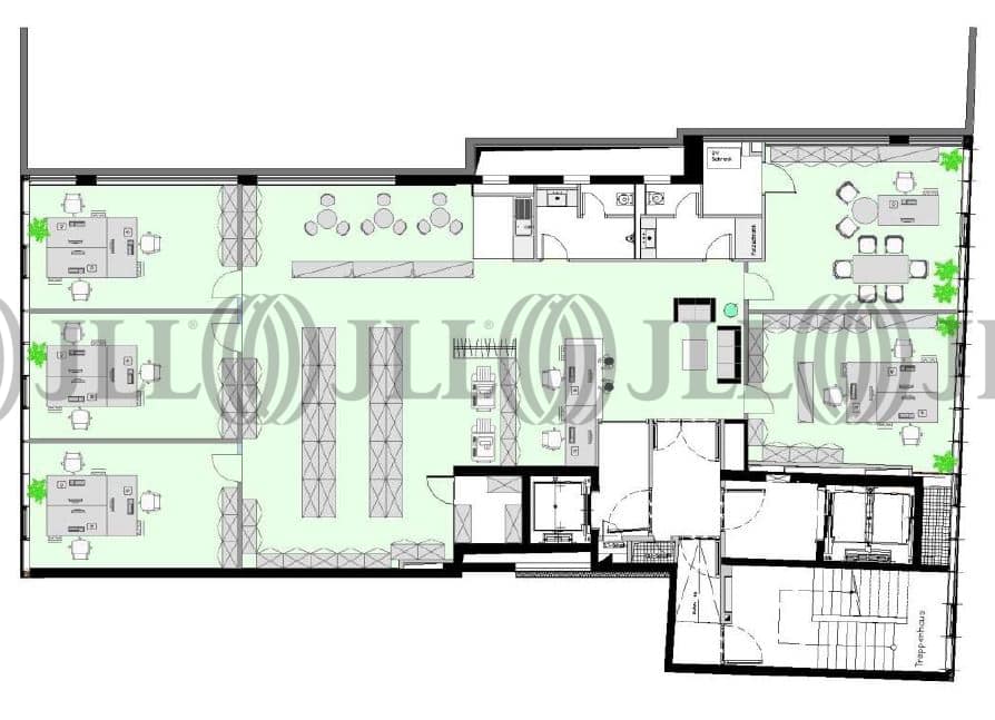
- Grundrisse
- Exposé herunterladen
- Ihr Kontakt
- Anfrage senden
Objekt
Die Generalsanierung im Jahr 2017 lässt dieses Objekt in neuem Glanz erscheinen und lädt in moderne und zeitlos gestaltete Räumlichkeiten ein.
Verfügbare Fläche
Lage und Verkehrsanbindung
Stuttgart City, bzw. Stuttgart-Mitte ist der innere Stadtbezirk und das Herz der Landeshauptstadt Stuttgart. In der City werden Kultur, Politik und Wirtschaft perfekt kombiniert. Mittelpunkt des Bezirks ist die Königstraße, eine der längsten Fußgängerzonen Deutschlands, in welcher namhafte Geschäfte vertreten sind. Am Ende der Königstraße befindet sich der Stuttgarter Hauptbahnhof, von dem aus regionale-, überregionale-, und internationale Ziele erreicht werden können. Mit einem breitgefächerten kulturellen Angebot, vielen Einzelhändlern und einer kulinarischen Vielfalt, ist Stuttgart eine sehr attraktive Stadt. Der Schlossplatz und die Schlossgartenanlage, laden zu Entspannung und Erholung ein.
- Hauptbahnhof, Stuttgart (ICE, IC, IRE, RE, RB, S-Bahn, U-Bahn, Bus, etc.), Gehzeit: 13 min
- S-Bahn, Stadtmitte (Linie: S1 - S6, S60, S11), Gehzeit: 5 min
- Bus, Bushaltestelle Schloßplatz Buslinien 44, Gehzeit: 4 min
- Bundesautobahn, A 8, Fahrzeit: 19 min
- Bundesautobahn, A 81, Fahrzeit: 21 min
- Flughafen, Stuttgart, Fahrzeit: 22 min
Ihr Kontakt

Peter Gent
Ihr Kontakt















