Büros
ID S0799Provisionsfrei
Büroimmobilie - Stuttgart, Bad Cannstatt - S0799
Bad Cannstatt, 70376, Stuttgart, Baden-Württemberg
15 € - 17,50 € / m²
- Fläche310 - 8.856 m²
- VerfügbarkeitSofort
- Objekt
- Ausstattung
- Lage und Verkehrsanbindung
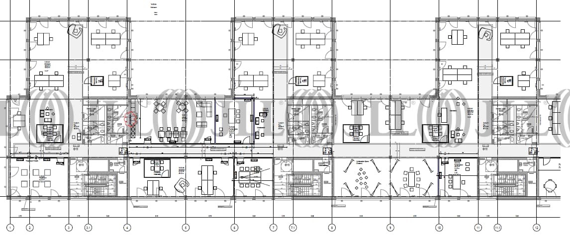
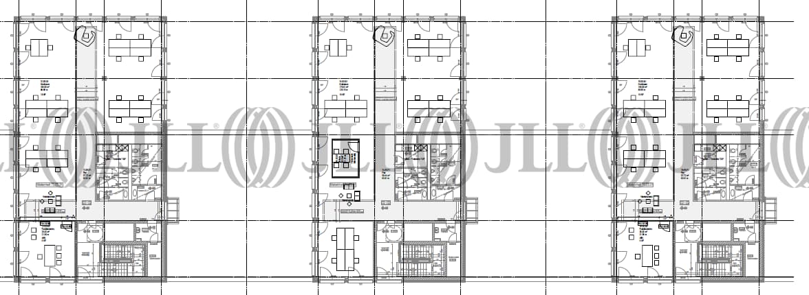
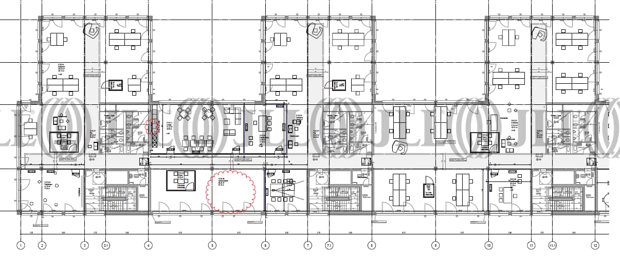
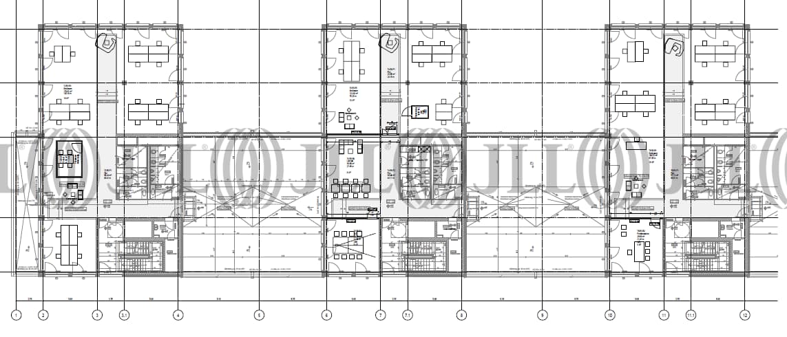
- Grundrisse
- Exposé herunterladen
- Ihr Kontakt
- Anfrage senden
Objekt
Das Objekt überzeugt bereits durch seine moderne und zeitlose Architektur, welche sich im Inneren des Gebäudes fortsetzt. Dieses Objekt lässt keine Wünsche offen - lichtdurchflutete, zeitlose und moderne Flächen laden zum arbeiten ein. Hier bietet sich Ihnen die Möglichkeit die Flächen individuell mitzugestalten und sie ganz nach Ihren Wünschen einzurichten und aufzuteilen. Eine Übernahme des Mobiliars ist ebenfalls möglich. Ausreichend Stellplätze stehen den künftigen Mietern sowohl im Außen- als auch im Innenbereich ausreichend zur Verfügung.
Zertifizierungen
Energieausweis
Für diese Liegenschaft liegt ein Bedarfsausweis vom 25.06.2019 vom Eigentümer/Vermieter vor. Die wesentlichen Energieträger der Liegenschaft sind Heizwerk, fossil, Strom. Der Endenergiebedarf Strom beträgt 27.00 kWh/(m²*a). Der Endenergiebedarf Wärme beträgt 66.00 kWh/(m²*a).Verfügbare Fläche
Lage und Verkehrsanbindung
Der moderne Neubau befindet sich zwischen namhaften Herstellerfirmen direkt in Stuttgart Bad-Cannstatt. Bad Cannstatt ist der größte und einwohnerstärkste Stadtbezirk der Landeshauptstadt Stuttgart, mit insgesamt 18 Stadtteilen. Der Stadtbezirk ist vor allem für die Mineralbäder, Sport- und Kulturveranstaltungen und für namhafte Unternehmen bekannt. Mit direkter Anbindung an die Bundesstraßen B 10, B 27 und B 14 ist Bad Cannstatt optimal zu erreichen. Die Stuttgarter Innenstadt ist mit mehreren S- Bahn, U-Bahn und Bushaltestellen in wenigen Minuten erreichbar. Insbesondere die in direkter Nähe des Objekts befindlichen U-Bahnstationen sorgen mit den Linien U12, U13 und U16 für eine optimale Anbindung. Durch Regionalbahnanschlüssen gelangt man in weitere Städte wie beispielsweise Tübingen und Ulm. Außerdem bietet Bad Cannstatt ein breitgefächertes Angebot an Einzelhändlern, Nahversorger und Restaurants. Mehrere Parks und Grünflächen laden zur Erholung und Entspannung ein. Eine Tankstelle befindet sich in der Nähe. Dienstleister des täglichen Bedarfs befinden sich in der Nähe.
- Flughafen, Stuttgart, Fahrzeit: 32 min
- Bundesautobahn, A 8, Fahrzeit: 25 min
- Bundesautobahn, A 81, Fahrzeit: 20 min
- Bundesstraße, B 10, Fahrzeit: 3 min
- Bundesstraße, B 27, Fahrzeit: 4 min
- Bundesstraße, B 14, Fahrzeit: 8 min
- Bus, Pragsattel (Buslinie 57), Gehzeit: 11 min
- U-Bahn, Löwentor (U12, U13, U16), Gehzeit: 3 min
- Hauptbahnhof, (ICE, IC, RE, S-Bahn, etc.), Gehzeit: 40 min
- Hauptbahnhof, (ICE, IC, RE, S-Bahn, etc.), Fahrzeit: 7 min
Ihr Kontakt

Marvin Gnaase
Ihr Kontakt
















